Anbieter kontaktieren

AGB, Datenschutz & Verbraucherhinweis wurden gelesen und akzeptiert.

Kensington Artà - Martina Albrecht S.L.

KENSINGTON Finest Properties International Mallorca Nordosten
07570 Artà
  • Mehr erfahren
bellevue.de-ID: 30492641

FAST FERTIG! High-End Neubau Finca bei Sant Llorenç mit wunderschönem Blick

  • Haus
  • · 5 Zimmer
  • · 185 m² Wohnfläche
  • · 18.252 m² Grundstücksfläche
  • · 2.490.000 € Kaufpreis
Anbieter kontaktieren

Objektbeschreibung

FAST FERTIG!!!! Hight-End Qualität Neubau-Finca im Hacienda Stil in ruhiger Lage zwischen Sant Llorenç und Manacor - nahe zur Rafa Nadal Akademie. Die Natursteinfassade, der mediterran angelegte Garten und ein wunderschöner Poolbereich mit Blick über ...mehr lesen
FAST FERTIG!!!! Hight-End Qualität Neubau-Finca im Hacienda Stil in ruhiger Lage zwischen Sant Llorenç und Manacor - nahe zur Rafa Nadal Akademie. Die Natursteinfassade, der mediterran angelegte Garten und ein wunderschöner Poolbereich mit Blick über die Landschaft, werden dem neuen Eigentümer Inselfeeling pur bieten.

Bereits die mit Orleanderbäumen bepflanzte Auffahrt lassen Sie direkt den mediteranen Charme geniesen. Ca. 100 gepflanzte Olivenbäume und ein Obstgarten werden bis zur Fertigstellung des Hauses (voraussichliche Fertigstellung April2024) erste Früchte tragen.

Vom Parkplatz aus sind es nur wenige Schritte bis zum Haupteingang. Beim Eintreten entfaltet der grosse, offen gestaltete Wohn- und Essbereich mit Kochinsel und hohen Decken, eine helle und eindrucksvolle Wirkung sowie ein grossartiges Raumgefühl. Bodentiefe Fenster und Glas-Schiebeelemente bieten einen wunderbaren Blick hinweg über den Infinitypool in die mallorquinische Landschaft.
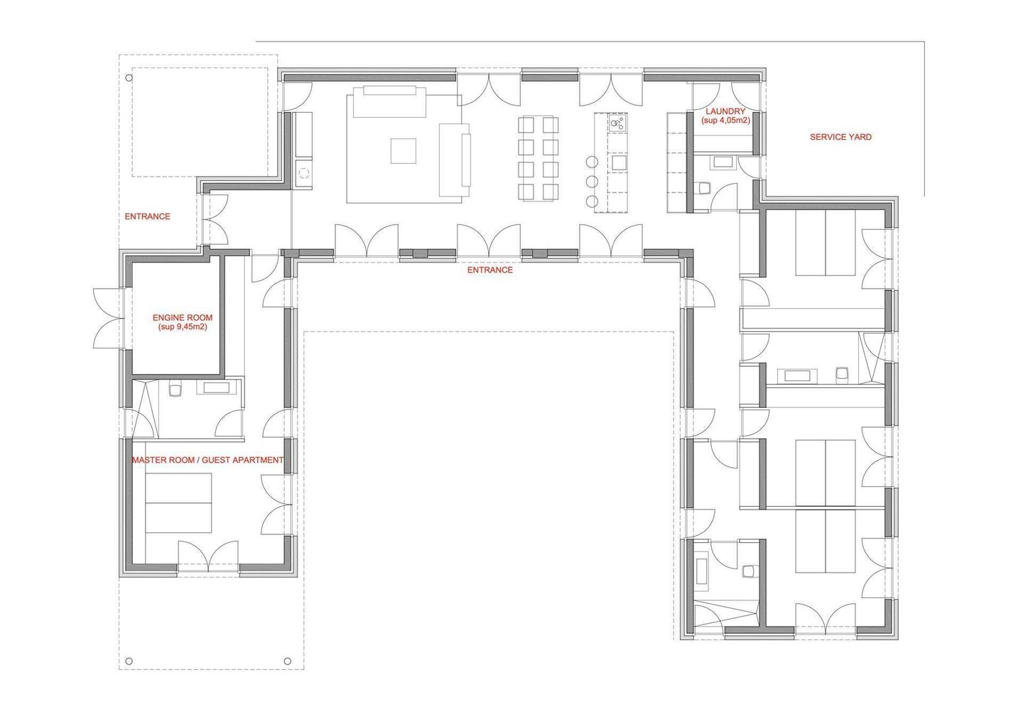
Auf dieser ebenerdig bebauten Fläche befinden sich ausserdem drei Schlafzimmer mit Bad en suite und ein Ankleideraum.
Unterschiedliche Terrassenbereiche rund um das Haus bieten Sonnen- und Schattenplätze im Winter wie im Sommer und sind Rückzugsort oder Treffpunkt für Bewohner und Gäste.

Ein wahrlich beeindruckendes und inspirierendes Anwesen, bei dem der zukünftige Eigentümer noch individuelle Wünsche einbringen kann.
Eine Besichtigung lohnt sich!

Weitere High-End Ausstattungsmerkmale: Stuckmann Autarke 36KW Strom- und Wasserversorgung (Solaranlage, Brunnen), Zisterne, Fussbodenheizung mit Wärmepumpe, Hochwertige Klimaanlage, 40 qm grosser Pool, Kamin, LED-Beleuchtungen, Überlaufpool, Gartenanlage, Einbauschränke und Fenster handgefertigt, grosse Einbauküche der Firma Leicht mit u. a. Weinkühler.

Bitte kontaktieren Sie uns für weitere Informationen: +34 670 275 663 oder arta@kensington-international.com

Immobiliendetails

  • Nutzungsart
    Wohnen
  • Objektart
    Finca
  • Hauptobjektart
    Haus
  • Vertragsart
    Kauf
  • Objektzustand
    Erstbezug
  • Baujahr
    2023
  • Zimmer (gesamt)
    5
  • Anzahl Schlafzimmer
    3
  • Anzahl Badezimmer
    3
  • Wohnfläche (ca.)
    185,05 m²
  • Grundstücksfläche (ca.)
    18.251,71 m²
  • Nutzfläche (ca.)
    272,49 m²
  • Küche
    Einbauküche (EBK)
  • Bad
    Bad mit Fenster, Duschbad
  • Anzahl Terrassen
    2
  • Anbieter-Objektnummer
    KPNO703

Preise & Kosten

  • Courtage
    Provisionsfrei

Energie

  • Heizungsart
    Fussbodenheizung
  • Befeuerungsart
    Luft-/Wasserwärme
  • Gebäudeart
    Wohngebäude
  • Wesentlicher Energieträger
    Luftwärmepumpe

Ausstattung

  • Kamin
  • Klimanalage
  • Swimmingpool
  • Garten

Standort & Lage

Sant Llorenç ist ein kleines traditionelles Dorf im Nordosten Mallorcas und bietet alles, was sich ein Liebhaber von Natur und Ruhe wünschen kann. Hier finden Sie den Rad- und Wanderweg "Via Verde", verschiedene gemütliche Restaurants sowie Geschäfte ...mehr lesen
Sant Llorenç ist ein kleines traditionelles Dorf im Nordosten Mallorcas und bietet alles, was sich ein Liebhaber von Natur und Ruhe wünschen kann. Hier finden Sie den Rad- und Wanderweg "Via Verde", verschiedene gemütliche Restaurants sowie Geschäfte des täglichen Bedarfs. Jeden Donnerstag findet ein Wochenmarkt statt und jeden letzten Freitag im Monat ein Nachtmarkt. Bereits in 15 Minuten erreichen Sie Sandstrände mit türkisfarbenem Wasser. Die nächst grösseren Stadt Manacor mit vielen Einkaufsmöglichkeiten und die beliebte Rafa-Nadal Akademie, erreichen Sie in wenigen Fahrtminuten.

07530 Manacor - Sant Llorenç · Mallorca - Nordost - San Lorenzo · Mallorca · ESP

Die genaue Anschrift erfahren Sie vom Anbieter

Anbieter

Logo von Kensington Artà - Martina Albrecht S.L.
2025 Best Property Agents

Ansprechpartner

KENSINGTON Finest Properties International Mallorca Nordosten

Carrer de Ciutat 22
07570 Artà
Verbraucherhinweis

Widerrufsbelehrung des Anbieters

(Gilt nicht für Wohnraummiete in Deutschland)

Widerrufsrecht für Verbraucher
Sie haben das Recht, binnen vierzehn Tagen ohne Angabe von Gründen diesen Vertrag zu widerrufen. Die Widerrufsfrist beträgt vierzehn Tage ab dem Tag des Vertragsabschlusses.
Um Ihr Widerrufsrecht auszuüben, müssen Sie uns (Kensington Finest Properties Int., Carrer Ciutat 22, 07570 Artá, +34 670 275 663, martina.albrecht@kensington-international.com) mittels einer eindeutigen Erklärung (z. B. ein mit der Post versandter Brief, Telefax oder E-Mail) über Ihren Entschluss, diesen Vertrag zu widerrufen, informieren. Sie können dafür das beigefügte Muster-Widerrufsformular verwenden, das jedoch nicht vorgeschrieben ist. Zur Wahrung der Widerrufsfrist reicht es aus, dass Sie die Mitteilung über die Ausübung des Widerrufsrechts vor Ablauf der Widerrufsfrist absenden.

Folgen des Widerrufs
Wenn Sie diesen Vertrag widerrufen, haben wir Ihnen alle Zahlungen, die wir von Ihnen erhalten haben, einschließlich der Lieferkosten (mit Ausnahme der zusätzlichen Kosten, die sich daraus ergeben, dass Sie eine andere Art der Lieferung als die von uns angebotene, günstigste Standardlieferung gewählt haben), unverzüglich und spätestens binnen vierzehn Tagen ab dem Tag zurückzuzahlen, an dem die Mitteilung über Ihren Widerruf dieses Vertrags bei uns eingegangen ist. Für diese Rückzahlung verwenden wir dasselbe Zahlungsmittel, das Sie bei der ursprünglichen Transaktion eingesetzt haben, es sei denn, mit Ihnen wurde ausdrücklich etwas anderes vereinbart; in keinem Fall werden Ihnen wegen dieser Rückzahlung Entgelte berechnet. Haben Sie verlangt, dass die Dienstleistungen während der Widerrufsfrist beginnen soll, so haben Sie uns einen angemessenen Betrag zu zahlen, der dem Anteil der bis zu dem Zeitpunkt, zu dem Sie uns von der Ausübung des Widerrufsrechts hinsichtlich dieses Vertrags unterrichten, bereits erbrachten Dienstleistungen im Vergleich zum Gesamtumfang der im Vertrag vorgesehenen Dienstleistungen entspricht.

Muster-Widerrufsformular
(Wenn Sie den Vertrag widerrufen wollen, dann füllen Sie dieses Formular aus und senden Sie es zurück.)

An Kensington Finest Properties Int., Carrer Ciutat 22, 07570 Artá, +34 670 275 663, martina.albrecht@kensington-international.com

Hiermit widerrufe ich/wir den von mir/uns abgeschlossenen Vertrag über den Kauf der folgenden Waren /die Erbringung der folgenden Dienstleistung


Bestellt am /erhalten am

Name des/der Verbraucher(s)

Anschrift des/der Verbraucher(s)

Unterschrift des/der Verbraucher(s) (nur bei Mitteilung auf Papier)

Datum


( Unzutreffendes streichen )


Hinweis auf die Möglichkeit eines vorzeitigen Erlöschens des Widerrufsrechts

Ihr Widerrufsrecht erlischt, wenn wir unsere Leistung vollständig erbracht haben und mit der Ausführung der Leistung erst begonnen haben, nachdem Sie Ihre ausdrückliche Zustimmung gegeben haben und gleichzeitig Ihre Kenntnis davon bestätigt haben, dass Sie Ihr Widerrufsrecht bei vollständiger Vertragserfüllung durch uns verlieren.

Impressum Kensington Finest Properties Int.
VERTRETUNGSBERECHTIGTE/R
Martina Albrecht


Carrer Ciutat 22
07570 Artá
ESP
Tel.: +34 670 275 663
E-Mail: martina.albrecht@kensington-international.com
Homepage: www.kensington-mallorca.com

UST-ID-NUMMER
NIF: B67824342
Anbieter kontaktieren

AGB, Datenschutz & Verbraucherhinweis wurden gelesen und akzeptiert.