Anbieter kontaktieren

AGB, Datenschutz & Verbraucherhinweis wurden gelesen und akzeptiert.

Reker Immobilien d.o.o.

Bild/Logo: Heiner Reker
Heiner Reker
22211 Vodice
  • Mehr erfahren
bellevue.de-ID: 30489693

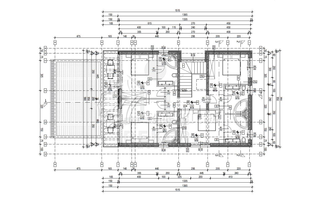
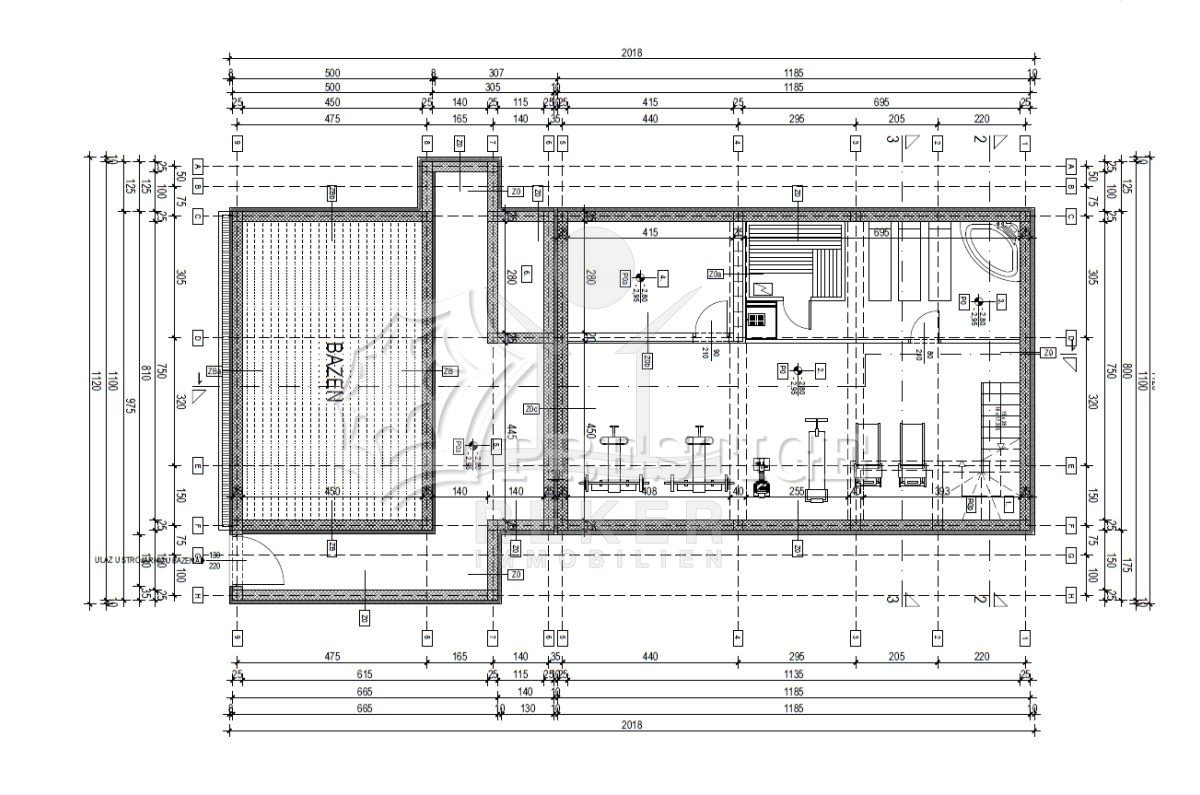
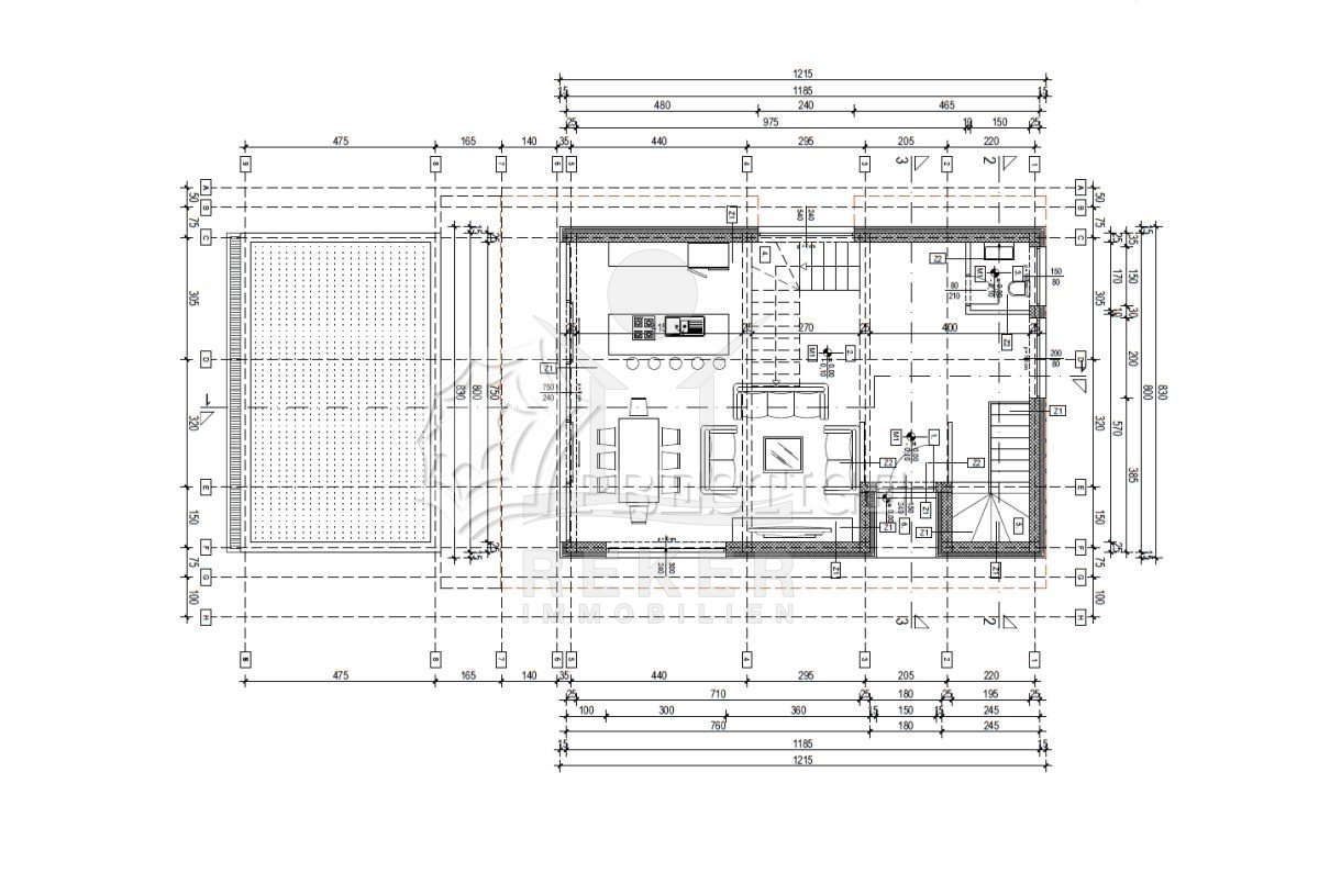
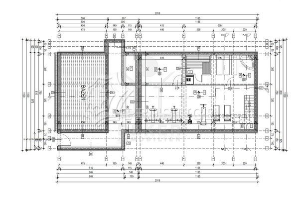
Atemberaubende Luxus-Villa mit Pool, Sauna, Jacuzzi, Fitnessraum

  • Haus
  • · 8 Zimmer
  • · 250 m² Wohnfläche
  • · 630 m² Grundstücksfläche
  • · 2.000.000 € Kaufpreis
Anbieter kontaktieren

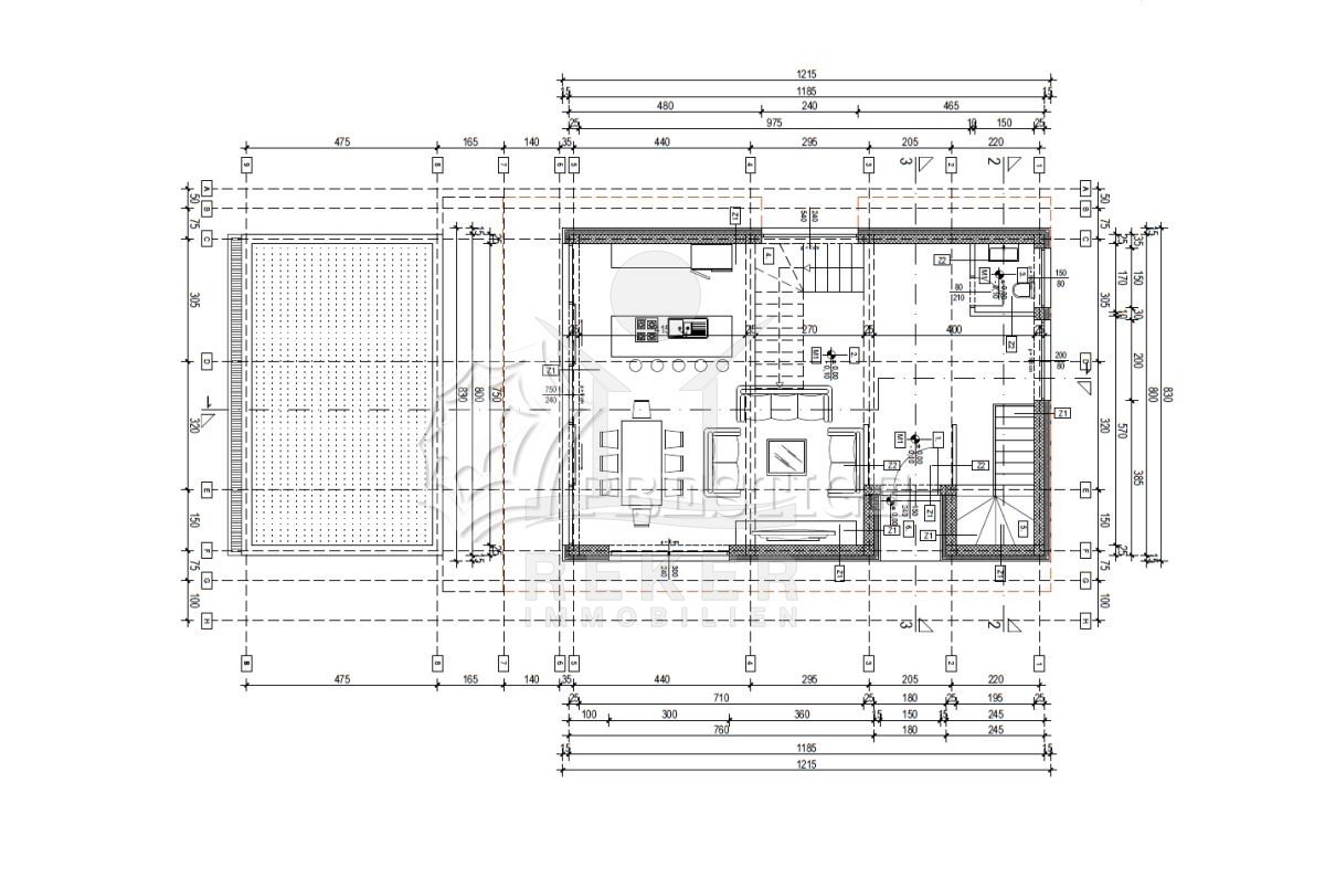
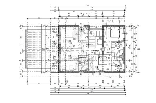
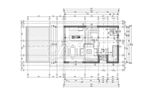
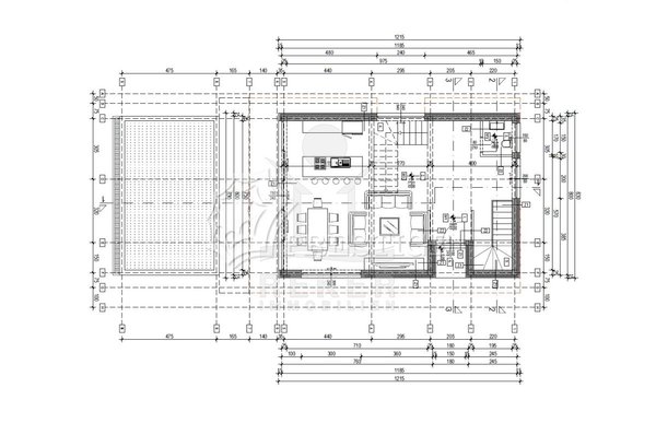
Objektbeschreibung

Belohnen Sie sich mit dieser Traumimmobilie der Extraklasse - Sie haben es sich verdient.
249,79 m² bis ins letzte Detail perfekt durchdachter und in sich stimmiger Wohnfläche erwartet Sie hier in attraktiver Lage auf der Insel Krk, lediglich jeweils ...mehr lesen
Belohnen Sie sich mit dieser Traumimmobilie der Extraklasse - Sie haben es sich verdient.
249,79 m² bis ins letzte Detail perfekt durchdachter und in sich stimmiger Wohnfläche erwartet Sie hier in attraktiver Lage auf der Insel Krk, lediglich jeweils 500 m vom Meer und dem Ortszentrum entfernt.
Eine hochwertige Konstruktion und Ausstattung, sowie eine wärmegedämmte, hinterlüftete und gegen Klimaeinflüsse resistente Fassade zeugen von der Qualität der Villa.

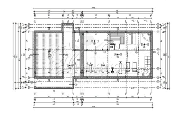
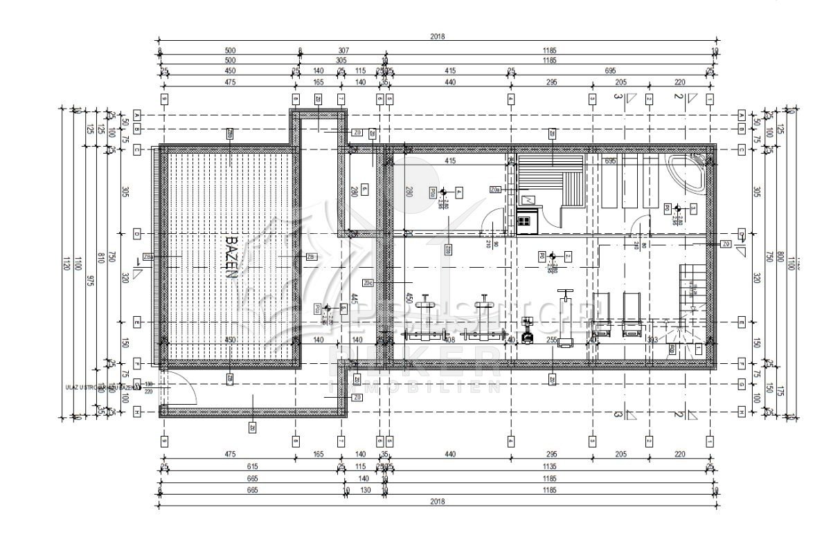
Besondere Highlights bietet auch der Keller, in dem sich ein Spielzimmer, ein Wellnessraum mit finnischer Sauna, Jacuzzi und Dusche und ein Fitnessraum befinden.

Das 630 m² große Grundstück begeistert nicht nur durch die Villa selbst, sondern auch durch einen Pool mit Gegenstromschwimmen und Massagedrüsen, sowie eine überdachte Außenküche mit Gasgrill und Partyraum.

Eine Solaranlage zur Warmwasserbereitung und vier überdachte Stellplätze runden dieses phänomenale Luxuspaket schließlich ab.

Immobiliendetails

  • Nutzungsart
    Wohnen
  • Objektart
    Villa
  • Hauptobjektart
    Haus
  • Vertragsart
    Kauf
  • Baujahr
    2021
  • Zimmer (gesamt)
    8
  • Anzahl Schlafzimmer
    4
  • Anzahl Badezimmer
    4
  • Anzahl Parkflächen
    4
  • Wohnfläche (ca.)
    249,79 m²
  • Grundstücksfläche (ca.)
    630 m²
  • Anbieter-Objektnummer
    3434

Preise & Kosten

  • Courtage
    3,75 % inklusive der gesetzlichen Mehrwertsteuer

Energie

  • Heizungsart
    Fussbodenheizung

Ausstattung

  • Möbliert
https://www.reker-immobilien.de/kroatien/luxusvilla-baska-wellness-neubau_3434?utm_source=ausstattung&utm_medium=txt&utm_campaign=3434
~

Standort & Lage

Baška · Baska · HRV

Die genaue Anschrift erfahren Sie vom Anbieter

Anbieter

Logo von Reker Immobilien d.o.o.
2026 Best Property Agents
Verbraucherhinweis

Widerrufsbelehrung des Anbieters

(Gilt nicht für Wohnraummiete in Deutschland)

Widerrufsrecht für Verbraucher
Sie haben das Recht, binnen vierzehn Tagen ohne Angabe von Gründen diesen Vertrag zu widerrufen. Die Widerrufsfrist beträgt vierzehn Tage ab dem Tag des Vertragsabschlusses.
Um Ihr Widerrufsrecht auszuüben, müssen Sie uns (Reker Immobilien d.o.o., Micin Stanka 28 A, 22211 Vodice, +49 5207 77227, +49 5207 923455, info@reker-immobilien.de) mittels einer eindeutigen Erklärung (z. B. ein mit der Post versandter Brief, Telefax oder E-Mail) über Ihren Entschluss, diesen Vertrag zu widerrufen, informieren. Sie können dafür das beigefügte Muster-Widerrufsformular verwenden, das jedoch nicht vorgeschrieben ist. Zur Wahrung der Widerrufsfrist reicht es aus, dass Sie die Mitteilung über die Ausübung des Widerrufsrechts vor Ablauf der Widerrufsfrist absenden.

Folgen des Widerrufs
Wenn Sie diesen Vertrag widerrufen, haben wir Ihnen alle Zahlungen, die wir von Ihnen erhalten haben, einschließlich der Lieferkosten (mit Ausnahme der zusätzlichen Kosten, die sich daraus ergeben, dass Sie eine andere Art der Lieferung als die von uns angebotene, günstigste Standardlieferung gewählt haben), unverzüglich und spätestens binnen vierzehn Tagen ab dem Tag zurückzuzahlen, an dem die Mitteilung über Ihren Widerruf dieses Vertrags bei uns eingegangen ist. Für diese Rückzahlung verwenden wir dasselbe Zahlungsmittel, das Sie bei der ursprünglichen Transaktion eingesetzt haben, es sei denn, mit Ihnen wurde ausdrücklich etwas anderes vereinbart; in keinem Fall werden Ihnen wegen dieser Rückzahlung Entgelte berechnet. Haben Sie verlangt, dass die Dienstleistungen während der Widerrufsfrist beginnen soll, so haben Sie uns einen angemessenen Betrag zu zahlen, der dem Anteil der bis zu dem Zeitpunkt, zu dem Sie uns von der Ausübung des Widerrufsrechts hinsichtlich dieses Vertrags unterrichten, bereits erbrachten Dienstleistungen im Vergleich zum Gesamtumfang der im Vertrag vorgesehenen Dienstleistungen entspricht.

Muster-Widerrufsformular
(Wenn Sie den Vertrag widerrufen wollen, dann füllen Sie dieses Formular aus und senden Sie es zurück.)

An Reker Immobilien d.o.o., Micin Stanka 28 A, 22211 Vodice, +49 5207 77227, +49 5207 923455, info@reker-immobilien.de

Hiermit widerrufe ich/wir den von mir/uns abgeschlossenen Vertrag über den Kauf der folgenden Waren /die Erbringung der folgenden Dienstleistung


Bestellt am /erhalten am

Name des/der Verbraucher(s)

Anschrift des/der Verbraucher(s)

Unterschrift des/der Verbraucher(s) (nur bei Mitteilung auf Papier)

Datum


( Unzutreffendes streichen )


Hinweis auf die Möglichkeit eines vorzeitigen Erlöschens des Widerrufsrechts

Ihr Widerrufsrecht erlischt, wenn wir unsere Leistung vollständig erbracht haben und mit der Ausführung der Leistung erst begonnen haben, nachdem Sie Ihre ausdrückliche Zustimmung gegeben haben und gleichzeitig Ihre Kenntnis davon bestätigt haben, dass Sie Ihr Widerrufsrecht bei vollständiger Vertragserfüllung durch uns verlieren.

Impressum Reker Immobilien d.o.o.
VERTRETUNGSBERECHTIGTE/R
Heiner Reker


Micin Stanka 28 A
22211 Vodice
HRV
Tel.: +49 5207 77227
E-Mail: info@reker-immobilien.de
Fax: +49 5207 923455
Homepage: https://www.reker-immobilien.de

ZUSTÄNDIGE AUFSICHTSBEHÖRDE
Handelsgericht in Zagreb

HANDELSREGISTER-EINTRAG
081239791
Kroatische Wirtschaftskammer

UST-ID-NUMMER
HR 83 76066 2355
Anbieter kontaktieren

AGB, Datenschutz & Verbraucherhinweis wurden gelesen und akzeptiert.