Anbieter kontaktieren

AGB, Datenschutz & Verbraucherhinweis wurden gelesen und akzeptiert.

Dianium Inmo - Concept S.L.

Cornelia Grün
03750 Pedreguer
  • Mehr erfahren
bellevue.de-ID: 30472879

Großartige Villa mit moderner Ausstattung | Chloraka

  • Haus
  • · 6 Zimmer
  • · 181 m² Wohnfläche
  • · 532 m² Grundstücksfläche
  • · 1.200.000 € Kaufpreis
Anbieter kontaktieren

Objektbeschreibung

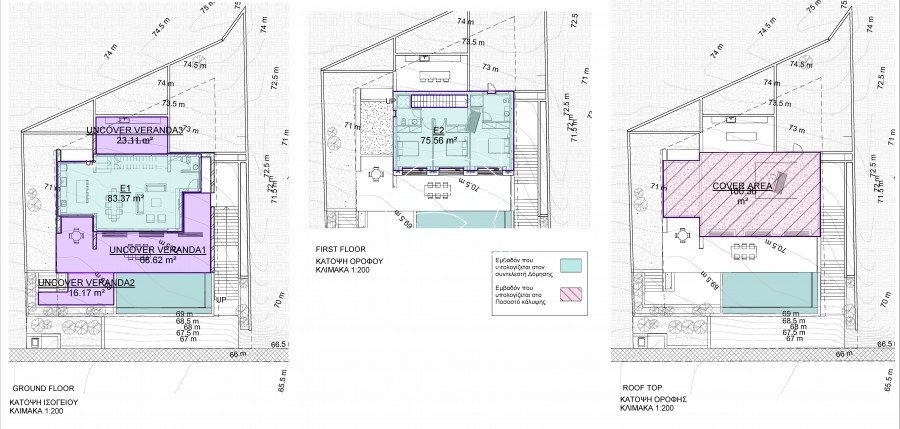
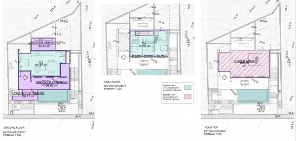
Auf einem großzügigen 532 Quadratmeter großen Grundstück gelegen, strahlt dieses Meisterwerk mit drei Schlafzimmern, Komfort und moderne Intelligenz aus.

Mit einer großzügigen überdachten Innenfläche von 181,95 Quadratmetern verbindet diese Villa ...mehr lesen
Auf einem großzügigen 532 Quadratmeter großen Grundstück gelegen, strahlt dieses Meisterwerk mit drei Schlafzimmern, Komfort und moderne Intelligenz aus.

Mit einer großzügigen überdachten Innenfläche von 181,95 Quadratmetern verbindet diese Villa nahtlos die Wohnräume und bietet eine offene und luftige Umgebung. Sie ist so konzipiert, dass sie alle Ihre Bedürfnisse erfüllt.

Diese Villa verfügt über drei moderne Bäder und ein zusätzliches Gäste-WC. Sie zeichnet sich durch die Verwendung hochwertiger Materialien aus und ist ein Zeugnis der Raffinesse. Sichtbeton, Steinwände und Holzverkleidungen sorgen für eine fesselnde Ästhetik und einen einzigartigen Charakter.

Um der Villa einen modernen Touch zu verleihen, ist sie mit intelligenter Haustechnik ausgestattet, die unvergleichlichen Komfort und Sicherheit bietet. Sie können die Funktionen Ihres Hauses mühelos steuern und so Ihr tägliches Leben verbessern.

Gehen Sie nach draußen zu Ihrem privaten Überlaufpool, einem ruhigen Rückzugsort für Entspannung und Unterhaltung. Auf dem weitläufigen Grundstück der Villa befindet sich ein Grillplatz, der sich perfekt für Versammlungen und Mahlzeiten im Freien eignet.

Das Parken ist ein Kinderspiel mit zwei überdachten Parkplätzen, die reichlich Platz für Ihre Fahrzeuge bieten. Diese Villa ist mehr als nur ein Haus, sie ist ein Ausdruck von Eleganz und modernem Leben. Lassen Sie sich diese Gelegenheit nicht entgehen.

Immobiliendetails

  • Nutzungsart
    Wohnen
  • Objektart
    Villa
  • Hauptobjektart
    Haus
  • Vertragsart
    Kauf
  • Zimmer (gesamt)
    6
  • Anzahl Schlafzimmer
    3
  • Anzahl Badezimmer
    3
  • Anzahl Parkflächen
    2
  • Wohnfläche (ca.)
    181 m²
  • Gesamtfläche (ca.)
    532 m²
  • Grundstücksfläche (ca.)
    532 m²
  • Küche
    1
  • Anbieter-Objektnummer
    DIC.12208

Preise & Kosten

  • Courtage
    Keine besondere Angabe.

Standort & Lage

Chloraka ist ein malerisches Dorf an der Westküste Zyperns, gelegen zwischen der historischen Stadt Paphos und dem beliebten Touristenort Coral Bay. Eingebettet in sanfte Hügel und mit Blick auf das funkelnde Mittelmeer bietet Chloraka einen ...mehr lesen
Chloraka ist ein malerisches Dorf an der Westküste Zyperns, gelegen zwischen der historischen Stadt Paphos und dem beliebten Touristenort Coral Bay. Eingebettet in sanfte Hügel und mit Blick auf das funkelnde Mittelmeer bietet Chloraka einen atemberaubenden Panoramablick.

Es verbindet traditionellen zypriotischen Charme mit modernen Annehmlichkeiten und ist Heimat für sowohl Einheimische als auch eine wachsende Gemeinschaft von Expatriates.

Das Dorfzentrum bietet lokale Tavernen, Geschäfte und Kirchen, während die Küstenregion mit Felsbuchten und kleinen Stränden aufwartet. Historische Sehenswürdigkeiten, wie das Schiffswrack Agios Georgios, zeugen von der reichen Vergangenheit des Ortes.

Chlorakas zentrale Lage macht es ideal für Erkundungstouren rund um die Region Paphos.

8220 Chloraka · Zypern - Paphos · CYP

Die genaue Anschrift erfahren Sie vom Anbieter

Anbieter

Logo von Dianium Inmo - Concept S.L.
2025 Best Property Agents

Ansprechpartner

Cornelia Grün

Avenida Marina Alta 56
03750 Pedreguer
Verbraucherhinweis

Widerrufsbelehrung des Anbieters

(Gilt nicht für Wohnraummiete in Deutschland)

Widerrufsrecht für Verbraucher
Sie haben das Recht, binnen vierzehn Tagen ohne Angabe von Gründen diesen Vertrag zu widerrufen. Die Widerrufsfrist beträgt vierzehn Tage ab dem Tag des Vertragsabschlusses.
Um Ihr Widerrufsrecht auszuüben, müssen Sie uns (Dianium Inmo Concept S.L, Avenida Marina Alta 56, 03750 Pedreguer, +34680697751, info@dianium-residence.com) mittels einer eindeutigen Erklärung (z. B. ein mit der Post versandter Brief, Telefax oder E-Mail) über Ihren Entschluss, diesen Vertrag zu widerrufen, informieren. Sie können dafür das beigefügte Muster-Widerrufsformular verwenden, das jedoch nicht vorgeschrieben ist. Zur Wahrung der Widerrufsfrist reicht es aus, dass Sie die Mitteilung über die Ausübung des Widerrufsrechts vor Ablauf der Widerrufsfrist absenden.

Folgen des Widerrufs
Wenn Sie diesen Vertrag widerrufen, haben wir Ihnen alle Zahlungen, die wir von Ihnen erhalten haben, einschließlich der Lieferkosten (mit Ausnahme der zusätzlichen Kosten, die sich daraus ergeben, dass Sie eine andere Art der Lieferung als die von uns angebotene, günstigste Standardlieferung gewählt haben), unverzüglich und spätestens binnen vierzehn Tagen ab dem Tag zurückzuzahlen, an dem die Mitteilung über Ihren Widerruf dieses Vertrags bei uns eingegangen ist. Für diese Rückzahlung verwenden wir dasselbe Zahlungsmittel, das Sie bei der ursprünglichen Transaktion eingesetzt haben, es sei denn, mit Ihnen wurde ausdrücklich etwas anderes vereinbart; in keinem Fall werden Ihnen wegen dieser Rückzahlung Entgelte berechnet. Haben Sie verlangt, dass die Dienstleistungen während der Widerrufsfrist beginnen soll, so haben Sie uns einen angemessenen Betrag zu zahlen, der dem Anteil der bis zu dem Zeitpunkt, zu dem Sie uns von der Ausübung des Widerrufsrechts hinsichtlich dieses Vertrags unterrichten, bereits erbrachten Dienstleistungen im Vergleich zum Gesamtumfang der im Vertrag vorgesehenen Dienstleistungen entspricht.

Muster-Widerrufsformular
(Wenn Sie den Vertrag widerrufen wollen, dann füllen Sie dieses Formular aus und senden Sie es zurück.)

An Dianium Inmo Concept S.L, Avenida Marina Alta 56, 03750 Pedreguer, +34680697751, info@dianium-residence.com

Hiermit widerrufe ich/wir den von mir/uns abgeschlossenen Vertrag über den Kauf der folgenden Waren /die Erbringung der folgenden Dienstleistung


Bestellt am /erhalten am

Name des/der Verbraucher(s)

Anschrift des/der Verbraucher(s)

Unterschrift des/der Verbraucher(s) (nur bei Mitteilung auf Papier)

Datum


( Unzutreffendes streichen )


Hinweis auf die Möglichkeit eines vorzeitigen Erlöschens des Widerrufsrechts

Ihr Widerrufsrecht erlischt, wenn wir unsere Leistung vollständig erbracht haben und mit der Ausführung der Leistung erst begonnen haben, nachdem Sie Ihre ausdrückliche Zustimmung gegeben haben und gleichzeitig Ihre Kenntnis davon bestätigt haben, dass Sie Ihr Widerrufsrecht bei vollständiger Vertragserfüllung durch uns verlieren.

Impressum Dianium Inmo Concept S.L
VERTRETUNGSBERECHTIGTE/R
Cornelia Grün


Avenida Marina Alta 56
03750 Pedreguer
ESP
Tel.: +34680697751
E-Mail: info@dianium-residence.com
Homepage: www.dianium-residence.com

HANDELSREGISTER-EINTRAG
Alicante B-54664057


UST-ID-NUMMER
ESB 54664057
Anbieter kontaktieren

AGB, Datenschutz & Verbraucherhinweis wurden gelesen und akzeptiert.