Anbieter kontaktieren

AGB, Datenschutz & Verbraucherhinweis wurden gelesen und akzeptiert.

Dianium Inmo - Concept S.L.

Cornelia Grün
03750 Pedreguer
  • Mehr erfahren
bellevue.de-ID: 30471523

Villa mit höchstem Standardund Meerblick | Paralimni Marina

  • Haus
  • · 679 m² Wohnfläche
  • · 6.300.000 € Kaufpreis
Anbieter kontaktieren

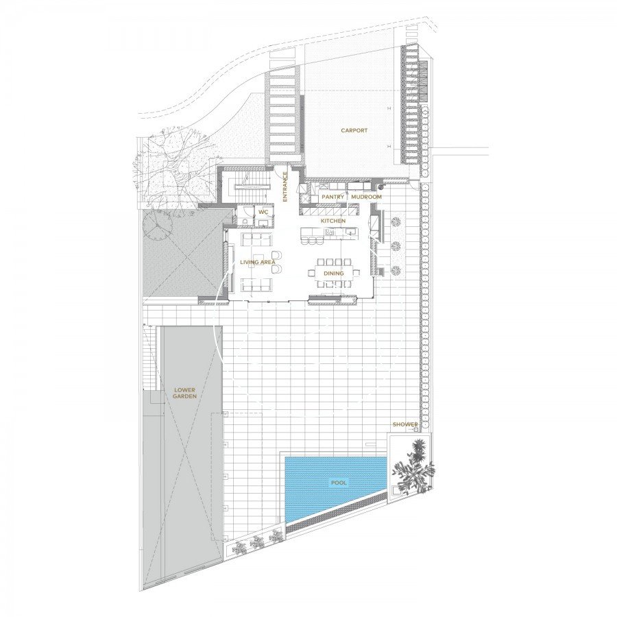
Objektbeschreibung

Diese 12 exklusiven Villen wurden nach den höchsten Standards gebaut und mit den besten Materialien, Armaturen und Einrichtungen ausgestattet.

Mit raumhohen Fenstern, die natürliches Licht und einen atemberaubenden Blick auf den Yachthafen bieten, ...mehr lesen
Diese 12 exklusiven Villen wurden nach den höchsten Standards gebaut und mit den besten Materialien, Armaturen und Einrichtungen ausgestattet.

Mit raumhohen Fenstern, die natürliches Licht und einen atemberaubenden Blick auf den Yachthafen bieten, kombinieren diese raffinierten und eleganten Häuser mühelos komfortables

Leben im Innen- und Außenbereich.
Die Bewohner haben die Wahl zwischen Villen mit 3, 4 oder 5 Schlafzimmern, die mit privaten Anlegeplätzen, großzügigen, offenen Wohnräumen und Infinity-Pools ausgestattet sind.

Immobiliendetails

  • Nutzungsart
    Wohnen
  • Objektart
    Villa
  • Hauptobjektart
    Haus
  • Vertragsart
    Kauf
  • Anzahl Schlafzimmer
    4
  • Anzahl Badezimmer
    5
  • Wohnfläche (ca.)
    679 m²
  • Gesamtfläche (ca.)
    826 m²
  • Küche
    1
  • Stellplatzart
    Garage
  • Anbieter-Objektnummer
    DIC.10572

Preise & Kosten

  • Courtage
    Keine besondere Angabe.

Standort & Lage

Ayia Napa, an der Südostküste Zyperns gelegen, ist bekannt für seine goldenen Sandstrände und das kristallklare Wasser. Ursprünglich ein ruhiges Fischerdorf, hat es sich in den letzten Jahrzehnten zu einem beliebten Urlaubsziel entwickelt.

Der ...mehr lesen
Ayia Napa, an der Südostküste Zyperns gelegen, ist bekannt für seine goldenen Sandstrände und das kristallklare Wasser. Ursprünglich ein ruhiges Fischerdorf, hat es sich in den letzten Jahrzehnten zu einem beliebten Urlaubsziel entwickelt.

Der Hauptstrand, Nissi Beach, zieht sowohl Familien als auch das Nachtleben an, während der nahegelegene Cape Greco National Forest Park Naturliebhaber mit malerischen Wanderwegen und atemberaubenden Blickpunkten begeistert.

Das pulsierende Nachtleben von Ayia Napa bietet eine Vielzahl von Bars, Clubs und Restaurants, die sich hauptsächlich rund um den zentralen Platz konzentrieren.

Historische Sehenswürdigkeiten wie das Kloster Ayia Napa erzählen von der reichen Geschichte des Ortes.

4600 Ayia Napa · Zypern - Famagusta · CYP

Die genaue Anschrift erfahren Sie vom Anbieter

Anbieter

Logo von Dianium Inmo - Concept S.L.
2025 Best Property Agents

Ansprechpartner

Cornelia Grün

Avenida Marina Alta 56
03750 Pedreguer
Verbraucherhinweis

Widerrufsbelehrung des Anbieters

(Gilt nicht für Wohnraummiete in Deutschland)

Widerrufsrecht für Verbraucher
Sie haben das Recht, binnen vierzehn Tagen ohne Angabe von Gründen diesen Vertrag zu widerrufen. Die Widerrufsfrist beträgt vierzehn Tage ab dem Tag des Vertragsabschlusses.
Um Ihr Widerrufsrecht auszuüben, müssen Sie uns (Dianium Inmo Concept S.L, Avenida Marina Alta 56, 03750 Pedreguer, +34680697751, info@dianium-residence.com) mittels einer eindeutigen Erklärung (z. B. ein mit der Post versandter Brief, Telefax oder E-Mail) über Ihren Entschluss, diesen Vertrag zu widerrufen, informieren. Sie können dafür das beigefügte Muster-Widerrufsformular verwenden, das jedoch nicht vorgeschrieben ist. Zur Wahrung der Widerrufsfrist reicht es aus, dass Sie die Mitteilung über die Ausübung des Widerrufsrechts vor Ablauf der Widerrufsfrist absenden.

Folgen des Widerrufs
Wenn Sie diesen Vertrag widerrufen, haben wir Ihnen alle Zahlungen, die wir von Ihnen erhalten haben, einschließlich der Lieferkosten (mit Ausnahme der zusätzlichen Kosten, die sich daraus ergeben, dass Sie eine andere Art der Lieferung als die von uns angebotene, günstigste Standardlieferung gewählt haben), unverzüglich und spätestens binnen vierzehn Tagen ab dem Tag zurückzuzahlen, an dem die Mitteilung über Ihren Widerruf dieses Vertrags bei uns eingegangen ist. Für diese Rückzahlung verwenden wir dasselbe Zahlungsmittel, das Sie bei der ursprünglichen Transaktion eingesetzt haben, es sei denn, mit Ihnen wurde ausdrücklich etwas anderes vereinbart; in keinem Fall werden Ihnen wegen dieser Rückzahlung Entgelte berechnet. Haben Sie verlangt, dass die Dienstleistungen während der Widerrufsfrist beginnen soll, so haben Sie uns einen angemessenen Betrag zu zahlen, der dem Anteil der bis zu dem Zeitpunkt, zu dem Sie uns von der Ausübung des Widerrufsrechts hinsichtlich dieses Vertrags unterrichten, bereits erbrachten Dienstleistungen im Vergleich zum Gesamtumfang der im Vertrag vorgesehenen Dienstleistungen entspricht.

Muster-Widerrufsformular
(Wenn Sie den Vertrag widerrufen wollen, dann füllen Sie dieses Formular aus und senden Sie es zurück.)

An Dianium Inmo Concept S.L, Avenida Marina Alta 56, 03750 Pedreguer, +34680697751, info@dianium-residence.com

Hiermit widerrufe ich/wir den von mir/uns abgeschlossenen Vertrag über den Kauf der folgenden Waren /die Erbringung der folgenden Dienstleistung


Bestellt am /erhalten am

Name des/der Verbraucher(s)

Anschrift des/der Verbraucher(s)

Unterschrift des/der Verbraucher(s) (nur bei Mitteilung auf Papier)

Datum


( Unzutreffendes streichen )


Hinweis auf die Möglichkeit eines vorzeitigen Erlöschens des Widerrufsrechts

Ihr Widerrufsrecht erlischt, wenn wir unsere Leistung vollständig erbracht haben und mit der Ausführung der Leistung erst begonnen haben, nachdem Sie Ihre ausdrückliche Zustimmung gegeben haben und gleichzeitig Ihre Kenntnis davon bestätigt haben, dass Sie Ihr Widerrufsrecht bei vollständiger Vertragserfüllung durch uns verlieren.

Impressum Dianium Inmo Concept S.L
VERTRETUNGSBERECHTIGTE/R
Cornelia Grün


Avenida Marina Alta 56
03750 Pedreguer
ESP
Tel.: +34680697751
E-Mail: info@dianium-residence.com
Homepage: www.dianium-residence.com

HANDELSREGISTER-EINTRAG
Alicante B-54664057


UST-ID-NUMMER
ESB 54664057
Anbieter kontaktieren

AGB, Datenschutz & Verbraucherhinweis wurden gelesen und akzeptiert.