Anbieter kontaktieren

AGB, Datenschutz & Verbraucherhinweis wurden gelesen und akzeptiert.

KITZIMMO - Real Estate - OG

Franz Gobec RR Bgm.a.D.
6370 Kitzbühel
  • Mehr erfahren
bellevue.de-ID: 30450977

Elegante Erdgeschossmaisonette nahe dem Skilift

  • Wohnung
  • · 5 Zimmer
  • · 161 m² Wohnfläche
  • · 4.725.000 € Kaufpreis
Anbieter kontaktieren

Objektbeschreibung

EIN HIGHLIGHT IN DEN KITZBÜHELER ALPEN.
Der moderne Neubau bietet den passenden Rahmen für das Kitzbühel-Erlebnis und vereint ein Townhouse mit eigenem Lift, ein Penthouse, eine Wohnung im Obergeschoss sowie zwei Maisonette-Gartenwohnungen mit einer ...mehr lesen
EIN HIGHLIGHT IN DEN KITZBÜHELER ALPEN.
Der moderne Neubau bietet den passenden Rahmen für das Kitzbühel-Erlebnis und vereint ein Townhouse mit eigenem Lift, ein Penthouse, eine Wohnung im Obergeschoss sowie zwei Maisonette-Gartenwohnungen mit einer Gesamtfläche von 200 m² bis 352 m².

Neben dem atemberaubenden Blick auf den Hahnenkamm und das Kitzbüheler Horn bis zum imposanten Anblick des Wilden Kaisers überzeugt die Luxus-Liegenschaft mit hoher Bauqualität, exzellenten Raumkonzepten, erlesenem Interieur und moderner Smarthome-Technik.
Das Neubauprojekt bietet attraktiven Wohnraum in zeitgenössischer Architektur, die das alpine Bauen modern und individuell interpretiert und fügt sich dank innovativer Baukunst harmonisch in die Umgebung ein.
Das Besondere an dieser Immobilie ist zweifellos die Premium-Lage im Herzen von Kitzbühel – am Fuße der Streif. Inmitten der Stadt gelegen und nur zwei Gehminuten vom Skilift und Golfplatz entfernt, genießen die zukünftigen Bewohner den Luxus an kurzen Wegen.

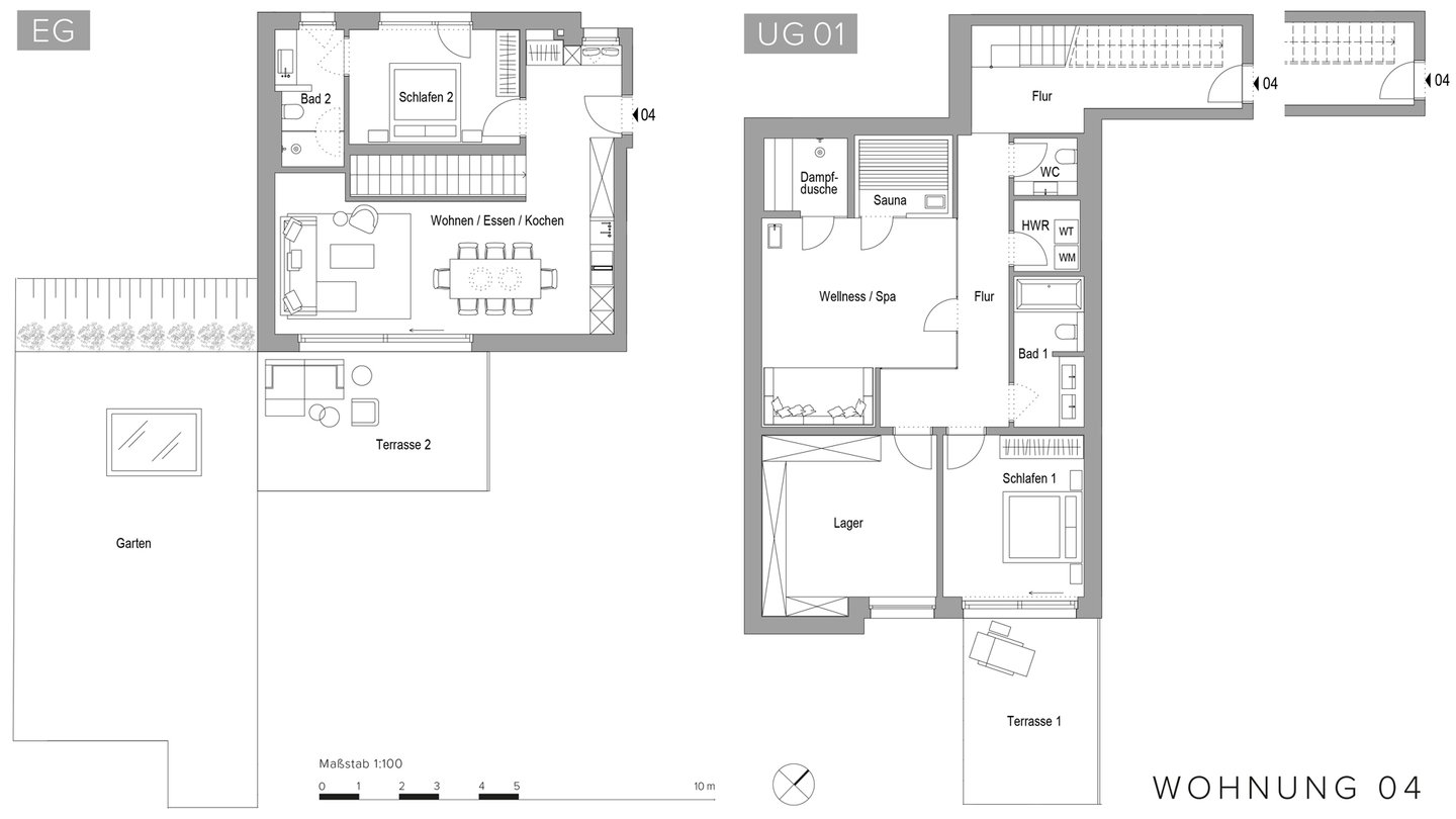
GARTENWOHNUNG / Wohnung Top 04
• Ca. 161 m² Wohnnutzfläche
• 3 Zimmer + ca. 19,5 m2 Lager/Hobby
• Private Gartenterrasse/Garten, Ausrichtung Süd-Ost-West
• Garten ca. 76 m², Terrasse ca. 36 m²
• Eigener Wellnessbereich im 1. UG
• 1 Pkw-Außenstellplatz







FACTS & FIGURES

1 Townhouse über 5 Etagen mit eigenem Lift, 1 Penthouse und 3 exklusive Wohnungen; Gesamtflächen von ca. 200 m² bis ca. 352 m²

Panoramaterrassen und großzügige Balkone, atemberaubenden Panoramablick, Privatgärten, private Atmosphäre

Hochwertigste Ausstattung, geschmackvolles Design von Luxusmarkenherstellern, edelsten Materialien wie Altholz, Naturstein, Eichendielenböden und Wandbespannungen aus feinsten italienischen Stoffen, Wohnkomfort auf höchstem Niveau.

Licht- durchfluteter Wohn- und Essbereich mit offenem Kamin und angrenzender Terrasse oder Balkon.

Die Wohn-/Essbereiche werden mit hochwertigen italienischen Designküchen vom Hersteller Boffi und Küchengeräten von Gaggenau ausgestattet.

Stilvolle Schlafzimmer mit En-Suite-Bädern
Durchdachten Grundrisse aller Wohnungen ermöglichen geräumige Schlaf- und Gästezimmer, teils mit En-Suite-Badezimmer und Ankleidebereich, die für maximalen Komfort sorgen.

Alle Wohneinheiten verfügt über einen privaten Sauna- und Wellnessbereich mit Ruhebereich und Terrassenzugang im begrünten Lichthof.

Smart Home, intuitive Steuerung der Haustechnik; digitale Schließanlage und Video-Gegensprechanlage.

Den Bewohnern stehen 15 übergroße Einzelstellplätze in der Tiefgarage und 4 freistehende Außenparkplätze zur Verfügung.
E-Mobility, moderne Mobilität: Möglichkeit für E-Ladestationen in der Tiefgarage.

Immobiliendetails

  • Nutzungsart
    Wohnen
  • Objektart
    Maisonette
  • Hauptobjektart
    Wohnung
  • Vertragsart
    Kauf
  • Objektzustand
    Erstbezug
  • Baujahr
    2023
  • Zimmer (gesamt)
    5
  • Anzahl Schlafzimmer
    3
  • Anzahl Badezimmer
    2
  • Anzahl separate WC
    1
  • Anzahl Parkflächen
    3
  • Wohnfläche (ca.)
    161 m²
  • Küche
    Einbauküche (EBK)
  • Balkon/Terrasse (ca.)
    36 m²
  • Gartenfläche (ca.)
    76 m²
  • Bad
    Duschbad, Bad mit Dusche und Badewanne, Bad mit Fenster
  • Tiefgaragenstellplätze
    3
  • Anzahl Etagen
    2
  • Ausrichtung
    Südost, Südwest
  • Ausstattungskategorie
    Luxus
  • Fußboden
    Fliesen, Stein, Holz/Dielen
  • Anbieter-Objektnummer
    MG-0001751_4

Preise & Kosten

  • Courtage
    Provisionsfrei

Energie

  • Heizungsart
    Fussbodenheizung
  • Befeuerungsart
    Gas

Ausstattung

  • Keller

Standort & Lage

6370 Kitzbühel · Tirol · AUT

Die genaue Anschrift erfahren Sie vom Anbieter

Anbieter

Logo von KITZIMMO - Real Estate - OG
2025 Best Property Agents

Ansprechpartner

Verbraucherhinweis

Widerrufsbelehrung des Anbieters

(Gilt nicht für Wohnraummiete in Deutschland)

Widerrufsrecht für Verbraucher
Sie haben das Recht, binnen vierzehn Tagen ohne Angabe von Gründen diesen Vertrag zu widerrufen. Die Widerrufsfrist beträgt vierzehn Tage ab dem Tag des Vertragsabschlusses.
Um Ihr Widerrufsrecht auszuüben, müssen Sie uns (KITZIMMO - Real Estate - OG, Im Gries 27, 6370 Kitzbühel, 0043-676-7047120, 0043-5356-67677, office@kitzimmo.at) mittels einer eindeutigen Erklärung (z. B. ein mit der Post versandter Brief, Telefax oder E-Mail) über Ihren Entschluss, diesen Vertrag zu widerrufen, informieren. Sie können dafür das beigefügte Muster-Widerrufsformular verwenden, das jedoch nicht vorgeschrieben ist. Zur Wahrung der Widerrufsfrist reicht es aus, dass Sie die Mitteilung über die Ausübung des Widerrufsrechts vor Ablauf der Widerrufsfrist absenden.

Folgen des Widerrufs
Wenn Sie diesen Vertrag widerrufen, haben wir Ihnen alle Zahlungen, die wir von Ihnen erhalten haben, einschließlich der Lieferkosten (mit Ausnahme der zusätzlichen Kosten, die sich daraus ergeben, dass Sie eine andere Art der Lieferung als die von uns angebotene, günstigste Standardlieferung gewählt haben), unverzüglich und spätestens binnen vierzehn Tagen ab dem Tag zurückzuzahlen, an dem die Mitteilung über Ihren Widerruf dieses Vertrags bei uns eingegangen ist. Für diese Rückzahlung verwenden wir dasselbe Zahlungsmittel, das Sie bei der ursprünglichen Transaktion eingesetzt haben, es sei denn, mit Ihnen wurde ausdrücklich etwas anderes vereinbart; in keinem Fall werden Ihnen wegen dieser Rückzahlung Entgelte berechnet. Haben Sie verlangt, dass die Dienstleistungen während der Widerrufsfrist beginnen soll, so haben Sie uns einen angemessenen Betrag zu zahlen, der dem Anteil der bis zu dem Zeitpunkt, zu dem Sie uns von der Ausübung des Widerrufsrechts hinsichtlich dieses Vertrags unterrichten, bereits erbrachten Dienstleistungen im Vergleich zum Gesamtumfang der im Vertrag vorgesehenen Dienstleistungen entspricht.

Muster-Widerrufsformular
(Wenn Sie den Vertrag widerrufen wollen, dann füllen Sie dieses Formular aus und senden Sie es zurück.)

An KITZIMMO - Real Estate - OG, Im Gries 27, 6370 Kitzbühel, 0043-676-7047120, 0043-5356-67677, office@kitzimmo.at

Hiermit widerrufe ich/wir den von mir/uns abgeschlossenen Vertrag über den Kauf der folgenden Waren /die Erbringung der folgenden Dienstleistung


Bestellt am /erhalten am

Name des/der Verbraucher(s)

Anschrift des/der Verbraucher(s)

Unterschrift des/der Verbraucher(s) (nur bei Mitteilung auf Papier)

Datum


( Unzutreffendes streichen )


Hinweis auf die Möglichkeit eines vorzeitigen Erlöschens des Widerrufsrechts

Ihr Widerrufsrecht erlischt, wenn wir unsere Leistung vollständig erbracht haben und mit der Ausführung der Leistung erst begonnen haben, nachdem Sie Ihre ausdrückliche Zustimmung gegeben haben und gleichzeitig Ihre Kenntnis davon bestätigt haben, dass Sie Ihr Widerrufsrecht bei vollständiger Vertragserfüllung durch uns verlieren.

Impressum KITZIMMO - Real Estate - OG
VERTRETUNGSBERECHTIGTE/R
Franz Gobec RR Bgm.a.D.


Im Gries 27
6370 Kitzbühel
AUT
Tel.: 0043-676-7047120
E-Mail: office@kitzimmo.at
Fax: 0043-5356-67677
Homepage: https://www.kitzimmo.at/

ZUSTÄNDIGE AUFSICHTSBEHÖRDE
Bezirkshauptmannschaft Kitzbühel

UST-ID-NUMMER
ATU76179109

ZUSÄTZLICHER TEXT
staatl. gepr. und konzess. Immobilientreuhänder, Immobilienmakler, Immobilienverwalter und Bauträger, Mitglied des Ehrenschiedsgerichtes Tirol
Anbieter kontaktieren

AGB, Datenschutz & Verbraucherhinweis wurden gelesen und akzeptiert.