Anbieter kontaktieren

AGB, Datenschutz & Verbraucherhinweis wurden gelesen und akzeptiert.

Kensington Artà - Martina Albrecht S.L.

KENSINGTON Finest Properties International Mallorca Nordosten
07570 Artà
  • Mehr erfahren
bellevue.de-ID: 30441277

Baugrundstück mit Neubau Projekt und Panoramablick zwischen Arta und Manacor

  • Haus
  • · 5 Zimmer
  • · 17.757 m² Grundstücksfläche
  • · 320.000 € Kaufpreis
Anbieter kontaktieren

Objektbeschreibung

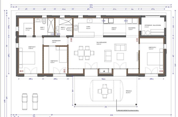
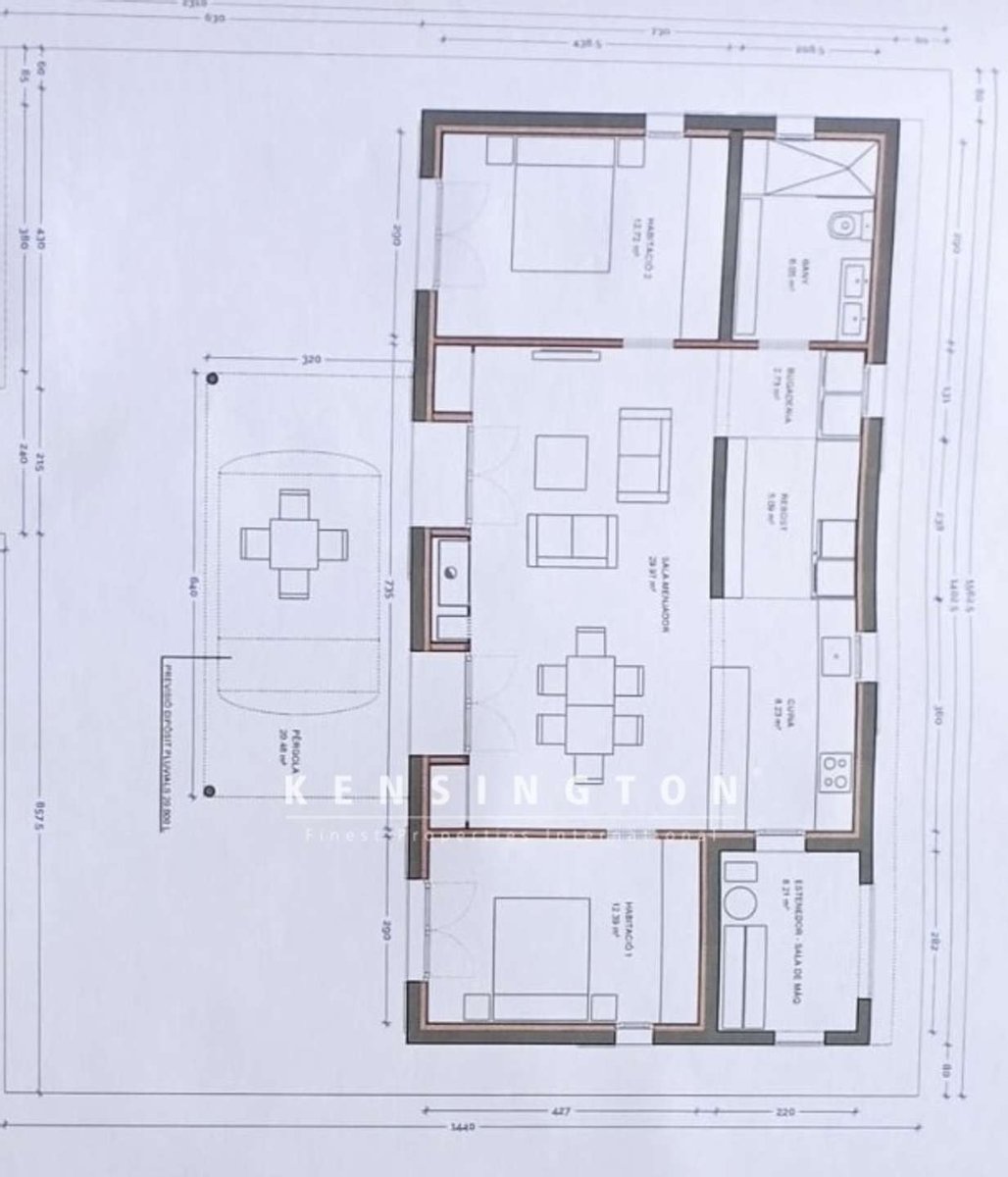
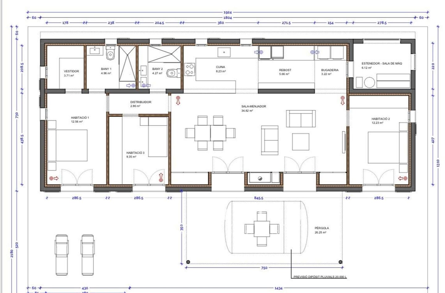
Eingebettet inmitten der mallorquinischen Natur zwischen Manacor und Artà befindet sich dieses 17.757,00 m² Grundstück mit Basisprojekt für eine ebenerdige Neubau-Finca.

Das Basisprojekt sieht derzeit eine bebaute Fläche von ca. 266m² vor. Das ...mehr lesen
Eingebettet inmitten der mallorquinischen Natur zwischen Manacor und Artà befindet sich dieses 17.757,00 m² Grundstück mit Basisprojekt für eine ebenerdige Neubau-Finca.

Das Basisprojekt sieht derzeit eine bebaute Fläche von ca. 266m² vor. Das Projekt besticht mit einem offenen, sehr durchdachten Planung und bietet Raumhöhen von bis zu 3,70m. Geplant ist ein offener Wohnbereich mit Küche, 2 Schlafzimmer und 2 Bäder.
Der Aussenbereich punktet mit einer überdachten Terrasse mit einem wunderbaren Blick hinweg über den 35m² grossen Pool ins Grüne. Solarenergie ist im Plan enthalten.

Wir empfehlen unsere bekannten und kompetenten Architekten und Bauunternehmen, die die Planung und Bauausführung gemäß den Wünschen unserer Kunden umsetzen. Außerdem begleiten wir unsere Kunden während der gesamten Bauphase und darüber hinaus.

Wir empfehlen eine Besichtigung!

Bitte kontaktieren Sie uns für weitere Informationen: +34 670 275 663 oder arta@kensington-international.com.

Immobiliendetails

  • Nutzungsart
    Wohnen
  • Hauptobjektart
    Haus
  • Vertragsart
    Kauf
  • Objektzustand
    Projektiert
  • Zimmer (gesamt)
    5
  • Anzahl Schlafzimmer
    3
  • Anzahl Badezimmer
    4
  • Grundstücksfläche (ca.)
    17.757 m²
  • Anbieter-Objektnummer
    KPNO637

Preise & Kosten

  • Courtage
    Provisionsfrei

Energie

  • Gebäudeart
    Wohngebäude

Standort & Lage

Manacor, eine wunderschöne Stadt im Osten Mallorcas, ist für ihr reiches kulturelles Erbe und ihre atemberaubende Naturschönheit bekannt.

Manacor lohnt sich immer wieder ein ausgiebiger Bummel durch die vielen Modeläden, die schönen Dekorations- und ...mehr lesen
Manacor, eine wunderschöne Stadt im Osten Mallorcas, ist für ihr reiches kulturelles Erbe und ihre atemberaubende Naturschönheit bekannt.

Manacor lohnt sich immer wieder ein ausgiebiger Bummel durch die vielen Modeläden, die schönen Dekorations- und Möbelhäuser oder der Besuch des täglichen Gemüsemarktes. Die zweitgrösste Stadt der Insel bietet nicht nur top Einkaufsmöglichkeiten und ein allgemeines Krankenhaus, sondern auch die Rafael Nadal Academy, eine internationale Schule mit sehr gutem Ruf.

Aber auch unzählige Strände und Buchten erreicht man in ca. 20 Minuten Fahrtzeit.

07500 Manacor · Mallorca - Nordost - Manacor · Mallorca · ESP

Die genaue Anschrift erfahren Sie vom Anbieter

Anbieter

Logo von Kensington Artà - Martina Albrecht S.L.
2025 Best Property Agents

Ansprechpartner

KENSINGTON Finest Properties International Mallorca Nordosten

Carrer de Ciutat 22
07570 Artà
Verbraucherhinweis

Widerrufsbelehrung des Anbieters

(Gilt nicht für Wohnraummiete in Deutschland)

Widerrufsrecht für Verbraucher
Sie haben das Recht, binnen vierzehn Tagen ohne Angabe von Gründen diesen Vertrag zu widerrufen. Die Widerrufsfrist beträgt vierzehn Tage ab dem Tag des Vertragsabschlusses.
Um Ihr Widerrufsrecht auszuüben, müssen Sie uns (Kensington Finest Properties Int., Carrer Ciutat 22, 07570 Artá, +34 670 275 663, martina.albrecht@kensington-international.com) mittels einer eindeutigen Erklärung (z. B. ein mit der Post versandter Brief, Telefax oder E-Mail) über Ihren Entschluss, diesen Vertrag zu widerrufen, informieren. Sie können dafür das beigefügte Muster-Widerrufsformular verwenden, das jedoch nicht vorgeschrieben ist. Zur Wahrung der Widerrufsfrist reicht es aus, dass Sie die Mitteilung über die Ausübung des Widerrufsrechts vor Ablauf der Widerrufsfrist absenden.

Folgen des Widerrufs
Wenn Sie diesen Vertrag widerrufen, haben wir Ihnen alle Zahlungen, die wir von Ihnen erhalten haben, einschließlich der Lieferkosten (mit Ausnahme der zusätzlichen Kosten, die sich daraus ergeben, dass Sie eine andere Art der Lieferung als die von uns angebotene, günstigste Standardlieferung gewählt haben), unverzüglich und spätestens binnen vierzehn Tagen ab dem Tag zurückzuzahlen, an dem die Mitteilung über Ihren Widerruf dieses Vertrags bei uns eingegangen ist. Für diese Rückzahlung verwenden wir dasselbe Zahlungsmittel, das Sie bei der ursprünglichen Transaktion eingesetzt haben, es sei denn, mit Ihnen wurde ausdrücklich etwas anderes vereinbart; in keinem Fall werden Ihnen wegen dieser Rückzahlung Entgelte berechnet. Haben Sie verlangt, dass die Dienstleistungen während der Widerrufsfrist beginnen soll, so haben Sie uns einen angemessenen Betrag zu zahlen, der dem Anteil der bis zu dem Zeitpunkt, zu dem Sie uns von der Ausübung des Widerrufsrechts hinsichtlich dieses Vertrags unterrichten, bereits erbrachten Dienstleistungen im Vergleich zum Gesamtumfang der im Vertrag vorgesehenen Dienstleistungen entspricht.

Muster-Widerrufsformular
(Wenn Sie den Vertrag widerrufen wollen, dann füllen Sie dieses Formular aus und senden Sie es zurück.)

An Kensington Finest Properties Int., Carrer Ciutat 22, 07570 Artá, +34 670 275 663, martina.albrecht@kensington-international.com

Hiermit widerrufe ich/wir den von mir/uns abgeschlossenen Vertrag über den Kauf der folgenden Waren /die Erbringung der folgenden Dienstleistung


Bestellt am /erhalten am

Name des/der Verbraucher(s)

Anschrift des/der Verbraucher(s)

Unterschrift des/der Verbraucher(s) (nur bei Mitteilung auf Papier)

Datum


( Unzutreffendes streichen )


Hinweis auf die Möglichkeit eines vorzeitigen Erlöschens des Widerrufsrechts

Ihr Widerrufsrecht erlischt, wenn wir unsere Leistung vollständig erbracht haben und mit der Ausführung der Leistung erst begonnen haben, nachdem Sie Ihre ausdrückliche Zustimmung gegeben haben und gleichzeitig Ihre Kenntnis davon bestätigt haben, dass Sie Ihr Widerrufsrecht bei vollständiger Vertragserfüllung durch uns verlieren.

Impressum Kensington Finest Properties Int.
VERTRETUNGSBERECHTIGTE/R
Martina Albrecht


Carrer Ciutat 22
07570 Artá
ESP
Tel.: +34 670 275 663
E-Mail: martina.albrecht@kensington-international.com
Homepage: www.kensington-mallorca.com

UST-ID-NUMMER
NIF: B67824342
Anbieter kontaktieren

AGB, Datenschutz & Verbraucherhinweis wurden gelesen und akzeptiert.