Anbieter kontaktieren

AGB, Datenschutz & Verbraucherhinweis wurden gelesen und akzeptiert.

Goschler & Partner Inmobiliaria S.L.

Bild/Logo: Sirpa Goschler
Sirpa Goschler
07570 Artà
  • Mehr erfahren
bellevue.de-ID: 30400585

Baugrundstück mit Lizenz für ein modernes Neubauprojekt in Bestlage, Font de Sa Cala

  • Grundstück
  • · 855 m² Grundstücksfläche
  • · 819.000 € Kaufpreis
Anbieter kontaktieren

Objektbeschreibung

Dieses wunderschöne Grundstück befindet sich in Hanglage mit Blick auf das Meer in Font de Sa Cala.

Das Baugrundstück hat eine Fläche von ca. 855 qm.

Eine Lizenz für die Bebauung des Grundstückes mit einem Einfamilienhaus mit Pool liegt bereits vor.
Das ...mehr lesen
Dieses wunderschöne Grundstück befindet sich in Hanglage mit Blick auf das Meer in Font de Sa Cala.

Das Baugrundstück hat eine Fläche von ca. 855 qm.

Eine Lizenz für die Bebauung des Grundstückes mit einem Einfamilienhaus mit Pool liegt bereits vor.
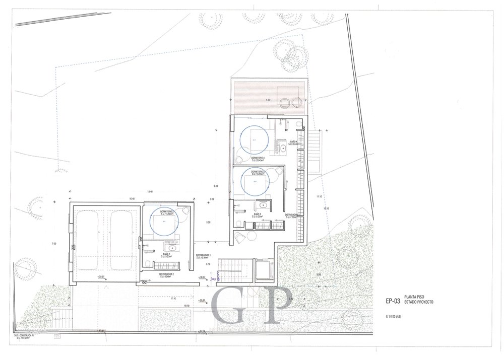
Das derzeitige Projekt, wie angezeigt, weist eine bebaute Fläche von ca, 490 qm auf.

Das derzeitige Projekt ist wie folgt geplant:
Erdgeschoss:
Ein großer Wohn- und Essbereich mit offener Küche, ein Büro, eine Schlafzimmer mit Ankleidebereich und Badezimmer en-suite sowie eine Gäste Toilette.
Erste Etage:
Drei große Schlafzimmer mit jeweilseinem Badezimmer en-suite und die Garage.
Keller:
Ein Fitness Studio und ein Badezimmer, der Hauswirtschaftsraum und weitere Lager-und Technik Räume.
Im Außenbereich:
Eine großzügige Terrasse mit Pool.

Kontaktieren Sie uns jederzeit gerne für einen ersten Besichtigungstermin!

Immobiliendetails

  • Nutzungsart
    Wohnen
  • Objektart
    Wohngrundstück
  • Hauptobjektart
    Grundstück
  • Vertragsart
    Kauf
  • Grundstücksfläche (ca.)
    855 m²
  • Ausrichtung
    Südost
  • Verfügbarkeit
    ab sofort
  • Anbieter-Objektnummer
    G&P_001095

Preise & Kosten

  • Kaufpreis pro m²
    957,89 €
  • Courtage
    Keine besondere Angabe.

Energie

  • Gebäudeart
    Wohngebäude

Standort & Lage

Der kleine Küstenort Font de Sa Cala befindet sich im Nordosten Mallorcas, ca. 60 km vom Flughafen entfernt.
Der Ort ist eingebettet in die umliegende Hügellandschaft und bietet Ihnen kleine Buchten, einen schönen Sandstrand, Ausgeh- und ...mehr lesen
Der kleine Küstenort Font de Sa Cala befindet sich im Nordosten Mallorcas, ca. 60 km vom Flughafen entfernt.
Der Ort ist eingebettet in die umliegende Hügellandschaft und bietet Ihnen kleine Buchten, einen schönen Sandstrand, Ausgeh- und Einkaufsmöglichkeiten an.
Die Nähe zu Cala Ratjada, Capdepera und Artà trägt zur Beliebtheit dieser Destination bei.

07589 Font De Sa Cala · Mallorca · ESP

Die genaue Anschrift erfahren Sie vom Anbieter

Sonstiges

Die Informationen beruhen auf Angaben des Eigentümers und den zur Verfügung gestellten Unterlagen. Wir übernehmen für diese Angaben keine Haftung.

Anbieter

Logo von Goschler & Partner Inmobiliaria S.L.
2026 Best Property Agents

Ansprechpartner

Bild/Logo: Sirpa Goschler

Sirpa Goschler

Gran Via de la Constitució No. 2
07570 Artà
Verbraucherhinweis

Widerrufsbelehrung des Anbieters

(Gilt nicht für Wohnraummiete in Deutschland)

Widerrufsrecht für Verbraucher
Sie haben das Recht, binnen vierzehn Tagen ohne Angabe von Gründen diesen Vertrag zu widerrufen. Die Widerrufsfrist beträgt vierzehn Tage ab dem Tag des Vertragsabschlusses.
Um Ihr Widerrufsrecht auszuüben, müssen Sie uns (Goschler & Partner Inmobiliaria S.L., Gran Via de la Constitució 2, 07570 Artá, 0034 652 780 735, goschler@gp-mallorcaimmobilien.com) mittels einer eindeutigen Erklärung (z. B. ein mit der Post versandter Brief, Telefax oder E-Mail) über Ihren Entschluss, diesen Vertrag zu widerrufen, informieren. Sie können dafür das beigefügte Muster-Widerrufsformular verwenden, das jedoch nicht vorgeschrieben ist. Zur Wahrung der Widerrufsfrist reicht es aus, dass Sie die Mitteilung über die Ausübung des Widerrufsrechts vor Ablauf der Widerrufsfrist absenden.

Folgen des Widerrufs
Wenn Sie diesen Vertrag widerrufen, haben wir Ihnen alle Zahlungen, die wir von Ihnen erhalten haben, einschließlich der Lieferkosten (mit Ausnahme der zusätzlichen Kosten, die sich daraus ergeben, dass Sie eine andere Art der Lieferung als die von uns angebotene, günstigste Standardlieferung gewählt haben), unverzüglich und spätestens binnen vierzehn Tagen ab dem Tag zurückzuzahlen, an dem die Mitteilung über Ihren Widerruf dieses Vertrags bei uns eingegangen ist. Für diese Rückzahlung verwenden wir dasselbe Zahlungsmittel, das Sie bei der ursprünglichen Transaktion eingesetzt haben, es sei denn, mit Ihnen wurde ausdrücklich etwas anderes vereinbart; in keinem Fall werden Ihnen wegen dieser Rückzahlung Entgelte berechnet. Haben Sie verlangt, dass die Dienstleistungen während der Widerrufsfrist beginnen soll, so haben Sie uns einen angemessenen Betrag zu zahlen, der dem Anteil der bis zu dem Zeitpunkt, zu dem Sie uns von der Ausübung des Widerrufsrechts hinsichtlich dieses Vertrags unterrichten, bereits erbrachten Dienstleistungen im Vergleich zum Gesamtumfang der im Vertrag vorgesehenen Dienstleistungen entspricht.

Muster-Widerrufsformular
(Wenn Sie den Vertrag widerrufen wollen, dann füllen Sie dieses Formular aus und senden Sie es zurück.)

An Goschler & Partner Inmobiliaria S.L., Gran Via de la Constitució 2, 07570 Artá, 0034 652 780 735, goschler@gp-mallorcaimmobilien.com

Hiermit widerrufe ich/wir den von mir/uns abgeschlossenen Vertrag über den Kauf der folgenden Waren /die Erbringung der folgenden Dienstleistung


Bestellt am /erhalten am

Name des/der Verbraucher(s)

Anschrift des/der Verbraucher(s)

Unterschrift des/der Verbraucher(s) (nur bei Mitteilung auf Papier)

Datum


( Unzutreffendes streichen )


Hinweis auf die Möglichkeit eines vorzeitigen Erlöschens des Widerrufsrechts

Ihr Widerrufsrecht erlischt, wenn wir unsere Leistung vollständig erbracht haben und mit der Ausführung der Leistung erst begonnen haben, nachdem Sie Ihre ausdrückliche Zustimmung gegeben haben und gleichzeitig Ihre Kenntnis davon bestätigt haben, dass Sie Ihr Widerrufsrecht bei vollständiger Vertragserfüllung durch uns verlieren.

Impressum Goschler & Partner Inmobiliaria S.L.
VERTRETUNGSBERECHTIGTE/R
Sirpa Goschler


Gran Via de la Constitució 2
07570 Artá
ESP
Tel.: 0034 652 780 735
E-Mail: goschler@gp-mallorcaimmobilien.com
Homepage: www.gp-mallorcaimmobilien.com

ZUSTÄNDIGE AUFSICHTSBEHÖRDE
Conversia Pau Socias Cantallops Tel. 0034 667 618 508 Mail: pau.socias@conversia.es

ZUSÄTZLICHER TEXT
Auf der Suche nach Ihrer Mallorca Immobilie? Wir bieten Ihnen die Vermittlung von Immobilien mit Schwerpunkt in Mallorcas Nordosten an. Wir kennen und lieben diese ursprüngliche Region Mallorcas mit ihren Buchten, Bergen, romantischen und stilvollen Dörfern. Lernen auch Sie Mallorcas Nordosten kennen und lieben! Unser Ziel ist es Ihnen eine optimale Betreuung vom ersten Anruf bis zum Kauf zu bieten. Bei uns zählen Werte wie Zuverlässigkeit, Hingabe, Aufrichtigkeit & Genauigkeit. Wir leben nach diesen. Für Sie streben wir eine persönliche und optimale Betreuung an. Nehmen Sie uns beim Wort! Gemeinsam mit Ihnen möchten wir Ihre Vorstellungen umsetzen und Ihre Ziele erreichen. Ihre Interessen werden wir mit größtem Engagement verfolgen. Wir sind Dienstleister mit Freude am Beruf und werden für Sie den Kauf oder Verkauf einer Immobilie zu einem äußerst zufriedenstellenden Abschluss bringen. Ihre Sirpa & Jana Goschler
Anbieter kontaktieren

AGB, Datenschutz & Verbraucherhinweis wurden gelesen und akzeptiert.