Anbieter kontaktieren

AGB, Datenschutz & Verbraucherhinweis wurden gelesen und akzeptiert.

m² Immobilien GmbH

Andrea Nienhaus
46395 Bocholt
  • Mehr erfahren
bellevue.de-ID: 30268577

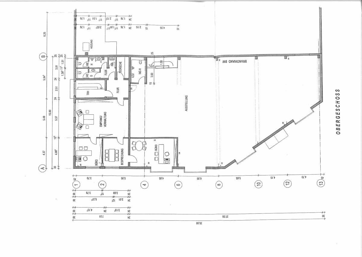
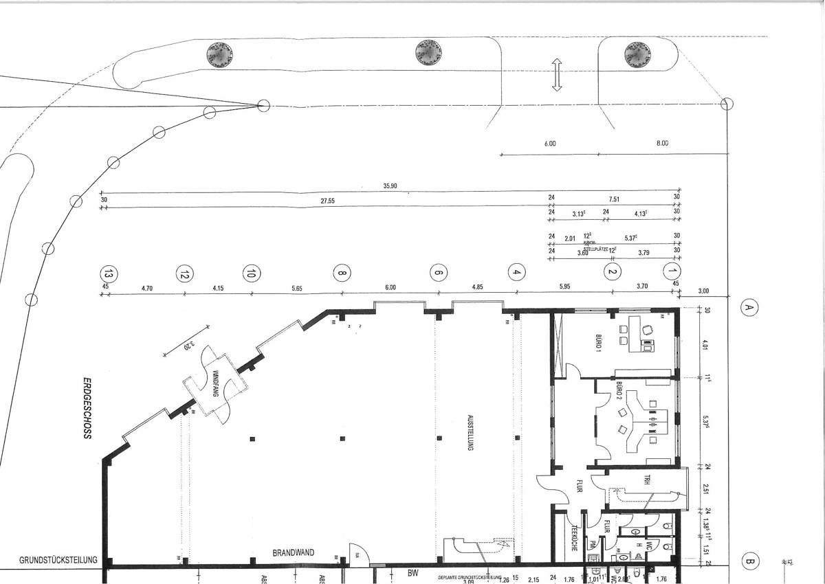
Büro-Austellungsfläche- Lagerfläche- im Industriegebiet MUSSUM - BESTLAGE

  • Halle/Lager/Produktion
  • · 789.000 € Kaufpreis
Anbieter kontaktieren

Objektbeschreibung

Sie suchen Büro- und Lagerflächen?
Willkommen im Bocholter I-Park in Mussum.
Der Haupteingang bietet Zugang zu beiden Gewerbeeinheiten (EG und 1.OG) - somit können nutzbare Synergien entstehen.

Sie können Ihre Einheit auch komplett separieren - So ...mehr lesen
Sie suchen Büro- und Lagerflächen?
Willkommen im Bocholter I-Park in Mussum.
Der Haupteingang bietet Zugang zu beiden Gewerbeeinheiten (EG und 1.OG) - somit können nutzbare Synergien entstehen.

Sie können Ihre Einheit auch komplett separieren - So entstehen dann in guter Lage abgeschlossene Räumlichkeiten mit separatem Eingang. Ein Aufzug für das Obergeschoss ist nachrüstbar.

Immobiliendetails

  • Nutzungsart
    Gewerbe
  • Objektart
    Lagerfläche
  • Hauptobjektart
    Halle/Lager/Produktion
  • Vertragsart
    Kauf
  • Objektzustand
    Gepflegt
  • Baujahr
    1995
  • Anzahl Parkflächen
    15
  • Gesamtfläche (ca.)
    1.200 m²
  • Verkaufsfläche (ca.)
    942 m²
  • Etage
    1
  • Ausstattungskategorie
    Gehoben
  • Fußboden
    Fliesen, Sonstiges
  • Verfügbarkeit
    ab sofort
  • Anbieter-Objektnummer
    3024

Preise & Kosten

  • Courtage
    Provisionsfrei

Energie

  • Energieausweis
    Energieverbrauchsausweis
  • Baujahr (laut Energieausweis)
    1995
  • Energiepass gültig bis
    2030-12-08
  • Gebäudeart
    Nicht-Wohngebäude
  • Wesentlicher Energieträger
    GAS
  • Ausgestellt
    nach dem 1.5.2014

Standort & Lage

In direkter Nähe zur Bundesstrasse B67, die zum einen zur Autobahn Richtung Niederlande führt und zum anderen in Richtung Ruhrgebiet, liegen Ihre zukünftigen Gewerberäume mehr als zentral.

Der größte zusammenhängende, voll erschlossene Industriepark ...mehr lesen
In direkter Nähe zur Bundesstrasse B67, die zum einen zur Autobahn Richtung Niederlande führt und zum anderen in Richtung Ruhrgebiet, liegen Ihre zukünftigen Gewerberäume mehr als zentral.

Der größte zusammenhängende, voll erschlossene Industriepark in Nordrhein-Westfalen!

Mit den neuen Erweiterungsflächen weist der Industriepark Bocholt nun eine Fläche von 300 Hektar an Industrie- und Gewerbefläche aus. Dies ist einzigartig in NRW und bietet 300 Betrieben mit 7.200 Beschäftigten Raum. 46 % der Beschäftigten sind im verarbeitenden Gewerbe tätig. Im Baugewerbe sind 22 % und in den Branchen Verkehr, Transport, und Logistik 18 % aller Arbeitnehmer im I-Park aktiv, wobei nur sieben Prozent der angesiedelten Unternehmen im Bereich Logistik tätig sind.

In den Erweiterungsflächen, welche in insgesamt vier Bauabschnitten entwickelt werden, stehen Grundstücke bis zu einer Größe von 40.000 qm zur Verfügung. Nachdem ein 18 ha großer Abschnitt bereits erschlossen ist, soll der nächste ab 2019 verfügbar sein. Die zwei weiteren Bauabschnitte werden dann entsprechend des Bedarfes entwickelt.

Über die B67 ist der I-Park direkt an die A3 sowie an die A31 und A43 angebunden. Die Flughäfen Düsseldorf (80 km) und Münster-Osnabrück (90 km) sind über den Verkehrsanschluss leicht erreichbar. Gleiches gilt für die Verbindung zu den Nordsee- und Binnenhäfen.
Hinweisschild Industriepark; Foto: Sascha Terörde

46395 Bocholt · Nordrhein-Westfalen · DEU

Die genaue Anschrift erfahren Sie vom Anbieter

Sonstiges

Haftungsausschluss für inhaltliche Richtigkeit übermittelter Daten: Der Makler weist darauf hin, dass für die inhaltliche Richtigkeit der übermittelten Daten des oben genannten Objektes nicht gehaftet werden kann, da er diese vom Eigentümer lediglich ...mehr lesen
Haftungsausschluss für inhaltliche Richtigkeit übermittelter Daten: Der Makler weist darauf hin, dass für die inhaltliche Richtigkeit der übermittelten Daten des oben genannten Objektes nicht gehaftet werden kann, da er diese vom Eigentümer lediglich zur Verfügung gestellt bekommen hat.

Unsere Angebote sind freibleibend. Zwischenverkauf oder -vermietung, Irrtum und Auslassungen bleiben vorbehalten. Mit dieser Immobilienanfrage erklärt sich der Interessent einverstanden, dass die M-Quadrat-Immobilien GmbH ihn bzgl. dieses und weiterer Angebote telefonisch, schriftlich oder per E-Mail-Kontakt erfasst und informiert.

Bitte richten Sie Ihre Anfrage an:

bocholt@m-quadrat-immobilien.de

Wir bitten um Ihr Verständnis, dass wir die vollständigen Angaben zur Immobilie nur übermitteln können, wenn uns alle Kontaktdaten des Interessenten (Postanschrift, Telefon, E-Mail-Adresse) vorliegen.
Verbraucherhinweis

Widerrufsbelehrung des Anbieters


Widerrufsrecht
Sie können Ihre Vertragserklärung (Besichtigung und Beratung bezüglich der Immobilie) innerhalb von 14 Tagen ohne Angabe von Gründen in Textform (z.B. Brief, Fax, Email) widerrufen. Die Frist beginnt nach Erhalt dieser Belehrung in Textform, jedoch nicht vor Vertragsschluss (Ihre Anfrage per Email, Brief oder Telefon) und auch nicht vor der Erfüllung unserer Informationspflichten gemäß Artikel 246 § 2 in Verbindung mit § 1 Abs. 1 und 2 EGBGB sowie unserer Pflichten gemäß § 312 g Abs. 1 Satz 1 BGB in Verbindung mit Artikel 246 § 3 EGBGB. Zur Wahrung der Widerrufsfrist genügt die rechtzeitige Absendung des Widerrufs. Der Widerruf ist zu richten an:
m² Immobilien GmbH, Gräfrather Markt 4, 42653 Solingen, Email: info@m-quadrat-immobilien.de, www.m-quadrat-immobilien.de

Widerrufsfolgen
Im Falle eines wirksamen Widerrufs (keine Besichtigung oder Beratung bezüglich des Objektes gewünscht) sind die beiderseits empfangenen Leistungen zurückzugewähren und ggf. gezogene Nutzungen (z.B. Exposés) herauszugeben. Können Sie uns die empfangene Leistung ganz oder teilweise nicht oder nur in verschlechtertem Zustand zurückgewähren, müssen Sie uns insoweit ggf. Wertersatz leisten. Dies kann dazu führen, dass Sie die vertraglichen Zahlungsverpflichtungen für den Zeitraum bis zum Widerruf gleichwohl erfüllen müssen. Verpflichtungen zur Erstattung von Zahlungen müssen innerhalb von 30 Tagen erfüllt werden. Die Frist beginnt für Sie mit der Absendung Ihrer Widerrufserklärung, für uns mit deren Empfang.

Besondere Hinweise
Ihr Widerrufsrecht (bezüglich Beratung und Besichtigung) erlischt vorzeitig, wenn der Vertrag (Ihr Wunsch zur Besichtigung und Beratung) von beiden Seiten auf Ihren ausdrücklichen Wunsch vollständig erfüllt ist, bevor Sie Ihr Widerrufsrecht ausgeübt haben.

Besondere Vereinbarungen
Ich,(Name des Kunden) erkläre mich damit einverstanden, dass m² Immobilien, bereits vor Ablauf der 14-tägigen Frist mit der Erfüllung des Vertrages (Exposézusendung, Besichtigungs- und Beratungstermine) beginnen kann.
Bei Widerruf des Vertrages nach Kauf/Miete einer Immobilie ist Wertersatz in Höhe der vollen Provision zu leisten.

Impressum m² Immobilien GmbH
VERTRETUNGSBERECHTIGTE/R
Hans Buchs


Gräfrather Markt 4
42653 Solingen
DEU
Tel.: 0212/2543616
E-Mail: info@m-quadrat-immobilien.de
Fax: 0212/2543617
Homepage: https://www.m-quadrat-immobilien.de

ZUSTÄNDIGE AUFSICHTSBEHÖRDE
Ordnungsamt Solingen, Gasstraße 22, 42651 Solingen

HANDELSREGISTER-EINTRAG
Amtsgericht Wuppertal, HRB 15799


UST-ID-NUMMER
DE 134 557 39

ZUSÄTZLICHER TEXT
Verbraucherinformationen Online-Streitbeilegung gemäß Art. 14 Abs. 1 ODR-VO: Die Europäische Kommission stellt eine Plattform zur Online-Streitbeilegung (OS) bereit, die Sie hier finden: http://ec.europa.eu/consumers/odr
Anbieter kontaktieren

AGB, Datenschutz & Verbraucherhinweis wurden gelesen und akzeptiert.