Angebot 739 von 3207

Anbieter kontaktieren

AGB, Datenschutz & Verbraucherhinweis wurden gelesen und akzeptiert.

HausHirsch GmbH

Benjamin Bestgen
20253 Hamburg
  • Mehr erfahren
bellevue.de-ID: 30619417

Sanierungsbedürftiges Haus auf großem Erbbaugrundstück

  • Haus
  • · 3 Zimmer
  • · 106 m² Wohnfläche
  • · 1.024 m² Grundstücksfläche
  • · 199.000 € Kaufpreis
Anbieter kontaktieren

Objektbeschreibung

Sie sind handwerklich begabt und wollen Sie Ihr neues Zuhause selbst gestalten? – Dann haben wir hier vielleicht genau das richtige für Sie.

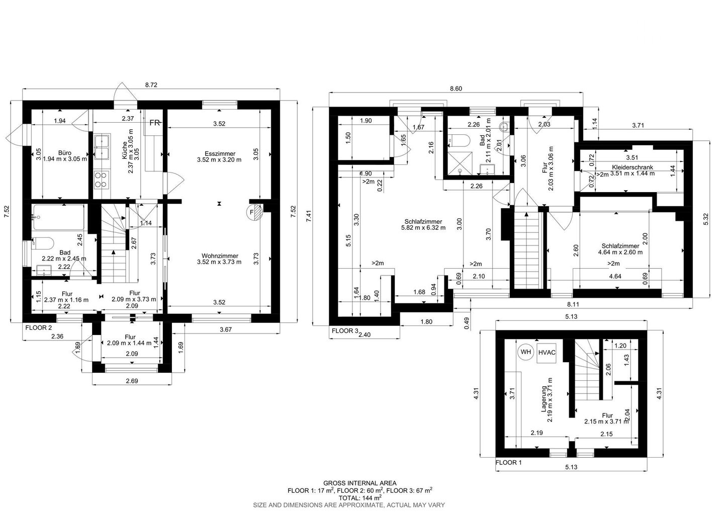
Das ca. 105,98 m² große Einfamilienhaus aus den 50´er Jahren wurde in Massivbauweise auf dem ca. 1.024 m² ...mehr lesen
Sie sind handwerklich begabt und wollen Sie Ihr neues Zuhause selbst gestalten? – Dann haben wir hier vielleicht genau das richtige für Sie.

Das ca. 105,98 m² große Einfamilienhaus aus den 50´er Jahren wurde in Massivbauweise auf dem ca. 1.024 m² großem Erbpachtgrundstück errichtet.

Durch die Eingangstüre gelangen Sie ins Erdgeschoss und nach einem kleinen Windfang dem Uhrzeigersinn folgend befinden sich ein Wannenbad, die Küche mit anliegendem Zimmer und Durchgang in den Garten sowie zur Garage.

Daneben schließt sich ein durchgängiges helles Ess- und Wohnzimmer an, das besonders durch den Kamin an Atmosphäre gewinnt.

Über die Treppe geht es ins Dachgeschoss. Dort befinden sich zwei geräumige Schlafzimmer, ein Duschbad sowie ein Abstellraum.

Das Gebäude ist teilunterkellert, dort befinden sich die Hauptanschlüsse sowie die Heizung.

Im Garten befindet sich großzügige Schuppen, die bisher als Hobbywerkstatt und Lagerraum genutzt wurden.

Neben einer eigenen Garage bietet die Einfahrt des Hauses genug Platz, um ein weiteres Fahrzeug zu parken.

Das Haus befindet sich auf einem Erbbaugrundstücks der Bundesrepublik Deutschland, vertreten durch die Bundesanstalt für Immobilienaufgaben.
Der Vertrag läuft seit dem 01.04.1950 mit einer Dauer von 99 Jahren.
Der aktuelle Erbpachtzins beträgt 47,85 € jährlich.
Die Entschädigung bei Heimfall beträgt 2/3 des Gemeinwertes der Bauwerke und nach Ablauf besteht ein Anrecht auf Verlängerung des Erbbauvertrages.

Wichtig: Es handelt sich hier um eine Immobilie, die aus einem Nachlass heraus verkauft wird. Da die Unterlagen des Bauamtes nur sehr spärlich sind, können über Baujahr, Baubeschreibung und Co. keine expliziten Aussagen getroffen werden.
Zudem konnten wir weder die ursprüngliche Baugenehmigung als auch die Genehmigung für die Schuppen finden.
Die Angaben beruhen daher auf den uns vorliegenden und augenscheinlich erkennbaren Informationen.
Zu Modernisierungen etc. können daher auch keine genauen Angaben erfolgen.

Immobiliendetails

  • Nutzungsart
    Wohnen
  • Objektart
    Doppelhaushälfte
  • Hauptobjektart
    Haus
  • Vertragsart
    Kauf
  • Objektzustand
    Sanierungsbedürftig
  • Baujahr
    1950
  • Zimmer (gesamt)
    3
  • Anzahl Schlafzimmer
    2
  • Anzahl Badezimmer
    2
  • Anzahl Parkflächen
    1
  • Wohnfläche (ca.)
    105,98 m²
  • Grundstücksfläche (ca.)
    1.024 m²
  • Bad
    Bad mit Dusche und Badewanne, Duschbad
  • Stellplatzart
    Garage
  • Garagenstellplätze
    1
  • Ausstattungskategorie
    Standard
  • Verfügbarkeit
    ab sofort
  • Anbieter-Objektnummer
    BB202605

Preise & Kosten

  • Courtage
    Die angegebene Käuferprovision (inkl. MwSt.) ist verdient und fällig mit Beurkundung des notariellen Kaufvertrages.

    3,57 % inklusive der gesetzlichen Mehrwertsteuer

Energie

  • Heizungsart
    Zentralheizung
  • Befeuerungsart
    Gas
  • Energieausweis
    Energiebedarfsausweis
  • Endenergiebedarf
    433,69 kWh/(m²*a)
  • Energiepass gültig bis
    03.08.2035
  • Energieeffizienzklasse
    H
  • Gebäudeart
    Wohngebäude
  • Wesentlicher Energieträger
    Gas
  • Ausgestellt
    nach dem 1.5.2014

Ausstattung

  • Kamin
  • Garten
- 1.024 m² großes Grundstück
- sanierungsbedürftiges Einfamilienhaus mit ca. 105,98 m² Wohnfläche
- 3 Zimmer, davon 2 Schlafzimmer
- 2 Bäder
- Kamin
- Garage
- Schuppen im Garten

Standort & Lage

Diese Immobilie befindet sich in Bad Schwartau, einer charmanten Stadt im Herzen Schleswig-Holsteins, nicht weit von Lübeck entfernt.

Dabei bietet Bad Schwartau eine ruhige und dennoch gut angebundene Wohnumgebung, perfekt für diejenigen, die Natur ...mehr lesen
Diese Immobilie befindet sich in Bad Schwartau, einer charmanten Stadt im Herzen Schleswig-Holsteins, nicht weit von Lübeck entfernt.

Dabei bietet Bad Schwartau eine ruhige und dennoch gut angebundene Wohnumgebung, perfekt für diejenigen, die Natur und Komfort vereinen möchten.

Denn in einem Umkreis von 3 Kilometern finden Sie alle Geschäfte des täglichen Bedarfs, Ärzte, Apotheken, Schulen, Kitas, Krankenhaus usw..

Und nur einen kurzen Fußweg von 2 Minuten entfernt finden Sie die nächste Haltestelle des öffentlichen Personennahverkehrs (ÖPNV), die eine bequeme und schnelle Anbindung gewährleistet.

Die nächste Autobahn ist lediglich 3 Fahrminuten entfernt, was Pendlern und Reisenden eine ausgezeichnete Verkehrsanbindung bietet.
Sie sind daher nicht nur schnell in Lübeck oder Hamburg, auch die Ostsee ist innerhalb kürzester Zeit erreichbar.

Ebenfalls nur 14 Fahrminuten entfernt befindet sich der nächste Hauptbahnhof, von dem aus Sie nahtlos in andere Regionen reisen können.

Der nächste Flughafen ist in etwa 21 Fahrminuten erreichbar, ideal für Geschäftsreisende oder Urlauber.

23611 Bad Schwartau · DEU

Die genaue Anschrift erfahren Sie vom Anbieter

Sonstiges

Sie planen selbst, eine Immobilie zu verkaufen und benötigen eine professionelle Marktwerteinschätzung? Sprechen Sie uns gerne an, wir helfen Ihnen unverbindlich weiter.

Sie benötigen Kontakt zu einem Energieberater / einer Energieberaterin oder einem ...mehr lesen
Sie planen selbst, eine Immobilie zu verkaufen und benötigen eine professionelle Marktwerteinschätzung? Sprechen Sie uns gerne an, wir helfen Ihnen unverbindlich weiter.

Sie benötigen Kontakt zu einem Energieberater / einer Energieberaterin oder einem Finanzierer / einer Finanziererin? Auch diesen Kontakt stellen wir Ihnen gerne her.

Ansprechpartner

Verbraucherhinweis

Widerrufsbelehrung des Anbieters

(Gilt nicht für Wohnraummiete in Deutschland)

Widerrufsrecht für Verbraucher
Sie haben das Recht, binnen vierzehn Tagen ohne Angabe von Gründen diesen Vertrag zu widerrufen. Die Widerrufsfrist beträgt vierzehn Tage ab dem Tag des Vertragsabschlusses.
Um Ihr Widerrufsrecht auszuüben, müssen Sie uns (HausHirsch GmbH, Dreischeibenhaus 1, 40211D Düsseldorf, +49 0 800 000 1244, +49 211 8825025, info@haushirsch.de) mittels einer eindeutigen Erklärung (z. B. ein mit der Post versandter Brief, Telefax oder E-Mail) über Ihren Entschluss, diesen Vertrag zu widerrufen, informieren. Sie können dafür das beigefügte Muster-Widerrufsformular verwenden, das jedoch nicht vorgeschrieben ist. Zur Wahrung der Widerrufsfrist reicht es aus, dass Sie die Mitteilung über die Ausübung des Widerrufsrechts vor Ablauf der Widerrufsfrist absenden.

Folgen des Widerrufs
Wenn Sie diesen Vertrag widerrufen, haben wir Ihnen alle Zahlungen, die wir von Ihnen erhalten haben, einschließlich der Lieferkosten (mit Ausnahme der zusätzlichen Kosten, die sich daraus ergeben, dass Sie eine andere Art der Lieferung als die von uns angebotene, günstigste Standardlieferung gewählt haben), unverzüglich und spätestens binnen vierzehn Tagen ab dem Tag zurückzuzahlen, an dem die Mitteilung über Ihren Widerruf dieses Vertrags bei uns eingegangen ist. Für diese Rückzahlung verwenden wir dasselbe Zahlungsmittel, das Sie bei der ursprünglichen Transaktion eingesetzt haben, es sei denn, mit Ihnen wurde ausdrücklich etwas anderes vereinbart; in keinem Fall werden Ihnen wegen dieser Rückzahlung Entgelte berechnet. Haben Sie verlangt, dass die Dienstleistungen während der Widerrufsfrist beginnen soll, so haben Sie uns einen angemessenen Betrag zu zahlen, der dem Anteil der bis zu dem Zeitpunkt, zu dem Sie uns von der Ausübung des Widerrufsrechts hinsichtlich dieses Vertrags unterrichten, bereits erbrachten Dienstleistungen im Vergleich zum Gesamtumfang der im Vertrag vorgesehenen Dienstleistungen entspricht.

Muster-Widerrufsformular
(Wenn Sie den Vertrag widerrufen wollen, dann füllen Sie dieses Formular aus und senden Sie es zurück.)

An HausHirsch GmbH, Dreischeibenhaus 1, 40211D Düsseldorf, +49 0 800 000 1244, +49 211 8825025, info@haushirsch.de

Hiermit widerrufe ich/wir den von mir/uns abgeschlossenen Vertrag über den Kauf der folgenden Waren /die Erbringung der folgenden Dienstleistung


Bestellt am /erhalten am

Name des/der Verbraucher(s)

Anschrift des/der Verbraucher(s)

Unterschrift des/der Verbraucher(s) (nur bei Mitteilung auf Papier)

Datum


( Unzutreffendes streichen )


Hinweis auf die Möglichkeit eines vorzeitigen Erlöschens des Widerrufsrechts

Ihr Widerrufsrecht erlischt, wenn wir unsere Leistung vollständig erbracht haben und mit der Ausführung der Leistung erst begonnen haben, nachdem Sie Ihre ausdrückliche Zustimmung gegeben haben und gleichzeitig Ihre Kenntnis davon bestätigt haben, dass Sie Ihr Widerrufsrecht bei vollständiger Vertragserfüllung durch uns verlieren.

Impressum HausHirsch GmbH
VERTRETUNGSBERECHTIGTE/R
Marius Wolf


Dreischeibenhaus 1
40211D Düsseldorf
DEU
Tel.: +49 0 800 000 1244
E-Mail: info@haushirsch.de
Fax: +49 211 8825025
Homepage: https://haushirsch.de

ZUSTÄNDIGE AUFSICHTSBEHÖRDE
Die Gewerbeanmeldung nach § 34 c GewO wurde durch Stadt Düsseldorf (www.duesseldorf.de) erteilt.

HANDELSREGISTER-EINTRAG
Amtsgericht Düsseldorf, HRB 99093


UST-ID-NUMMER
DE362155160
Anbieter kontaktieren

AGB, Datenschutz & Verbraucherhinweis wurden gelesen und akzeptiert.