Angebot 4301 von 16976

Anbieter kontaktieren

AGB, Datenschutz & Verbraucherhinweis wurden gelesen und akzeptiert.

HausHirsch GmbH

Benjamin Bestgen
20253 Hamburg
  • Mehr erfahren
bellevue.de-ID: 30619413

Zweizimmerwohnung zum Selbstgestalten

  • Wohnung
  • · 2 Zimmer
  • · 62 m² Wohnfläche
  • · 6.025 m² Grundstücksfläche
  • · 159.000 € Kaufpreis
Anbieter kontaktieren

Objektbeschreibung

Sie suchen eine Wohnung, die Sie selbst gestalten können, wie Sie es möchten? - Dann haben wir hier genau das richtige für Sie.

Die hier angebotene 2-Zimmerwohnung bietet großes Potential, da sich sämtliche Gewerke wie Elektrik, Sanitär, Böden und ...mehr lesen
Sie suchen eine Wohnung, die Sie selbst gestalten können, wie Sie es möchten? - Dann haben wir hier genau das richtige für Sie.

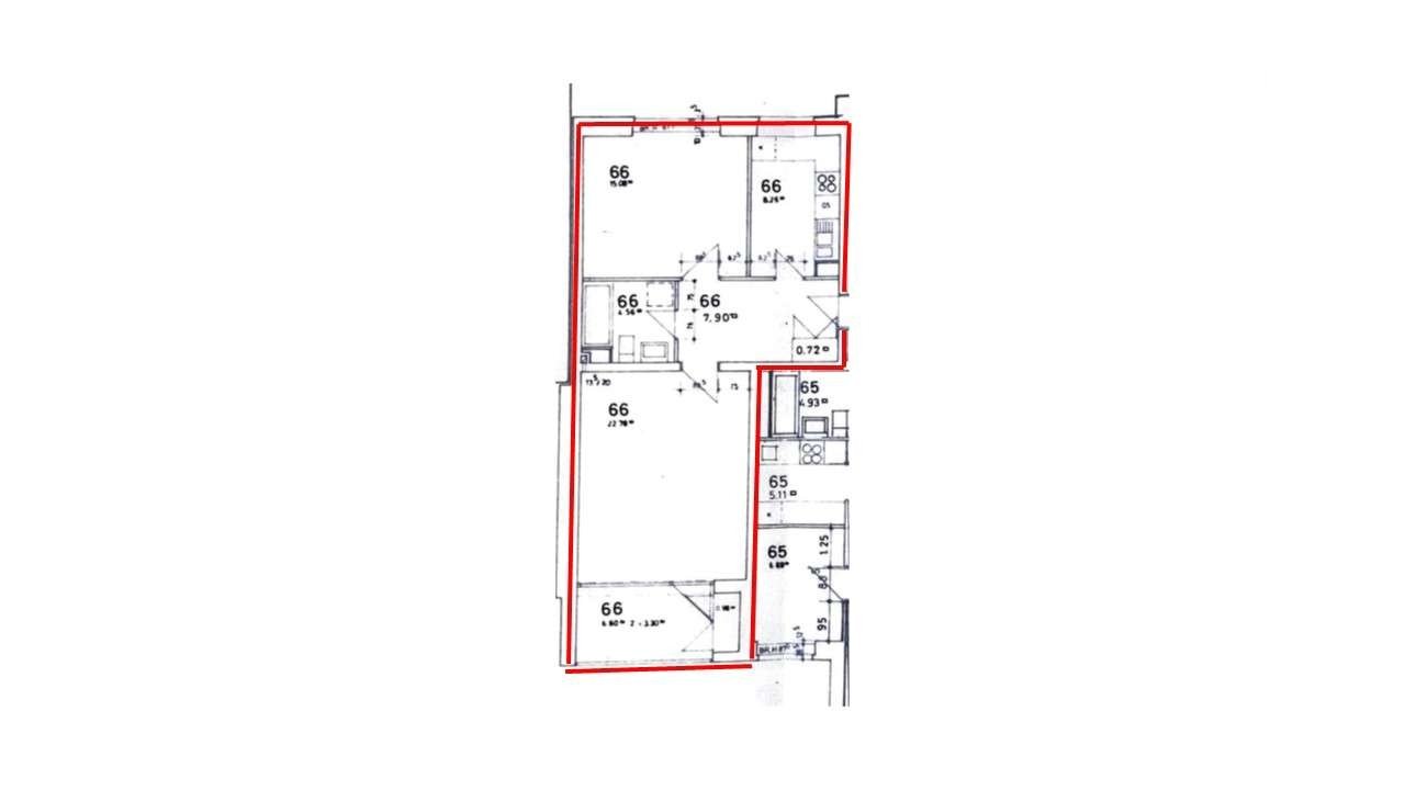
Die hier angebotene 2-Zimmerwohnung bietet großes Potential, da sich sämtliche Gewerke wie Elektrik, Sanitär, Böden und Decken noch im ursprünglichen Zustand befinden. Dabei überzeugt sie mit einer Wohnfläche von rund 61,76 m² durch Schnitt und Aufteilung sowie der Ausrichtung.

Die Wohneinheit mit Südbalkon befindet sich in einem gepflegten Mehrfamilienhaus auf einem ca. 6.025 m² großen Grundstück, das insgesamt 78 Wohnungen beheimatet.
Außerdem gehört ein Tiefgaragenstellplatz dazu, der über ein eigenes Grundbuch verfügt.

Die gut geschnittene Etagenwohnung befindet sich im 2. Obergeschoss des achtstöckigen Gebäudes und ist bequem per Aufzug erreichbar.

Dem Uhrzeigersinn folgend liegt das große Wohnzimmer mit Süd-Balkon auf der linken Seite, die zur Straße gelegen ist. Der Balkon verfügt dabei über einen kleine Abstellkammer.

Das großzügige Badezimmer mit Duschwanne finden Sie am Ende des Flur ggb. des Eingangs. Eine Neugestaltung bietet die Möglichkeit, neben neuen Sanitäreinrichtungen auch einen Waschmaschinenanschluss zu installieren.

Das Schlafzimmer liegt auf der rechten hinteren Seite des Flurs und bietet mit über 15 m² mehr als genügend Platz.

Angeschlossen daran befindet sich vorne rechts die helle Küche. Mit guten 8 m² können auch mehrere Personen kulinarische Abenteuer gemeinsam bestreiten.

Die Fläche steht leer und kann daher frei geliefert werden.

Der Miteigentumsanteil der Wohnung beträgt 108/10.000 tel., die Garage kommt mit weiteren 10/10.000 tel. dazu.
Das Hausgeld lag im Jahr 2024 bei 3.354,86 € zzgl. Instandhaltungsrücklage i.H.v. 1.180,00 €, davon konnten 2.810,83 € umgelegt werden.
In der Rücklage befanden sich Stand 12/24 insgesamt 250.604,47 €, somit entfallen 2.834,06 € auf die Wohnung.

Die Gebäude und auch das Grundstück machen insgesamt einen sehr aufgeräumten und gepflegten Eindruck.
Die Zentralheizung stammt aus 2018 und wird mit Gas befeuert.

Haben wir Ihr Interesse geweckt? Rufen Sie mich an und vereinbaren Sie einen Besichtigungstermin.

Immobiliendetails

  • Nutzungsart
    Wohnen
  • Objektart
    Sonstige Wohnung
  • Hauptobjektart
    Wohnung
  • Vertragsart
    Kauf
  • Objektzustand
    Sanierungsbedürftig
  • Baujahr
    1974
  • Zimmer (gesamt)
    2
  • Anzahl Schlafzimmer
    1
  • Anzahl Badezimmer
    1
  • Anzahl Parkflächen
    1
  • Wohnfläche (ca.)
    61,76 m²
  • Grundstücksfläche (ca.)
    6.025 m²
  • Balkon
    1
  • Bad
    Bad mit Dusche und Badewanne
  • Etage
    3
  • Stellplatzart
    Tiefgarage
  • Tiefgaragenstellplätze
    1
  • Ausstattungskategorie
    Standard
  • Letzte Modernisierung
    2018
  • Verfügbarkeit
    ab sofort
  • Anbieter-Objektnummer
    BB202602

Preise & Kosten

  • Heizkosten
    72,02 €
  • Hausgeld pro Monat
    279,57 €
  • Courtage
    Die angegebene Käuferprovision (inkl. MwSt.) ist verdient und fällig mit Beurkundung des notariellen Kaufvertrages.

    3,57 % inklusive der gesetzlichen Mehrwertsteuer

Energie

  • Heizungsart
    Zentralheizung
  • Befeuerungsart
    Gas
  • Energieausweis
    Energiebedarfsausweis
  • Endenergiebedarf
    127,1 kWh/(m²*a)
  • Energiepass gültig bis
    12.12.2028
  • Energieeffizienzklasse
    D
  • Gebäudeart
    Wohngebäude
  • Wesentlicher Energieträger
    Gas
  • Ausgestellt
    nach dem 1.5.2014

Ausstattung

  • Keller
- Baujahr 1974
- 2-Zimmer
- ca. 61,76 m² Wohnfläche
- Balkon
- Gaszentralheizung aus 2018

Standort & Lage

Diese Immobilie befindet sich in ausgezeichneter Wohnlage Lübecks, die sowohl Ruhe als auch hervorragende Verkehrsanbindungen bietet.

Geschäfte des täglichen Bedarfs, Kitas, Schulen, Krankenhäuser etc. lassen sich bequem zu Fuß erreichen.

Die ...mehr lesen
Diese Immobilie befindet sich in ausgezeichneter Wohnlage Lübecks, die sowohl Ruhe als auch hervorragende Verkehrsanbindungen bietet.

Geschäfte des täglichen Bedarfs, Kitas, Schulen, Krankenhäuser etc. lassen sich bequem zu Fuß erreichen.

Die historische, charmante Altstadt mit ihren zahlreichen kulturellen Angeboten und den ausgezeichneten Einkaufsmöglichkeiten liegt keine 2 km vor Ihrer Haustür.

Hier genießen Sie das Beste aus beiden Welten: die Ruhe und Idylle eines Wohnorts in einer ruhigen Umgebung und die schnelle Erreichbarkeit aller wichtigen urbanen Annehmlichkeiten.

In nur 4 Minuten erreichen Sie die nächste Bushaltestelle.

Der nächste Bahnhof ist lediglich 3 Fahrminuten, der Hauptbahnhof 12 entfernt - ideale Bedingungen für Pendler.

Der Flughafen Lübeck ist in nur 14 Minuten erreichbar, was Reisen somit äußerst unkompliziert macht.

23562 Lübeck · Schleswig-Holstein · DEU

Die genaue Anschrift erfahren Sie vom Anbieter

Sonstiges

Sie planen selbst, eine Immobilie zu verkaufen und benötigen eine professionelle Marktwerteinschätzung? Sprechen Sie uns gerne an, wir helfen Ihnen unverbindlich weiter.

Sie benötigen Kontakt zu einem Energieberater / einer Energieberaterin oder einem ...mehr lesen
Sie planen selbst, eine Immobilie zu verkaufen und benötigen eine professionelle Marktwerteinschätzung? Sprechen Sie uns gerne an, wir helfen Ihnen unverbindlich weiter.

Sie benötigen Kontakt zu einem Energieberater / einer Energieberaterin oder einem Finanzierer / einer Finanziererin? Auch diesen Kontakt stellen wir Ihnen gerne her.

Ansprechpartner

Verbraucherhinweis

Widerrufsbelehrung des Anbieters

(Gilt nicht für Wohnraummiete in Deutschland)

Widerrufsrecht für Verbraucher
Sie haben das Recht, binnen vierzehn Tagen ohne Angabe von Gründen diesen Vertrag zu widerrufen. Die Widerrufsfrist beträgt vierzehn Tage ab dem Tag des Vertragsabschlusses.
Um Ihr Widerrufsrecht auszuüben, müssen Sie uns (HausHirsch GmbH, Dreischeibenhaus 1, 40211D Düsseldorf, +49 0 800 000 1244, +49 211 8825025, info@haushirsch.de) mittels einer eindeutigen Erklärung (z. B. ein mit der Post versandter Brief, Telefax oder E-Mail) über Ihren Entschluss, diesen Vertrag zu widerrufen, informieren. Sie können dafür das beigefügte Muster-Widerrufsformular verwenden, das jedoch nicht vorgeschrieben ist. Zur Wahrung der Widerrufsfrist reicht es aus, dass Sie die Mitteilung über die Ausübung des Widerrufsrechts vor Ablauf der Widerrufsfrist absenden.

Folgen des Widerrufs
Wenn Sie diesen Vertrag widerrufen, haben wir Ihnen alle Zahlungen, die wir von Ihnen erhalten haben, einschließlich der Lieferkosten (mit Ausnahme der zusätzlichen Kosten, die sich daraus ergeben, dass Sie eine andere Art der Lieferung als die von uns angebotene, günstigste Standardlieferung gewählt haben), unverzüglich und spätestens binnen vierzehn Tagen ab dem Tag zurückzuzahlen, an dem die Mitteilung über Ihren Widerruf dieses Vertrags bei uns eingegangen ist. Für diese Rückzahlung verwenden wir dasselbe Zahlungsmittel, das Sie bei der ursprünglichen Transaktion eingesetzt haben, es sei denn, mit Ihnen wurde ausdrücklich etwas anderes vereinbart; in keinem Fall werden Ihnen wegen dieser Rückzahlung Entgelte berechnet. Haben Sie verlangt, dass die Dienstleistungen während der Widerrufsfrist beginnen soll, so haben Sie uns einen angemessenen Betrag zu zahlen, der dem Anteil der bis zu dem Zeitpunkt, zu dem Sie uns von der Ausübung des Widerrufsrechts hinsichtlich dieses Vertrags unterrichten, bereits erbrachten Dienstleistungen im Vergleich zum Gesamtumfang der im Vertrag vorgesehenen Dienstleistungen entspricht.

Muster-Widerrufsformular
(Wenn Sie den Vertrag widerrufen wollen, dann füllen Sie dieses Formular aus und senden Sie es zurück.)

An HausHirsch GmbH, Dreischeibenhaus 1, 40211D Düsseldorf, +49 0 800 000 1244, +49 211 8825025, info@haushirsch.de

Hiermit widerrufe ich/wir den von mir/uns abgeschlossenen Vertrag über den Kauf der folgenden Waren /die Erbringung der folgenden Dienstleistung


Bestellt am /erhalten am

Name des/der Verbraucher(s)

Anschrift des/der Verbraucher(s)

Unterschrift des/der Verbraucher(s) (nur bei Mitteilung auf Papier)

Datum


( Unzutreffendes streichen )


Hinweis auf die Möglichkeit eines vorzeitigen Erlöschens des Widerrufsrechts

Ihr Widerrufsrecht erlischt, wenn wir unsere Leistung vollständig erbracht haben und mit der Ausführung der Leistung erst begonnen haben, nachdem Sie Ihre ausdrückliche Zustimmung gegeben haben und gleichzeitig Ihre Kenntnis davon bestätigt haben, dass Sie Ihr Widerrufsrecht bei vollständiger Vertragserfüllung durch uns verlieren.

Impressum HausHirsch GmbH
VERTRETUNGSBERECHTIGTE/R
Marius Wolf


Dreischeibenhaus 1
40211D Düsseldorf
DEU
Tel.: +49 0 800 000 1244
E-Mail: info@haushirsch.de
Fax: +49 211 8825025
Homepage: https://haushirsch.de

ZUSTÄNDIGE AUFSICHTSBEHÖRDE
Die Gewerbeanmeldung nach § 34 c GewO wurde durch Stadt Düsseldorf (www.duesseldorf.de) erteilt.

HANDELSREGISTER-EINTRAG
Amtsgericht Düsseldorf, HRB 99093


UST-ID-NUMMER
DE362155160
Anbieter kontaktieren

AGB, Datenschutz & Verbraucherhinweis wurden gelesen und akzeptiert.