Anbieter kontaktieren
Properstar SA
Casas do Bairro
- Mehr erfahren
bellevue.de-ID: 30618557
Gebäude zu kaufen in São Domingos de Benfica, Portugal
- Zinshaus/Renditeobjekt
- · 930 m² Wohnfläche
- · 5.800.000 € Kaufpreis
Objektbeschreibung
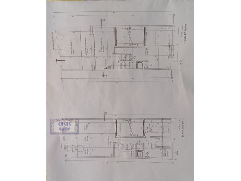
Zweifamilienhaustyp mit großen Flächen und 7 Stockwerken (einschließlich Etage 1 und Etage 0) wie folgt:
BODEN - 1 = 171 m² :
- Parkplätze für 4 Autos, 3 Plätze für 3 Fahrzeuge mit insgesamt 76,70 m² + 1 separater Platz mit 17 m²;
- Sie verfügt über ...mehr lesen
BODEN - 1 = 171 m² :
- Parkplätze für 4 Autos, 3 Plätze für 3 Fahrzeuge mit insgesamt 76,70 m² + 1 separater Platz mit 17 m²;
- Sie verfügt über ...mehr lesen
Zweifamilienhaustyp mit großen Flächen und 7 Stockwerken (einschließlich Etage 1 und Etage 0) wie folgt:
BODEN - 1 = 171 m² :
- Parkplätze für 4 Autos, 3 Plätze für 3 Fahrzeuge mit insgesamt 76,70 m² + 1 separater Platz mit 17 m²;
- Sie verfügt über eine soziale Toilette + Lagerraum + Flur;
- Es gibt 2 Wärmepumpen für Warmwasser in den Wohnungen;
- 'Aufzug + Treppen und Güteraufzug für Autos.
ETAGE 0 = 170 m² (davon sind 50 m² Garten):
-Es verfügt über eine Vorkammer (Vestibül);
- ' ein Wohnzimmer (Mehrzweck) und eine kleine Küche;
- '1 Soziale Toilette;
- 'Aufzug + Treppen + Güteraufzug für Autos;
- 50 m2' Terrasse/Garten.
STOCKWERK 1 und 2 Doppelhaus mit einer Fläche von 126 m² + 126 m² = 252 m²:
Im 1. Stock,
- 1 Wohnzimmer (35,60 m²);
- 1 Speisesaal (32,66 m²);
- Küche (11,25 m²) im offenen Raum;
- 1 soziale Toilette;
- Flur mit Aufzugszugang + Treppen und einem Balkon.
Im 2. Stock,
- Es verfügt über 3 Schlafzimmer (alle mit eigenem Bad), nämlich:
- Schlafzimmer 1 mit 15,40 m²/Schlafzimmer 2 mit 13,25 m² und Schlafzimmer 3 mit 13,25 m²;
-Korridor mit Aufzugszugang + Treppen;
- Er verfügt außerdem über einen Balkon
STOCKWERK 3 und 4 Doppelhaus mit einer Fläche von 126 m² + 126 m² = 252 m²:
-Alles ist wie in den Stockwerken 1 und 2
ETAGE 5 – Büro + Lagerung + WC = 85 m²
Diese Immobilie verfügt über hochwertige Oberflächen;
In allen Zimmern der Wohnungen gibt es eine Klimaanlage;
Der Boden besteht aus Holz und Stein, und der Strom ist komplett elektrisch;
Es gibt eine Vorinstallation für die Platzierung von Photovoltaikpaneelen an der Außenfassade;
Es verfügt über Treppen und Aufzug mit Zugang zu allen Stockwerken, einschließlich der Garage;
Ausgezeichnete Lage, nahe der Praça de Espanha, Gulbenkian, Corte Inglês und dem IPO
Hinweis: Wir haben die Exklusivität beim Verkauf dieser Immobilie.
Zweifamilienhaus im Zweifamilienhaus mit 7 Stockwerken (5. Stock) in der Nähe der Praça de Espanha, Gulbenkian, El Corte Inglés und Metro.
ETAGE -1 = 171 m²:
- Parkplätze für 4 Autos, mit 3 Stellplätzen für 3 Fahrzeuge zusammen 76,70 m² + 1 separater Platz von 17 m²;
- Beinhaltet ein Gästebad + Lagerraum + Flur;
- Beinhaltet 2 Wärmepumpen für Warmwasser in den Wohnungen;
- Aufzug + Treppen und Autoaufzug.
ETAGE 0 = 170 m² (einschließlich 50 m² Garten):
- Beinhaltet einen Vorraum (Vestibül);
- Ein Mehrzweckraum und eine kleine Küche;
- 1 Gästebad;
- Aufzug + Treppen + Autoaufzug;
- Terrasse/Garten mit 50 m².
ETAGE 1 und 2 Doppelhaus mit einer Fläche von 126 m² + 126 m² = 252 m²:
Im ersten Stock,
- 1 Wohnzimmer (35,60 m²);
- 1 Speisesaal (32,66 m²);
- Küche (11,25 m²) in einem offenen Raum;
- 1 Gästebad;
- Flur mit Zugang zum Aufzug + Treppen und einem Balkon.
Im 2. Stock,
- Es verfügt über 3 Schlafzimmer (alle mit eigenem Bad), nämlich,
- Schlafzimmer 1 mit 15,40 m²/Schlafzimmer 2 mit 13,25 m² und Schlafzimmer 3 mit 13,25 m²;
- Flur mit Zugang zum Aufzug + Treppen;
- Es hat sogar einen Balkon.
STOCKWERK 3 und 4 Doppelhaus mit einer Fläche von 126 m² + 126 m² = 252 m²:
-Alles ist wie in den Stockwerken 1 und 2
ETAGE 5 – Büro + Lagerung + WC = 85 m²
Diese Immobilie verfügt über hochwertige Oberflächen;
In allen Zimmern der Wohnungen gibt es eine Klimaanlage;
Der Boden besteht aus Holz und Stein, und die Energie ist komplett elektrisch;
Es gibt eine Vorinstallation für die Platzierung von Photovoltaikpaneelen an der Außenfassade;
Es verfügt über Treppen und einen Aufzug mit Zugang zu allen Stockwerken, einschließlich der Garage;
Ausgezeichnete Lage, in der Nähe der Praça de Espanha, Gulbenkian, El Corte Inglés und IPO
Hinweis: Wir haben exklusive Rechte zum Verkauf dieser Immobilie.
Energie-Bewertung: B
#ref:PRÉ_468
BODEN - 1 = 171 m² :
- Parkplätze für 4 Autos, 3 Plätze für 3 Fahrzeuge mit insgesamt 76,70 m² + 1 separater Platz mit 17 m²;
- Sie verfügt über eine soziale Toilette + Lagerraum + Flur;
- Es gibt 2 Wärmepumpen für Warmwasser in den Wohnungen;
- 'Aufzug + Treppen und Güteraufzug für Autos.
ETAGE 0 = 170 m² (davon sind 50 m² Garten):
-Es verfügt über eine Vorkammer (Vestibül);
- ' ein Wohnzimmer (Mehrzweck) und eine kleine Küche;
- '1 Soziale Toilette;
- 'Aufzug + Treppen + Güteraufzug für Autos;
- 50 m2' Terrasse/Garten.
STOCKWERK 1 und 2 Doppelhaus mit einer Fläche von 126 m² + 126 m² = 252 m²:
Im 1. Stock,
- 1 Wohnzimmer (35,60 m²);
- 1 Speisesaal (32,66 m²);
- Küche (11,25 m²) im offenen Raum;
- 1 soziale Toilette;
- Flur mit Aufzugszugang + Treppen und einem Balkon.
Im 2. Stock,
- Es verfügt über 3 Schlafzimmer (alle mit eigenem Bad), nämlich:
- Schlafzimmer 1 mit 15,40 m²/Schlafzimmer 2 mit 13,25 m² und Schlafzimmer 3 mit 13,25 m²;
-Korridor mit Aufzugszugang + Treppen;
- Er verfügt außerdem über einen Balkon
STOCKWERK 3 und 4 Doppelhaus mit einer Fläche von 126 m² + 126 m² = 252 m²:
-Alles ist wie in den Stockwerken 1 und 2
ETAGE 5 – Büro + Lagerung + WC = 85 m²
Diese Immobilie verfügt über hochwertige Oberflächen;
In allen Zimmern der Wohnungen gibt es eine Klimaanlage;
Der Boden besteht aus Holz und Stein, und der Strom ist komplett elektrisch;
Es gibt eine Vorinstallation für die Platzierung von Photovoltaikpaneelen an der Außenfassade;
Es verfügt über Treppen und Aufzug mit Zugang zu allen Stockwerken, einschließlich der Garage;
Ausgezeichnete Lage, nahe der Praça de Espanha, Gulbenkian, Corte Inglês und dem IPO
Hinweis: Wir haben die Exklusivität beim Verkauf dieser Immobilie.
Zweifamilienhaus im Zweifamilienhaus mit 7 Stockwerken (5. Stock) in der Nähe der Praça de Espanha, Gulbenkian, El Corte Inglés und Metro.
ETAGE -1 = 171 m²:
- Parkplätze für 4 Autos, mit 3 Stellplätzen für 3 Fahrzeuge zusammen 76,70 m² + 1 separater Platz von 17 m²;
- Beinhaltet ein Gästebad + Lagerraum + Flur;
- Beinhaltet 2 Wärmepumpen für Warmwasser in den Wohnungen;
- Aufzug + Treppen und Autoaufzug.
ETAGE 0 = 170 m² (einschließlich 50 m² Garten):
- Beinhaltet einen Vorraum (Vestibül);
- Ein Mehrzweckraum und eine kleine Küche;
- 1 Gästebad;
- Aufzug + Treppen + Autoaufzug;
- Terrasse/Garten mit 50 m².
ETAGE 1 und 2 Doppelhaus mit einer Fläche von 126 m² + 126 m² = 252 m²:
Im ersten Stock,
- 1 Wohnzimmer (35,60 m²);
- 1 Speisesaal (32,66 m²);
- Küche (11,25 m²) in einem offenen Raum;
- 1 Gästebad;
- Flur mit Zugang zum Aufzug + Treppen und einem Balkon.
Im 2. Stock,
- Es verfügt über 3 Schlafzimmer (alle mit eigenem Bad), nämlich,
- Schlafzimmer 1 mit 15,40 m²/Schlafzimmer 2 mit 13,25 m² und Schlafzimmer 3 mit 13,25 m²;
- Flur mit Zugang zum Aufzug + Treppen;
- Es hat sogar einen Balkon.
STOCKWERK 3 und 4 Doppelhaus mit einer Fläche von 126 m² + 126 m² = 252 m²:
-Alles ist wie in den Stockwerken 1 und 2
ETAGE 5 – Büro + Lagerung + WC = 85 m²
Diese Immobilie verfügt über hochwertige Oberflächen;
In allen Zimmern der Wohnungen gibt es eine Klimaanlage;
Der Boden besteht aus Holz und Stein, und die Energie ist komplett elektrisch;
Es gibt eine Vorinstallation für die Platzierung von Photovoltaikpaneelen an der Außenfassade;
Es verfügt über Treppen und einen Aufzug mit Zugang zu allen Stockwerken, einschließlich der Garage;
Ausgezeichnete Lage, in der Nähe der Praça de Espanha, Gulbenkian, El Corte Inglés und IPO
Hinweis: Wir haben exklusive Rechte zum Verkauf dieser Immobilie.
Energie-Bewertung: B
#ref:PRÉ_468
Immobiliendetails
-
NutzungsartAnlage
-
ObjektartWohnanlage
-
HauptobjektartZinshaus/Renditeobjekt
-
VertragsartKauf
-
Anzahl Parkflächen4
-
Wohnfläche (ca.)930 m²
-
Nutzfläche (ca.)930 m²
-
Anbieter-Objektnummer111982132
Preise & Kosten
-
CourtageKeine besondere Angabe.
Ausstattung
- Personenaufzug
- Klimanalage
Standort & Lage
Anbieter
Properstar SA
Firma Properstar SA
Rue Centrale 8
1003 Lausanne
1003 Lausanne