Angebot 4168 von 16397

Anbieter kontaktieren

AGB, Datenschutz & Verbraucherhinweis wurden gelesen und akzeptiert.

Reker Immobilien d.o.o.

Bild/Logo: Heiner Reker
Heiner Reker
22211 Vodice
  • Mehr erfahren
bellevue.de-ID: 30617245

2-Zimmer-Wohnung im 2. OG mit überdachtem Außenstellplatz und Garage

  • Wohnung
  • · 2 Zimmer
  • · 56 m² Wohnfläche
  • · 220.000 € Kaufpreis
Anbieter kontaktieren

Objektbeschreibung

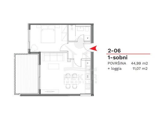
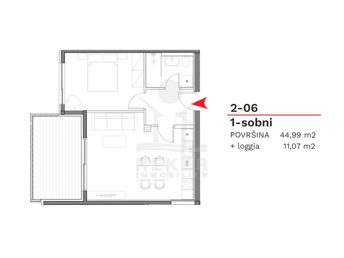
Diese 2-Zimmer-Wohnung im zweiten Obergeschoss bietet 44,99 m² Wohnfläche und klare Raumstruktur. Der Aufzug führt direkt von der Garage zur Wohnung und sorgt für höchsten Komfort. Der 11,07 m² große Balkon schafft einen hellen, privaten ...mehr lesen
Diese 2-Zimmer-Wohnung im zweiten Obergeschoss bietet 44,99 m² Wohnfläche und klare Raumstruktur. Der Aufzug führt direkt von der Garage zur Wohnung und sorgt für höchsten Komfort. Der 11,07 m² große Balkon schafft einen hellen, privaten Außenbereich.

Immobiliendetails

  • Nutzungsart
    Wohnen
  • Objektart
    Etagenwohnung
  • Hauptobjektart
    Wohnung
  • Vertragsart
    Kauf
  • Objektzustand
    Erstbezug
  • Baujahr
    2025
  • Zimmer (gesamt)
    2
  • Anzahl Schlafzimmer
    1
  • Anzahl Badezimmer
    1
  • Anzahl Parkflächen
    2
  • Wohnfläche (ca.)
    56,06 m²
  • Etage
    2
  • Freier Stellplatz
    2
  • Stellplatzart
    Garage, Freiplatz
  • Garagenstellplätze
    2
  • Anzahl Etagen
    1
  • Anbieter-Objektnummer
    9512

Preise & Kosten

  • Courtage
    3,75 % inklusive der gesetzlichen Mehrwertsteuer

Energie

  • Befeuerungsart
    Strom

Standort & Lage

Umag, ein charmantes Küstenstädtchen an der Westseite Istriens. Hier steht ein modernes Wohnhaus, nur etwa 700 Meter vom Meer entfernt. Eine Lage, die Ruhe und Nähe zum Leben vereint. In der Umgebung finden Sie alles, was den Alltag angenehm macht: ...mehr lesen
Umag, ein charmantes Küstenstädtchen an der Westseite Istriens. Hier steht ein modernes Wohnhaus, nur etwa 700 Meter vom Meer entfernt. Eine Lage, die Ruhe und Nähe zum Leben vereint. In der Umgebung finden Sie alles, was den Alltag angenehm macht: Geschäfte, Kindergarten, Schule, Krankenhaus sowie zahlreiche Sport- und Freizeitangebote, Restaurants und Cafés. Ob für den dauerhaften Aufenthalt oder den Urlaub – dieser Ort bietet ein angenehmes Umfeld zum Wohnen und Erholen.

Das Gebäude umfasst vier Eingänge mit insgesamt 122 Wohnungen. Die Architektur wirkt klar, die Bauweise hochwertig. Großzügige Balkone schaffen zusätzlichen Raum im Freien. Jeder Eingang ist mit einem Aufzug ausgestattet, der direkt vom Garagenbereich zu den Wohnungen führt. Eine Innentreppe ergänzt das Konzept. Ein Wohnhaus, das Funktionalität und Stil auf harmonische Weise verbindet.

52470 Umag · Umag · HRV

Die genaue Anschrift erfahren Sie vom Anbieter

Anbieter

Logo von Reker Immobilien d.o.o.
2026 Best Property Agents
Verbraucherhinweis

Widerrufsbelehrung des Anbieters

(Gilt nicht für Wohnraummiete in Deutschland)

Widerrufsrecht für Verbraucher
Sie haben das Recht, binnen vierzehn Tagen ohne Angabe von Gründen diesen Vertrag zu widerrufen. Die Widerrufsfrist beträgt vierzehn Tage ab dem Tag des Vertragsabschlusses.
Um Ihr Widerrufsrecht auszuüben, müssen Sie uns (Reker Immobilien d.o.o., Micin Stanka 28 A, 22211 Vodice, +49 5207 77227, +49 5207 923455, info@reker-immobilien.de) mittels einer eindeutigen Erklärung (z. B. ein mit der Post versandter Brief, Telefax oder E-Mail) über Ihren Entschluss, diesen Vertrag zu widerrufen, informieren. Sie können dafür das beigefügte Muster-Widerrufsformular verwenden, das jedoch nicht vorgeschrieben ist. Zur Wahrung der Widerrufsfrist reicht es aus, dass Sie die Mitteilung über die Ausübung des Widerrufsrechts vor Ablauf der Widerrufsfrist absenden.

Folgen des Widerrufs
Wenn Sie diesen Vertrag widerrufen, haben wir Ihnen alle Zahlungen, die wir von Ihnen erhalten haben, einschließlich der Lieferkosten (mit Ausnahme der zusätzlichen Kosten, die sich daraus ergeben, dass Sie eine andere Art der Lieferung als die von uns angebotene, günstigste Standardlieferung gewählt haben), unverzüglich und spätestens binnen vierzehn Tagen ab dem Tag zurückzuzahlen, an dem die Mitteilung über Ihren Widerruf dieses Vertrags bei uns eingegangen ist. Für diese Rückzahlung verwenden wir dasselbe Zahlungsmittel, das Sie bei der ursprünglichen Transaktion eingesetzt haben, es sei denn, mit Ihnen wurde ausdrücklich etwas anderes vereinbart; in keinem Fall werden Ihnen wegen dieser Rückzahlung Entgelte berechnet. Haben Sie verlangt, dass die Dienstleistungen während der Widerrufsfrist beginnen soll, so haben Sie uns einen angemessenen Betrag zu zahlen, der dem Anteil der bis zu dem Zeitpunkt, zu dem Sie uns von der Ausübung des Widerrufsrechts hinsichtlich dieses Vertrags unterrichten, bereits erbrachten Dienstleistungen im Vergleich zum Gesamtumfang der im Vertrag vorgesehenen Dienstleistungen entspricht.

Muster-Widerrufsformular
(Wenn Sie den Vertrag widerrufen wollen, dann füllen Sie dieses Formular aus und senden Sie es zurück.)

An Reker Immobilien d.o.o., Micin Stanka 28 A, 22211 Vodice, +49 5207 77227, +49 5207 923455, info@reker-immobilien.de

Hiermit widerrufe ich/wir den von mir/uns abgeschlossenen Vertrag über den Kauf der folgenden Waren /die Erbringung der folgenden Dienstleistung


Bestellt am /erhalten am

Name des/der Verbraucher(s)

Anschrift des/der Verbraucher(s)

Unterschrift des/der Verbraucher(s) (nur bei Mitteilung auf Papier)

Datum


( Unzutreffendes streichen )


Hinweis auf die Möglichkeit eines vorzeitigen Erlöschens des Widerrufsrechts

Ihr Widerrufsrecht erlischt, wenn wir unsere Leistung vollständig erbracht haben und mit der Ausführung der Leistung erst begonnen haben, nachdem Sie Ihre ausdrückliche Zustimmung gegeben haben und gleichzeitig Ihre Kenntnis davon bestätigt haben, dass Sie Ihr Widerrufsrecht bei vollständiger Vertragserfüllung durch uns verlieren.

Impressum Reker Immobilien d.o.o.
VERTRETUNGSBERECHTIGTE/R
Heiner Reker


Micin Stanka 28 A
22211 Vodice
HRV
Tel.: +49 5207 77227
E-Mail: info@reker-immobilien.de
Fax: +49 5207 923455
Homepage: https://www.reker-immobilien.de

ZUSTÄNDIGE AUFSICHTSBEHÖRDE
Handelsgericht in Zagreb

HANDELSREGISTER-EINTRAG
081239791
Kroatische Wirtschaftskammer

UST-ID-NUMMER
HR 83 76066 2355
Anbieter kontaktieren

AGB, Datenschutz & Verbraucherhinweis wurden gelesen und akzeptiert.