Angebot 4029 von 16261

Anbieter kontaktieren

AGB, Datenschutz & Verbraucherhinweis wurden gelesen und akzeptiert.

Properstar SA

BiancoNeve
  • Mehr erfahren
bellevue.de-ID: 30616929

Wohnung zu kaufen in Valtournenche, Italy

  • Wohnung
  • · 3 Zimmer
  • · 98 m² Wohnfläche
  • · 895.000 € Kaufpreis
Anbieter kontaktieren

Objektbeschreibung

Penthouse

Neue Wohnsiedlung in Valtournenche (Stadtzentrum) – "Les Deux Chalets"

Im "Cervino Skiparadies" in Valtournenche gibt es diese prächtige, noch zu errichtende Wohnung mit 98 m² Fläche.

"Les Deux Chalets" befindet sich im historischen Dorf ...mehr lesen
Penthouse

Neue Wohnsiedlung in Valtournenche (Stadtzentrum) – "Les Deux Chalets"

Im "Cervino Skiparadies" in Valtournenche gibt es diese prächtige, noch zu errichtende Wohnung mit 98 m² Fläche.

"Les Deux Chalets" befindet sich im historischen Dorf Valtournenche (1.524 Meter über dem Meeresspiegel), nahe Bars, Restaurants, Geschäften und nur 300 Meter vom Beginn der Skilifte Cime Bianche und des Skigebiets CERVINO SKI PARADISE (Breuil-Cervinia - Valtournenche - Chamois - Torgnon - Zermatt) mit über 350 km Pisten.

Das Chalet ist Teil eines Komplexes, der aus zwei miteinander verbundenen Chalets besteht.

* Chalet 1 besteht aus zwei Wohnungen
* Chalet 2 besteht aus vier Wohnungen
* Die Preise sind 10 % Mehrwertsteuer und 3 % Agenturprovision (ohne Mehrwertsteuer).

In Chalet 2 steht die Wohnung Kapitel 2.6 zum Verkauf, wie unten beschrieben

Alle Abschlusszahlungen werden gemäß italienischem Recht durch eine Anzahlung garantiert, um die Käufer zu schützen.

Das Projekt:
Das Wohnungsprojekt befindet sich zum Zeitpunkt des Schreibens (November 2023) noch in Entwicklung, was bedeutet, dass frühe Käufer die Möglichkeit haben, Änderungen am Grundriss vorzuschlagen. Wenn Sie spezifische Anforderungen oder eine persönliche Vision für das Layout haben, steht unser Architekt Ihnen zur Verfügung, um dabei zu arbeiten.

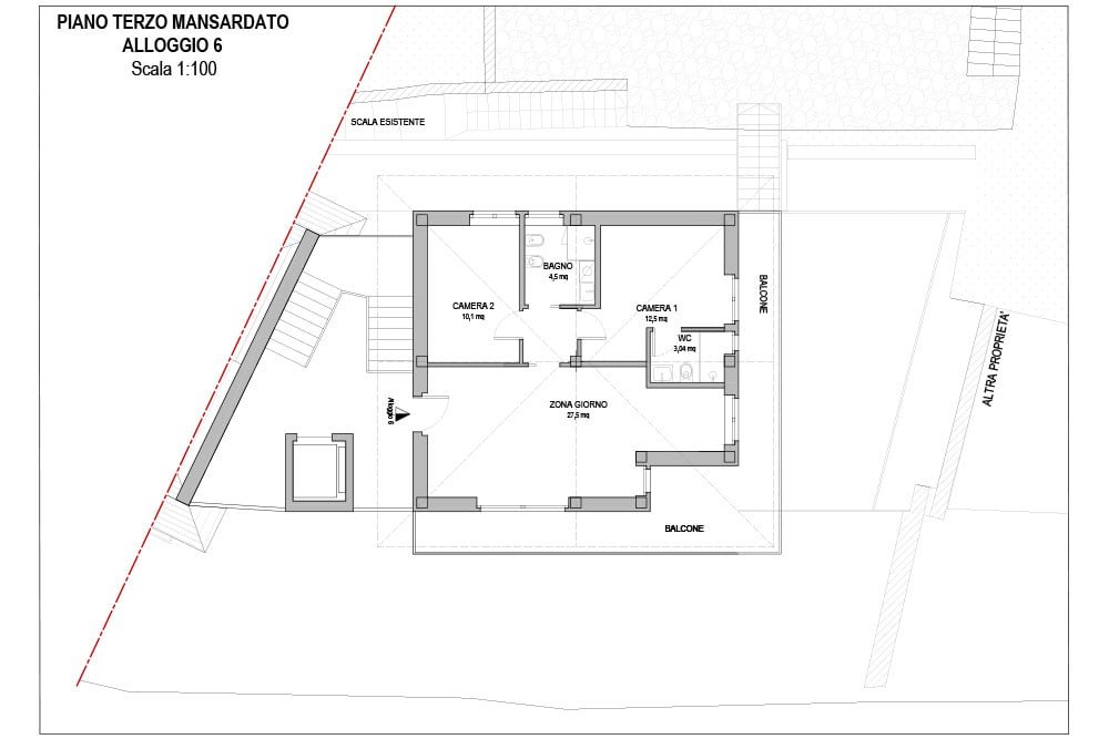
Wohnung CH2.6:
* Apartment CH2.6 befindet sich im Erdgeschoss (Piano Terra) (98 m²) und besteht aus: einem geräumigen Wohnzimmer, einer offenen Küche, 3 Schlafzimmern und 2 Badezimmern.
* Ein Balkon und eine Terrasse von 75 m²
* Auf Straßenniveau gibt es eine Garage, einen Lagerraum und einen unüberdachten Parkplatz.

Moderne Architektur, geschickt mit traditionellen Materialien verbunden
Innovative Bauweise entsteht durch sorgfältige Planung mit modernem Stil und die Verwendung prestigeträchtiger Materialien und Nischen, die dem Bau den Geschmack und die Wärme von Berghäusern verleihen.

Neue Anlagentechnologie, Wärmedämmung sowie handgefertigte Fenster und Türen bieten unseren Immobilien eine optimale Energieeffizienz für niedrige Betriebskosten und gleichzeitig den höchsten Wohnkomfort.

Tradition und Innovation für ein einladendes Zuhause
Durch die Verwendung natürlicher, umweltfreundlicher Materialien bringen wir den Geschmack und die Wärme der alpinen Tradition in Ihr Zuhause.

Eine sichere Immobilieninvestition, in einem zunehmend internationalen Umfeld und mit der Sicherheit einer garantierten Wertsteigerung über die Zeit – dies ist das richtige Haus am richtigen Ort für die ganze Familie.

Standort:
"Les Deux Chalets" befindet sich im historischen Dorf Valtournenche (1.524 Meter über dem Meeresspiegel) in der Nähe von Bars, Restaurants, Geschäften und nur 300 Meter vom Start der Skilifte Cime Bianche und des Skigebiets CERVINO SKI PARADISE https://www.cervinia.it/en (Breuil-Cervinia - Valtournenche - Chamois - Torgnon - Zermatt) mit über 350 km Pisten und einem der größten Skigebiete der Welt.

Planung:
Die Fertigstellung des Chalets ist für den Sommer 2025 geplant.

Immobiliendetails

  • Nutzungsart
    Wohnen
  • Objektart
    Apartment
  • Hauptobjektart
    Wohnung
  • Vertragsart
    Kauf
  • Baujahr
    2025
  • Zimmer (gesamt)
    3
  • Anzahl Schlafzimmer
    3
  • Anzahl Badezimmer
    2
  • Wohnfläche (ca.)
    98 m²
  • Nutzfläche (ca.)
    98 m²
  • Anbieter-Objektnummer
    94067992

Preise & Kosten

  • Courtage
    Keine besondere Angabe.

Standort & Lage

Localita' Evette · 11028 Valtournenche · ITA

Verbraucherhinweis

Widerrufsbelehrung des Anbieters

(Gilt nicht für Wohnraummiete in Deutschland)

Widerrufsrecht für Verbraucher
Sie haben das Recht, binnen vierzehn Tagen ohne Angabe von Gründen diesen Vertrag zu widerrufen. Die Widerrufsfrist beträgt vierzehn Tage ab dem Tag des Vertragsabschlusses.
Um Ihr Widerrufsrecht auszuüben, müssen Sie uns (ListGlobally SA, Rue Mercerie 12, 1003 Lausanne, +49 800 0010536, support@listglobally.com) mittels einer eindeutigen Erklärung (z. B. ein mit der Post versandter Brief, Telefax oder E-Mail) über Ihren Entschluss, diesen Vertrag zu widerrufen, informieren. Sie können dafür das beigefügte Muster-Widerrufsformular verwenden, das jedoch nicht vorgeschrieben ist. Zur Wahrung der Widerrufsfrist reicht es aus, dass Sie die Mitteilung über die Ausübung des Widerrufsrechts vor Ablauf der Widerrufsfrist absenden.

Folgen des Widerrufs
Wenn Sie diesen Vertrag widerrufen, haben wir Ihnen alle Zahlungen, die wir von Ihnen erhalten haben, einschließlich der Lieferkosten (mit Ausnahme der zusätzlichen Kosten, die sich daraus ergeben, dass Sie eine andere Art der Lieferung als die von uns angebotene, günstigste Standardlieferung gewählt haben), unverzüglich und spätestens binnen vierzehn Tagen ab dem Tag zurückzuzahlen, an dem die Mitteilung über Ihren Widerruf dieses Vertrags bei uns eingegangen ist. Für diese Rückzahlung verwenden wir dasselbe Zahlungsmittel, das Sie bei der ursprünglichen Transaktion eingesetzt haben, es sei denn, mit Ihnen wurde ausdrücklich etwas anderes vereinbart; in keinem Fall werden Ihnen wegen dieser Rückzahlung Entgelte berechnet. Haben Sie verlangt, dass die Dienstleistungen während der Widerrufsfrist beginnen soll, so haben Sie uns einen angemessenen Betrag zu zahlen, der dem Anteil der bis zu dem Zeitpunkt, zu dem Sie uns von der Ausübung des Widerrufsrechts hinsichtlich dieses Vertrags unterrichten, bereits erbrachten Dienstleistungen im Vergleich zum Gesamtumfang der im Vertrag vorgesehenen Dienstleistungen entspricht.

Muster-Widerrufsformular
(Wenn Sie den Vertrag widerrufen wollen, dann füllen Sie dieses Formular aus und senden Sie es zurück.)

An ListGlobally SA, Rue Mercerie 12, 1003 Lausanne, +49 800 0010536, support@listglobally.com

Hiermit widerrufe ich/wir den von mir/uns abgeschlossenen Vertrag über den Kauf der folgenden Waren /die Erbringung der folgenden Dienstleistung


Bestellt am /erhalten am

Name des/der Verbraucher(s)

Anschrift des/der Verbraucher(s)

Unterschrift des/der Verbraucher(s) (nur bei Mitteilung auf Papier)

Datum


( Unzutreffendes streichen )


Hinweis auf die Möglichkeit eines vorzeitigen Erlöschens des Widerrufsrechts

Ihr Widerrufsrecht erlischt, wenn wir unsere Leistung vollständig erbracht haben und mit der Ausführung der Leistung erst begonnen haben, nachdem Sie Ihre ausdrückliche Zustimmung gegeben haben und gleichzeitig Ihre Kenntnis davon bestätigt haben, dass Sie Ihr Widerrufsrecht bei vollständiger Vertragserfüllung durch uns verlieren.

Impressum ListGlobally SA
VERTRETUNGSBERECHTIGTE/R
Properstar SA


Rue Mercerie 12
1003 Lausanne
CHE
Tel.: +49 800 0010536
E-Mail: support@listglobally.com
Homepage: https://www.listglobally.com/
Anbieter kontaktieren

AGB, Datenschutz & Verbraucherhinweis wurden gelesen und akzeptiert.