Angebot 6884 von 16830

Anbieter kontaktieren

AGB, Datenschutz & Verbraucherhinweis wurden gelesen und akzeptiert.

Su Casita, S.L.

Monika Hannemann
03177 San Fulgencio (Alicante), Spanien
  • Mehr erfahren
bellevue.de-ID: 30609809

Freistehende Villa mit zwei separaten Wohnungen nur wenige Gehminuten vom Meer

  • Haus
  • · 7 Zimmer
  • · 251 m² Wohnfläche
  • · 2.130 m² Grundstücksfläche
  • · 895.000 € Kaufpreis
Anbieter kontaktieren

Objektbeschreibung

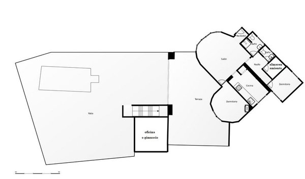
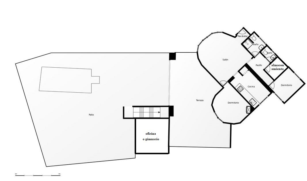
Dieses Haus erstreckt sich über zwei Etagen, die durch Außentreppen miteinander verbunden sind. Das Obergeschoss verfügt über ein geräumiges Wohnzimmer mit Kamin, ein Esszimmer mit Zugang zu einer angenehmen Terrasse mit Meerblick, eine voll ...mehr lesen
Dieses Haus erstreckt sich über zwei Etagen, die durch Außentreppen miteinander verbunden sind. Das Obergeschoss verfügt über ein geräumiges Wohnzimmer mit Kamin, ein Esszimmer mit Zugang zu einer angenehmen Terrasse mit Meerblick, eine voll ausgestattete Küche, zwei Doppelschlafzimmer und ein Badezimmer. Im Erdgeschoss befinden sich ein Wohnzimmer mit Essbereich, eine geräumige voll ausgestattete Küche, zwei Doppelschlafzimmer (eines davon mit Kamin), ein Badezimmer, eine separate Toilette und eine Waschküche mit Ausgang in den Garten.

Im Außenbereich bietet das Grundstück einen 8 x 4 Meter großen automatisierten Salzwasserpool mit Terrasse, einen Whirlpool, Aussendusche warm/kalt, eine Sommerküche mit einer 37m2 grossen überdachten Terrasse beim Pool, und mehrere gemütliche Sitz- und Ess-Ecken. Es gibt einen 20m2 grossen separaten klimatisierten Raum geeignet für ein Büro oder Fitnessraum. Der Garten ist grün und pflegeleicht angelegt, mit Obstbäumen und anderen Pflanzen, mit einer schönen Nachtbeleuchtung. Das Haus verfügt über einen Carport, Parkplatz für mehrere Fahrzeuge oder Wohnmobil und einen geräumigen Abstellraum.

Besonderheiten

Nur 700 Meter vom Meer entfernt
Südwestlage mit freiem Blick und zum Meer
Renoviert im Jahr 2022
Klimaanlage in allen Zimmern
Doppelverglasung, Fliegengitter und Rollläden
Glasfaser
Touristische Vermietungslizenz (die Erdgeschosswohnung wird derzeit als Ferienwohnung vermietet)
Großes, flaches Grundstück mit Garten, Obstbäumen und Sitzbereichen

Das Haus wurde ursprünglich 1977 erbaut, aber 2022 gründlich renoviert und mit modernen Annehmlichkeiten ausgestattet.

Immobiliendetails

  • Nutzungsart
    Wohnen
  • Objektart
    Villa
  • Hauptobjektart
    Haus
  • Vertragsart
    Kauf
  • Baujahr
    1977
  • Zimmer (gesamt)
    7
  • Anzahl Schlafzimmer
    4
  • Anzahl Badezimmer
    2
  • Wohnfläche (ca.)
    251 m²
  • Grundstücksfläche (ca.)
    2.130 m²
  • Anzahl Terrassen
    3
  • Freier Stellplatz
    1
  • Ausblick
    Meer
  • Anbieter-Objektnummer
    BENI-BE.H-936

Preise & Kosten

  • Courtage
    Unsere Angebote sind für Käufer provisionsfrei!

Energie

  • Energieausweis
    Energiebedarfsausweis
  • Energieeffizienzklasse
    D
  • Gebäudeart
    Wohngebäude
  • Ausgestellt
    nach dem 1.5.2014

Ausstattung

  • Kamin
  • Gäste-WC
  • Swimmingpool
  • Garten
  • Einliegerwohnung

Standort & Lage

In einer ruhigen Wohngegend, direkt an einem privaten Wald, mit grosser Ruhe und Frieden, und mit einer offenen Lage im Südwesten, befindet sich dieses freistehende Haus nur 700 Meter vom Mittelmeer und Buchten entfernt. Ideal zwischen Calpe und ...mehr lesen
In einer ruhigen Wohngegend, direkt an einem privaten Wald, mit grosser Ruhe und Frieden, und mit einer offenen Lage im Südwesten, befindet sich dieses freistehende Haus nur 700 Meter vom Mittelmeer und Buchten entfernt. Ideal zwischen Calpe und Moraira gelegen.

03720 Benissa · Valencia · ESP

Die genaue Anschrift erfahren Sie vom Anbieter

Anbieter

Logo von Su Casita, S.L.
2026 Best Property Agents

Ansprechpartner

Monika Hannemann

Calle Atenas, 59
03177 San Fulgencio (Alicante), Spanien
Verbraucherhinweis

Widerrufsbelehrung des Anbieters

Gilt nicht für Wohnraummiete in Deutschland

Widerrufsrecht für Verbraucher

Sie haben das Recht, binnen vierzehn Tagen ohne Angabe von Gründen diesen Vertrag zu widerrufen. Die Widerrufsfrist beträgt vierzehn Tage ab dem Tag des Vertragsabschlusses.

Um Ihr Widerrufsrecht auszuüben, müssen Sie uns (Su Casita S.L., C./ Bilbao, 42, Urb. La Marina, 03177 San Fulgencio (Alicante), Fax: 0034-966 790 016, Tel: 0034-966 790 012, kontakt@sucasita.eu) mittels einer eindeutigen Erklärung (z. B. ein mit der Post versandter Brief, Telefax oder E-Mail) über Ihren Entschluss, diesen Vertrag zu widerrufen, informieren. Sie können dafür das beigefügte Muster-Widerrufsformular verwenden, das jedoch nicht vorgeschrieben ist. Zur Wahrung der Widerrufsfrist reicht es aus, dass Sie die Mitteilung über die Ausübung des Widerrufsrechts vor Ablauf der Widerrufsfrist absenden.

Folgen des Widerrufs

Wenn Sie diesen Vertrag widerrufen, haben wir Ihnen alle Zahlungen, die wir von Ihnen erhalten haben, einschließlich der Lieferkosten (mit Ausnahme der zusätzlichen Kosten, die sich daraus ergeben, dass Sie eine andere Art der Lieferung als die von uns angebotene, günstigste Standardlieferung gewählt haben), unverzüglich und spätestens binnen vierzehn Tagen ab dem Tag zurückzuzahlen, an dem die Mitteilung über Ihren Widerruf dieses Vertrags bei uns eingegangen ist. Für diese Rückzahlung verwenden wir dasselbe Zahlungsmittel, das Sie bei der ursprünglichen Transaktion eingesetzt haben, es sei denn, mit Ihnen wurde ausdrücklich etwas anderes vereinbart; in keinem Fall werden Ihnen wegen dieser Rückzahlung Entgelte berechnet. Haben Sie verlangt, dass die Dienstleistungen während der Widerrufsfrist beginnen soll, so haben Sie uns einen angemessenen Betrag zu zahlen, der dem Anteil der bis zu dem Zeitpunkt, zu dem Sie uns von der Ausübung des Widerrufsrechts hinsichtlich dieses Vertrags unterrichten, bereits erbrachten Dienstleistungen im Vergleich zum Gesamtumfang der im Vertrag vorgesehenen Dienstleistungen entspricht.

Muster-Widerrufsformular

(Wenn Sie den Vertrag widerrufen wollen, dann füllen Sie dieses Formular aus und senden Sie es zurück.)

An Su Casita S.L., C./ Bilbao, 42, Urb. La Marina, 03177 San Fulgencio (Alicante), Fax: 0034-966 790 016, kontakt@sucasita.eu
Hiermit widerrufe(n) ich/wir (*) den von mir/uns (*) abgeschlossenen Vertrag über den Kauf der folgenden Waren (*)/die Erbringung der folgenden Dienstleistung (*)


- Bestellt am (*)/erhalten am (*)

- Name des/der Verbraucher(s)

- Anschrift des/der Verbraucher(s)

- Unterschrift des/der Verbraucher(s) (nur bei Mitteilung auf Papier)
- Datum


(*) Unzutreffendes streichen

Hinweis auf die Möglichkeit eines vorzeitigen Erlöschens des Widerrufsrechts

Ihr Widerrufsrecht erlischt, wenn wir unsere Leistung vollständig erbracht haben und mit der Ausführung der Leistung erst begonnen haben, nachdem Sie Ihre ausdrückliche Zustimmung gegeben haben und gleichzeitig Ihre Kenntnis davon bestätigt haben, dass Sie Ihr Widerrufsrecht bei vollständiger Vertragserfüllung durch uns verlieren.

Impressum Su Casita S.L.
VERTRETUNGSBERECHTIGTE/R
Jan Hannemann


C./ Bilbao, 42, Urb. La Marina 42
03177 San Fulgencio (Alicante)
ESP
Tel.: 0034-966 790 012
E-Mail: kontakt@sucasita.eu
Fax: 0034-966 790 016
Homepage: http://www.sucasita.eu

ZUSTÄNDIGE AUFSICHTSBEHÖRDE
Registro Mercantil de Alicante, Calle de Eusebio Sempere, 8, Alicante, Spanien

HANDELSREGISTER-EINTRAG
Registergericht: Registro Mercantil de Alicante, Tomo 1.939, Libro 0, Folio 187,


UST-ID-NUMMER
ES B53133054

ZUSÄTZLICHER TEXT
Verbraucherinformationen Online-Streitbeilegung gemäß Art. 14 Abs. 1 ODR-VO: Die Europäische Kommission stellt eine Plattform zur Online-Streitbeilegung (OS) bereit, die Sie hier finden: http://ec.europa.eu/consumers/odr
Anbieter kontaktieren

AGB, Datenschutz & Verbraucherhinweis wurden gelesen und akzeptiert.