Anbieter kontaktieren
Heese und Acar Immobilien GmbH
Acar
10585 Berlin
- Mehr erfahren
bellevue.de-ID: 30607407
Exklusive 3-Zimmer-Neubauwohnung im 4. Obergeschoss – direkt bezugsfertig verfügbar
- Wohnung
- · 3 Zimmer
- · 72 m² Wohnfläche
- · 529.495 € Kaufpreis
Objektbeschreibung
Diese hochwertig ausgestattete Etagenwohnung entsteht im Rahmen einer architektonisch anspruchsvollen Aufstockung auf einem gepflegten Altbau aus den 1930er Jahren. Der Bau des neuen 4. Obergeschosses begann 2023; der Erstbezug ist für das Frühjahr
...mehr lesen
Diese hochwertig ausgestattete Etagenwohnung entsteht im Rahmen einer architektonisch anspruchsvollen Aufstockung auf einem gepflegten Altbau aus den 1930er Jahren. Der Bau des neuen 4. Obergeschosses begann 2023; der Erstbezug ist für das Frühjahr 2025 vorgesehen.
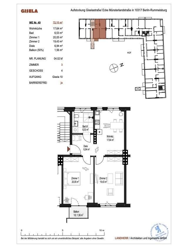
Die Wohnung verfügt über ca. 72,15 m² Wohnfläche und überzeugt mit einem großzügigen, offenen Wohnkonzept. Zwei Schlafzimmer, ein modernes Bad sowie ein lichtdurchfluteter Wohn-/Essbereich mit integrierter Küche bieten hohen Wohnkomfort. Bodentiefe Fenster und ein privater Balkon schaffen ein angenehmes Raumgefühl. Der Zugang erfolgt barrierefrei über einen außenliegenden Aufzug. Ein zugeordneter Kellerraum bietet zusätzlichen Stauraum.
Zur gehobenen Ausstattung gehören geöltes Eichenparkett, Fußbodenheizung, hochwertige Fliesen in den Sanitärräumen, Markenobjekte von Villeroy & Boch sowie Hansgrohe, dreifach verglaste Holzfenster mit erhöhter Schalldämmung und eine moderne Elektro- und Netzwerkinfrastruktur. Die Beheizung erfolgt über Fernwärme. Der Energiebedarf liegt bei 56,4 kWh/(m²*a), Effizienzklasse B.
Optional ist eine hochwertige Möblierung für 20.000 € erhältlich.
Für Kapitalanleger bietet sich eine attraktive Abschreibungsmöglichkeit mit 5 % AfA (5 % degressiv)
Wichtiger Hinweis: Die gezeigten Bilder zeigen beispielhaft bereits fertiggestellte Wohnungen. Eine Besichtigung vor Ort ist nach Absprache möglich. Wir freuen uns auf Ihre Anfrage.
Die Wohnung verfügt über ca. 72,15 m² Wohnfläche und überzeugt mit einem großzügigen, offenen Wohnkonzept. Zwei Schlafzimmer, ein modernes Bad sowie ein lichtdurchfluteter Wohn-/Essbereich mit integrierter Küche bieten hohen Wohnkomfort. Bodentiefe Fenster und ein privater Balkon schaffen ein angenehmes Raumgefühl. Der Zugang erfolgt barrierefrei über einen außenliegenden Aufzug. Ein zugeordneter Kellerraum bietet zusätzlichen Stauraum.
Zur gehobenen Ausstattung gehören geöltes Eichenparkett, Fußbodenheizung, hochwertige Fliesen in den Sanitärräumen, Markenobjekte von Villeroy & Boch sowie Hansgrohe, dreifach verglaste Holzfenster mit erhöhter Schalldämmung und eine moderne Elektro- und Netzwerkinfrastruktur. Die Beheizung erfolgt über Fernwärme. Der Energiebedarf liegt bei 56,4 kWh/(m²*a), Effizienzklasse B.
Optional ist eine hochwertige Möblierung für 20.000 € erhältlich.
Für Kapitalanleger bietet sich eine attraktive Abschreibungsmöglichkeit mit 5 % AfA (5 % degressiv)
Wichtiger Hinweis: Die gezeigten Bilder zeigen beispielhaft bereits fertiggestellte Wohnungen. Eine Besichtigung vor Ort ist nach Absprache möglich. Wir freuen uns auf Ihre Anfrage.
Immobiliendetails
-
NutzungsartWohnen
-
ObjektartDachgeschosswohnung
-
HauptobjektartWohnung
-
VertragsartKauf
-
ObjektzustandErstbezug
-
Baujahr2025
-
Zimmer (gesamt)3
-
Anzahl Schlafzimmer2
-
Anzahl Badezimmer1
-
Wohnfläche (ca.)72,15 m²
-
Balkon1
-
BadDuschbad, Bad mit Fenster
-
Etage4
-
Anzahl Etagen5
-
AusstattungskategorieGehoben
-
FußbodenParkett, Fliesen
-
Als Ferienobjekt nutzbar
-
Anbieter-Objektnummer2025070602
Preise & Kosten
-
Hausgeld pro Monat254,86 €
-
Courtage1,785 % vom Kaufpreis inkl. 19 % gesetzlicher MwSt., zahlbar vom Käufer. Die Provision ist fällig und verdient mit Beurkundung des Kaufvertrages. Wir haben einen provisionspflichtigen Maklervertrag mit dem Verkäufer in gleicher Höhe abgeschlossen.
1,79 % inklusive der gesetzlichen Mehrwertsteuer
Energie
-
HeizungsartFussbodenheizung
-
BefeuerungsartFernwärme
-
EnergieausweisEnergiebedarfsausweis
-
Endenergiebedarf56,4 kWh/(m²*a)
-
Energiepass gültig bis19.06.2034
-
EnergieeffizienzklasseB
-
GebäudeartWohngebäude
-
Wesentlicher EnergieträgerFernwärme
-
Ausgestelltnach dem 1.5.2014
Ausstattung
- Barrierefrei
- Keller
+Erstbezug nach Aufstockung, Baujahr 2023 - 2025
+Ca.72,15 m² Wohnfläche, 3 Zimmer
+Balkon mit Holzbelag auf Stahlkonstruktion
+Kellerabteil vorhanden
+Barrierefreier Zugang über außenliegenden Aufzug
+Fußbodenheizung mit Einzelraumregelung
+Fertigparkett ...mehr lesen
+Ca.72,15 m² Wohnfläche, 3 Zimmer
+Balkon mit Holzbelag auf Stahlkonstruktion
+Kellerabteil vorhanden
+Barrierefreier Zugang über außenliegenden Aufzug
+Fußbodenheizung mit Einzelraumregelung
+Fertigparkett ...mehr lesen
+Erstbezug nach Aufstockung, Baujahr 2023 - 2025
+Ca.72,15 m² Wohnfläche, 3 Zimmer
+Balkon mit Holzbelag auf Stahlkonstruktion
+Kellerabteil vorhanden
+Barrierefreier Zugang über außenliegenden Aufzug
+Fußbodenheizung mit Einzelraumregelung
+Fertigparkett „Schiffsboden Eiche“ (geölt) in Wohnräumen
+Hochwertige Fliesen (Villeroy & Boch, 45 × 45 cm, matt weiß) im Bad
+Glatt gespachtelte Wände mit Malervlies, weiß gestrichen
+Sanitärobjekte von Villeroy & Boch und Hansgrohe
+Elektrisch betriebener Handtuchheizkörper
+Mechanische Lüftung mit Feuchtesensor
+Fenster in weiß lackiertem Holz (IV80), 3-fach-Verglasung, Schallschutzklasse III
+Abschließbare Fensteroliven (Einbruchschutz RC2-nah)
+Balkontüren mit barrierefrei überfahrbarer Schwelle
+Wohnungseingangstür mit Schallschutzklasse II–III, RC2, 3-fach Verriegelung
+Innentüren HPL weiß, teilweise mit Lichtausschnitt
+Elektroinstallation mit Busch-Jäger „Future Linear“ (weiß matt)
+Multimediadosen für TV, Telefon und Internet, sternförmig verkabelt
+Balkon mit Steckdose (von innen schaltbar) und Licht
+Beheizung über Fernwärme
+Energieeffizienzklasse B (56,4 kWh/m²a), Bedarfsausweis gültig bis 06/2034
+Optional möbliert für 20.000 € Aufpreis
+8 % steuerliche AfA möglich (5 % degressiv, 3 % linear)
+Zugang zu den gemeinschaftlichen, begrünten Außenanlagen
+Ca.72,15 m² Wohnfläche, 3 Zimmer
+Balkon mit Holzbelag auf Stahlkonstruktion
+Kellerabteil vorhanden
+Barrierefreier Zugang über außenliegenden Aufzug
+Fußbodenheizung mit Einzelraumregelung
+Fertigparkett „Schiffsboden Eiche“ (geölt) in Wohnräumen
+Hochwertige Fliesen (Villeroy & Boch, 45 × 45 cm, matt weiß) im Bad
+Glatt gespachtelte Wände mit Malervlies, weiß gestrichen
+Sanitärobjekte von Villeroy & Boch und Hansgrohe
+Elektrisch betriebener Handtuchheizkörper
+Mechanische Lüftung mit Feuchtesensor
+Fenster in weiß lackiertem Holz (IV80), 3-fach-Verglasung, Schallschutzklasse III
+Abschließbare Fensteroliven (Einbruchschutz RC2-nah)
+Balkontüren mit barrierefrei überfahrbarer Schwelle
+Wohnungseingangstür mit Schallschutzklasse II–III, RC2, 3-fach Verriegelung
+Innentüren HPL weiß, teilweise mit Lichtausschnitt
+Elektroinstallation mit Busch-Jäger „Future Linear“ (weiß matt)
+Multimediadosen für TV, Telefon und Internet, sternförmig verkabelt
+Balkon mit Steckdose (von innen schaltbar) und Licht
+Beheizung über Fernwärme
+Energieeffizienzklasse B (56,4 kWh/m²a), Bedarfsausweis gültig bis 06/2034
+Optional möbliert für 20.000 € Aufpreis
+8 % steuerliche AfA möglich (5 % degressiv, 3 % linear)
+Zugang zu den gemeinschaftlichen, begrünten Außenanlagen
Standort & Lage
Die Wohnung befindet sich in gefragter, urbaner Lage im Berliner Stadtteil Rummelsburg, im Bezirk Lichtenberg – einem charmanten, aufstrebenden Quartier mit gewachsenem Charakter und guter Anbindung. Eingebettet in die gewachsene Blockrandstruktur
...mehr lesen
Die Wohnung befindet sich in gefragter, urbaner Lage im Berliner Stadtteil Rummelsburg, im Bezirk Lichtenberg – einem charmanten, aufstrebenden Quartier mit gewachsenem Charakter und guter Anbindung. Eingebettet in die gewachsene Blockrandstruktur rund um den Weitlingkiez, liegt das Objekt in einem ruhigen, dennoch zentral gelegenen Wohngebiet. Die Nachbarschaft ist geprägt von gepflegten Altbauten und zeitgenössischen Wohnanlagen.
Die Anbindung an den öffentlichen Nahverkehr ist ausgezeichnet: Der S- und Regionalbahnhof Berlin-Lichtenberg sowie der S-Bahnhof Nöldnerplatz sind in wenigen Minuten erreichbar und bieten schnelle Verbindungen in die Innenstadt, nach Friedrichshain, Prenzlauer Berg oder zum Alexanderplatz. Der Hauptbahnhof ist in etwa 2 Minuten mit dem Auto erreichbar, der Flughafen BER in ca. 31 Minuten.
In unmittelbarer Nähe befinden sich zahlreiche Einkaufsmöglichkeiten, Schulen, Kitas, Cafés, Ärzte und Restaurants – sowohl am Münsterlandplatz als auch entlang der Weitlingstraße. Auch Grünflächen wie der nahegelegene Rummelsburger See oder der Tierpark Berlin bieten hohe Freizeit- und Erholungsqualität.
Diese Lage vereint ruhiges Wohnen mit kurzen Wegen in die pulsierende Berliner Innenstadt – ideal für Menschen, die urbanes Leben mit Wohnqualität verbinden möchten.
Die Anbindung an den öffentlichen Nahverkehr ist ausgezeichnet: Der S- und Regionalbahnhof Berlin-Lichtenberg sowie der S-Bahnhof Nöldnerplatz sind in wenigen Minuten erreichbar und bieten schnelle Verbindungen in die Innenstadt, nach Friedrichshain, Prenzlauer Berg oder zum Alexanderplatz. Der Hauptbahnhof ist in etwa 2 Minuten mit dem Auto erreichbar, der Flughafen BER in ca. 31 Minuten.
In unmittelbarer Nähe befinden sich zahlreiche Einkaufsmöglichkeiten, Schulen, Kitas, Cafés, Ärzte und Restaurants – sowohl am Münsterlandplatz als auch entlang der Weitlingstraße. Auch Grünflächen wie der nahegelegene Rummelsburger See oder der Tierpark Berlin bieten hohe Freizeit- und Erholungsqualität.
Diese Lage vereint ruhiges Wohnen mit kurzen Wegen in die pulsierende Berliner Innenstadt – ideal für Menschen, die urbanes Leben mit Wohnqualität verbinden möchten.
Sonstiges
Datenschutz und Vertraulichkeit:
Wir bitten um Ihr Verständnis, dass wir Exposés nur an Interessenten versenden, die uns ihre vollständige Adresse sowie Telefonnummer mitteilen. Ihre Daten behandeln wir selbstverständlich vertraulich und geben sie ...mehr lesen
Wir bitten um Ihr Verständnis, dass wir Exposés nur an Interessenten versenden, die uns ihre vollständige Adresse sowie Telefonnummer mitteilen. Ihre Daten behandeln wir selbstverständlich vertraulich und geben sie ...mehr lesen
Datenschutz und Vertraulichkeit:
Wir bitten um Ihr Verständnis, dass wir Exposés nur an Interessenten versenden, die uns ihre vollständige Adresse sowie Telefonnummer mitteilen. Ihre Daten behandeln wir selbstverständlich vertraulich und geben sie nicht an Dritte weiter.
Zuverlässige Begleitung:
Von der vertraulichen Erstberatung bis zur Übergabe stehen wir Ihnen jederzeit zuverlässig und kompetent zur Seite. Ihre Zufriedenheit ist uns wichtig– erst wenn Sie am Ende zufrieden sind, sind wir es auch.
Kontaktmöglichkeiten:
Sie erreichen uns unter der E-Mail-Adresse info@heeseundacar.de oder direkt telefonisch unter +49 30 93917603. Weitere Informationen finden Sie auf unserer Website: www.heeseundacar.de.
Wichtige Hinweise:
Haftungsausschluss:
Bitte beachten Sie, dass die von uns bereitgestellten Objektinformationen, Unterlagen, Pläne usw. vom Verkäufer oder Vermieter stammen. Daher können wir keine Haftung für die Richtigkeit oder Vollständigkeit der Angaben übernehmen. Es liegt in der Verantwortung unserer Kunden, die Informationen auf ihre Richtigkeit zu überprüfen. Alle Immobilienangebote sind freibleibend und vorbehaltlich von Irrtümern, Zwischenverkäufen oder -vermietungen sowie sonstigen Zwischenverwertungen.
Geldwäschegesetz:
Als Immobilienmaklerunternehmen sind wir gemäß § 2 Abs. 1 Nr. 14 und § 11 Abs. 1, 2 des Geldwäschegesetzes (GwG) verpflichtet, die Identität des Vertragspartners bei der Begründung einer Geschäftsbeziehung festzustellen und zu überprüfen, sobald ein ernsthaftes Interesse am Immobilienkaufvertrag besteht. Hierfür müssen wir gemäß § 11 Abs. 4 GwG relevante Daten Ihres Personalausweises festhalten (sofern Sie als natürliche Person handeln), beispielsweise durch eine Kopie. Bei juristischen Personen benötigen wir eine Kopie des Handelsregisterauszugs, aus dem der wirtschaftlich Berechtigte hervorgeht. Das Geldwäschegesetz schreibt vor, dass der Makler diese Kopien und Unterlagen fünf Jahre lang aufbewahren muss. Als unser Vertragspartner haben Sie auch eine Mitwirkungspflicht gemäß § 11 Abs. 6 GwG.
Milieuschutz:
Die Liegenschaft befindet sich im Erhaltungsgebiet "Weitlingstraße".
Wir bitten um Ihr Verständnis, dass wir Exposés nur an Interessenten versenden, die uns ihre vollständige Adresse sowie Telefonnummer mitteilen. Ihre Daten behandeln wir selbstverständlich vertraulich und geben sie nicht an Dritte weiter.
Zuverlässige Begleitung:
Von der vertraulichen Erstberatung bis zur Übergabe stehen wir Ihnen jederzeit zuverlässig und kompetent zur Seite. Ihre Zufriedenheit ist uns wichtig– erst wenn Sie am Ende zufrieden sind, sind wir es auch.
Kontaktmöglichkeiten:
Sie erreichen uns unter der E-Mail-Adresse info@heeseundacar.de oder direkt telefonisch unter +49 30 93917603. Weitere Informationen finden Sie auf unserer Website: www.heeseundacar.de.
Wichtige Hinweise:
Haftungsausschluss:
Bitte beachten Sie, dass die von uns bereitgestellten Objektinformationen, Unterlagen, Pläne usw. vom Verkäufer oder Vermieter stammen. Daher können wir keine Haftung für die Richtigkeit oder Vollständigkeit der Angaben übernehmen. Es liegt in der Verantwortung unserer Kunden, die Informationen auf ihre Richtigkeit zu überprüfen. Alle Immobilienangebote sind freibleibend und vorbehaltlich von Irrtümern, Zwischenverkäufen oder -vermietungen sowie sonstigen Zwischenverwertungen.
Geldwäschegesetz:
Als Immobilienmaklerunternehmen sind wir gemäß § 2 Abs. 1 Nr. 14 und § 11 Abs. 1, 2 des Geldwäschegesetzes (GwG) verpflichtet, die Identität des Vertragspartners bei der Begründung einer Geschäftsbeziehung festzustellen und zu überprüfen, sobald ein ernsthaftes Interesse am Immobilienkaufvertrag besteht. Hierfür müssen wir gemäß § 11 Abs. 4 GwG relevante Daten Ihres Personalausweises festhalten (sofern Sie als natürliche Person handeln), beispielsweise durch eine Kopie. Bei juristischen Personen benötigen wir eine Kopie des Handelsregisterauszugs, aus dem der wirtschaftlich Berechtigte hervorgeht. Das Geldwäschegesetz schreibt vor, dass der Makler diese Kopien und Unterlagen fünf Jahre lang aufbewahren muss. Als unser Vertragspartner haben Sie auch eine Mitwirkungspflicht gemäß § 11 Abs. 6 GwG.
Milieuschutz:
Die Liegenschaft befindet sich im Erhaltungsgebiet "Weitlingstraße".
Anbieter
Heese und Acar Immobilien GmbH
Firma Heese und Acar Immobilien GmbH
Spielhagenstraße 7
10585 Berlin
10585 Berlin