Anbieter kontaktieren
DALEXIS ImmobilienService GmbH
Michael Kneissl
82031 Grünwald
- Mehr erfahren
bellevue.de-ID: 30578295
PREMIUMSEGMENT:Landhaus-Garten-Wohnung in Bayrischzell- Bergpanoramablick- Top-Ortsrandlage
- Wohnung
- · 3 Zimmer
- · 101 m² Wohnfläche
- · Preis auf Anfrage
Objektbeschreibung
WENDELSTEIN III
Exklusive Garten-Wohnung im Premiumsegment in Bayrischzell
- Beeindruckender Bergpanoramablick
- Beste Wohnlage am Ortsrand
Die neu entstehende Landhaus-Garten-Wohnung befindet sich in einem idyllischen Wohngebiet in äußerst ruhiger ...mehr lesen
Exklusive Garten-Wohnung im Premiumsegment in Bayrischzell
- Beeindruckender Bergpanoramablick
- Beste Wohnlage am Ortsrand
Die neu entstehende Landhaus-Garten-Wohnung befindet sich in einem idyllischen Wohngebiet in äußerst ruhiger ...mehr lesen
WENDELSTEIN III
Exklusive Garten-Wohnung im Premiumsegment in Bayrischzell
- Beeindruckender Bergpanoramablick
- Beste Wohnlage am Ortsrand
Die neu entstehende Landhaus-Garten-Wohnung befindet sich in einem idyllischen Wohngebiet in äußerst ruhiger Ortsrandlage oberhalb der malerischen Gemeinde am Wendelstein.
Sie leben in einem exklusiven Gartengeschoss mit einer umlaufenden Südwest-Terrasse
Die Garten-Wohnung bietet Ihnen über Bayrischzell hinweg einen beeindruckenden Bergpanoramablick.
Zur Verwirklichung Ihrer Wohnträume stehen Ihnen ein offener Wohn-, Ess- und Küchenbereich, ein Master-Schlafzimmer mit En-Suite Masterbad, sowie ein weiteres Schlafzimmer und ein separates Duschbad zur Verfügung.
Die Ausrichtung nach Süden verspricht Ihnen viele sonnige Stunden. Durch den Geländeverlauf der westlichen Bergkette erfreuen Sie sich über viel Sonne bis zum Abend.
Ein renommiertes Architekten-Team schuf ein wahres architektonisches, wie auch ökologisches Juwel.
Der Baustoff Holz steht für ein gesundes Wohn- und Raumklima. Ein modernes
Luft-Wärmepumpensystem mit Pufferspeicher samt Frischwasserstation und optionaler PV-Anlage bietet eine hohe Energieeffizienz und leistet somit einen Beitrag zum umweltbewussten Heizen.
Die bauliche Umsetzung erfolgt durch die Nr. 1 im ästhetischen und ökologischen Holzhausbau im Oberland.
Durch das wohldurchdachte bauliche Konzept, die exponierte Lage, sowie die hochwertige Ausstattung zählt dieses Projekt zum absoluten Premiumsegment.
Der bereits im Kaufpreis inkludierten Stellplatz im Carport rundet das Angebot gelungen ab. Für die E-Mobilität können auf Wunsch bereits Vorkehrungen getroffen werden.
Auf Grund der exponierten Lage bietet Ihnen diese Wohnung auf dem ruhigen Grundstück
beste Voraussetzungen zur Realisierung Ihrer privaten Wohlfühloase in schönster Natur.
Durch die direkte Anbindung an die Bayerische Regionalbahn erreichen Pendler die München-City in etwas über einer Stunde Fahrzeit.
Exklusive Garten-Wohnung im Premiumsegment in Bayrischzell
- Beeindruckender Bergpanoramablick
- Beste Wohnlage am Ortsrand
Die neu entstehende Landhaus-Garten-Wohnung befindet sich in einem idyllischen Wohngebiet in äußerst ruhiger Ortsrandlage oberhalb der malerischen Gemeinde am Wendelstein.
Sie leben in einem exklusiven Gartengeschoss mit einer umlaufenden Südwest-Terrasse
Die Garten-Wohnung bietet Ihnen über Bayrischzell hinweg einen beeindruckenden Bergpanoramablick.
Zur Verwirklichung Ihrer Wohnträume stehen Ihnen ein offener Wohn-, Ess- und Küchenbereich, ein Master-Schlafzimmer mit En-Suite Masterbad, sowie ein weiteres Schlafzimmer und ein separates Duschbad zur Verfügung.
Die Ausrichtung nach Süden verspricht Ihnen viele sonnige Stunden. Durch den Geländeverlauf der westlichen Bergkette erfreuen Sie sich über viel Sonne bis zum Abend.
Ein renommiertes Architekten-Team schuf ein wahres architektonisches, wie auch ökologisches Juwel.
Der Baustoff Holz steht für ein gesundes Wohn- und Raumklima. Ein modernes
Luft-Wärmepumpensystem mit Pufferspeicher samt Frischwasserstation und optionaler PV-Anlage bietet eine hohe Energieeffizienz und leistet somit einen Beitrag zum umweltbewussten Heizen.
Die bauliche Umsetzung erfolgt durch die Nr. 1 im ästhetischen und ökologischen Holzhausbau im Oberland.
Durch das wohldurchdachte bauliche Konzept, die exponierte Lage, sowie die hochwertige Ausstattung zählt dieses Projekt zum absoluten Premiumsegment.
Der bereits im Kaufpreis inkludierten Stellplatz im Carport rundet das Angebot gelungen ab. Für die E-Mobilität können auf Wunsch bereits Vorkehrungen getroffen werden.
Auf Grund der exponierten Lage bietet Ihnen diese Wohnung auf dem ruhigen Grundstück
beste Voraussetzungen zur Realisierung Ihrer privaten Wohlfühloase in schönster Natur.
Durch die direkte Anbindung an die Bayerische Regionalbahn erreichen Pendler die München-City in etwas über einer Stunde Fahrzeit.
Immobiliendetails
-
NutzungsartWohnen
-
ObjektartErdgeschosswohnung
-
HauptobjektartWohnung
-
VertragsartKauf
-
ObjektzustandProjektiert
-
Baujahr2024
-
Zimmer (gesamt)3
-
Anzahl Schlafzimmer2
-
Anzahl Badezimmer2
-
Anzahl Parkflächen1
-
Wohnfläche (ca.)101 m²
-
KücheEinbauküche (EBK), 1
-
Anzahl Etagen1
-
DachformSatteldach
-
BauweiseHolzhaus
-
Anbieter-Objektnummer7513
Preise & Kosten
-
CourtageDas Angebot ist provisionspflichtig. Mit Abschluss des notariellen Kaufvertrages werden je 1,79% inkl. 19% Umsatzsteuer fällig.
1,79 % inklusive der gesetzlichen Mehrwertsteuer
Energie
-
HeizungsartFussbodenheizung
-
BefeuerungsartSolar, Luft-/Wasserwärme
-
EnergieausweisEnergiebedarfsausweis
-
Endenergiebedarf15,4 kWh/(m²*a)
-
Baujahr (laut Energieausweis)2024
-
Energiepass gültig bis2034-03-01
-
EnergieeffizienzklasseA+
-
GebäudeartWohngebäude
-
Wesentlicher EnergieträgerLUFTWP
-
Ausgestelltnach dem 1.5.2014
Ausstattung
- Keller
WENDELSTEIN III
Exklusive Landhaus-Garten-Wohnung im Premiumsegment in Bayrischzell
- Beeindruckender Bergpanoramablick
- Beste Wohnlage
- Ausblick über Bayrischzell hinweg in die atemberaubende Bergwelt
- Ausführung als ökologisch hochwertiger ...mehr lesen
Exklusive Landhaus-Garten-Wohnung im Premiumsegment in Bayrischzell
- Beeindruckender Bergpanoramablick
- Beste Wohnlage
- Ausblick über Bayrischzell hinweg in die atemberaubende Bergwelt
- Ausführung als ökologisch hochwertiger ...mehr lesen
WENDELSTEIN III
Exklusive Landhaus-Garten-Wohnung im Premiumsegment in Bayrischzell
- Beeindruckender Bergpanoramablick
- Beste Wohnlage
- Ausblick über Bayrischzell hinweg in die atemberaubende Bergwelt
- Ausführung als ökologisch hochwertiger Holzrahmenbau
- Vollholzkern und Holzfaserdämmung
- Verwendung regionaler Materialien ohne Einsatz von Bauchemie
- Natürliche Perfektion und Nachhaltigkeit
- Große überdachte, umlaufende Südwest-Terrasse
- Abendsonne durch speziellen Verlauf der Bergkette im Westen
- Schlüsselfertiger Erwerb / Geplante Fertigstellung im Frühjahr 2026
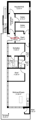
- Wohnfläche ca. 101 m² (inklusive 1/3 Terrassenfläche)
- 3 Zimmer / bis zu 2 Schlafzimmer möglich
- 2 Badezimmer
- Erstwohnsitzbindung ist obligatorisch
- Niedrigenergie- & KfW-Effizienzhaus / KfW 55
- Eigenes Kellerabteil / direkt von der Wohnung begehbar
Im Angebot ist bereits inkludiert:
- Maßgefertigter Garderobenschrank im Eingangsbereich
- Hochwertige Schreinereinbauküche mit Markengeräten / BORA Dunstabzug
- Busch-Jäger-Free@Home-Steuerung für Videosprechanlage, Raumtemperatur und Verschattung
- Designer-Einbaustrahler (Deckenspots) von Nobile im Rahmen des Lichtplanungskonzeptes
Das Gartengeschoss:
- Großer Wohnbereich / Deckenuntersicht mit Weißtanne verkleidet
- Masterbereich mit Schlaf- und En-Suite-Bad
- Ein weiteres Schlaf- bzw. Kinderzimmer
- Gäste-WC
- Umlaufender Balkon nach Süden und Westen
- Carport
Exklusive Landhaus-Garten-Wohnung im Premiumsegment in Bayrischzell
- Beeindruckender Bergpanoramablick
- Beste Wohnlage
- Ausblick über Bayrischzell hinweg in die atemberaubende Bergwelt
- Ausführung als ökologisch hochwertiger Holzrahmenbau
- Vollholzkern und Holzfaserdämmung
- Verwendung regionaler Materialien ohne Einsatz von Bauchemie
- Natürliche Perfektion und Nachhaltigkeit
- Große überdachte, umlaufende Südwest-Terrasse
- Abendsonne durch speziellen Verlauf der Bergkette im Westen
- Schlüsselfertiger Erwerb / Geplante Fertigstellung im Frühjahr 2026
- Wohnfläche ca. 101 m² (inklusive 1/3 Terrassenfläche)
- 3 Zimmer / bis zu 2 Schlafzimmer möglich
- 2 Badezimmer
- Erstwohnsitzbindung ist obligatorisch
- Niedrigenergie- & KfW-Effizienzhaus / KfW 55
- Eigenes Kellerabteil / direkt von der Wohnung begehbar
Im Angebot ist bereits inkludiert:
- Maßgefertigter Garderobenschrank im Eingangsbereich
- Hochwertige Schreinereinbauküche mit Markengeräten / BORA Dunstabzug
- Busch-Jäger-Free@Home-Steuerung für Videosprechanlage, Raumtemperatur und Verschattung
- Designer-Einbaustrahler (Deckenspots) von Nobile im Rahmen des Lichtplanungskonzeptes
Das Gartengeschoss:
- Großer Wohnbereich / Deckenuntersicht mit Weißtanne verkleidet
- Masterbereich mit Schlaf- und En-Suite-Bad
- Ein weiteres Schlaf- bzw. Kinderzimmer
- Gäste-WC
- Umlaufender Balkon nach Süden und Westen
- Carport
Standort & Lage
Leben in Bayrischzell am Wendelstein
Die von uns exklusiv angebotene Landhaus-Wohnung befindet sich in einer wunderschönen, ruhigen Wohngegend mit wunderbarem Bergblick über den Ort Bayrischzell hinweg.
Bayrischzell und sein Umland zählt zu den ...mehr lesen
Die von uns exklusiv angebotene Landhaus-Wohnung befindet sich in einer wunderschönen, ruhigen Wohngegend mit wunderbarem Bergblick über den Ort Bayrischzell hinweg.
Bayrischzell und sein Umland zählt zu den ...mehr lesen
Leben in Bayrischzell am Wendelstein
Die von uns exklusiv angebotene Landhaus-Wohnung befindet sich in einer wunderschönen, ruhigen Wohngegend mit wunderbarem Bergblick über den Ort Bayrischzell hinweg.
Bayrischzell und sein Umland zählt zu den schönsten Regionen in den bayerischen Alpen. Die umliegende Nachbarbebauung besteht aus repräsentativen Ein- und Zweifamilienhäusern.
Das Haus liegt verkehrsgünstig und die Einkaufsmöglichkeiten für den täglichen Bedarf sind fußläufig in wenigen Minuten erreichbar.
Durch die Lage am nahen Schliersee und in den Bergen ist der Freizeitwert für Sport- und Naturbegeisterte sowohl im Sommer, wie auch im Winter hervorragend. Mountain-Biker beginnen ihre Touren direkt vom Grundstück aus. Die benachbarten Skigebiete Spitzingsee und Sudelfeld sowie ein großes Loipennetz befinden sich in unmittelbarer Nähe. Im Sommer bieten Wanderwege unzählige Möglichkeiten für Wanderer und Radfahrer in allen Schweregraden.
Über die sehr gut ausgebaute Infrastruktur ist die Landeshauptstadt München auch mit dem
öffentlichen Nahverkehr (Bayerische Regionalbahn BRB) sehr gut erreichbar. Zur Münchner Innenstadt gelangt man per Auto in ca. einer Stunde über die nahegelegene Autobahn A8. Auch zum Münchener Messegelände und dem Flughafen ist die Verbindung über die A8 und die A99 sehr komfortabel.
In Summe eine optimale Wohn- & Verkehrslage, insbesondere für Familien mit Kindern, berufstätige Pendler, aber auch nach Ruhe suchenden Menschen.
Die von uns exklusiv angebotene Landhaus-Wohnung befindet sich in einer wunderschönen, ruhigen Wohngegend mit wunderbarem Bergblick über den Ort Bayrischzell hinweg.
Bayrischzell und sein Umland zählt zu den schönsten Regionen in den bayerischen Alpen. Die umliegende Nachbarbebauung besteht aus repräsentativen Ein- und Zweifamilienhäusern.
Das Haus liegt verkehrsgünstig und die Einkaufsmöglichkeiten für den täglichen Bedarf sind fußläufig in wenigen Minuten erreichbar.
Durch die Lage am nahen Schliersee und in den Bergen ist der Freizeitwert für Sport- und Naturbegeisterte sowohl im Sommer, wie auch im Winter hervorragend. Mountain-Biker beginnen ihre Touren direkt vom Grundstück aus. Die benachbarten Skigebiete Spitzingsee und Sudelfeld sowie ein großes Loipennetz befinden sich in unmittelbarer Nähe. Im Sommer bieten Wanderwege unzählige Möglichkeiten für Wanderer und Radfahrer in allen Schweregraden.
Über die sehr gut ausgebaute Infrastruktur ist die Landeshauptstadt München auch mit dem
öffentlichen Nahverkehr (Bayerische Regionalbahn BRB) sehr gut erreichbar. Zur Münchner Innenstadt gelangt man per Auto in ca. einer Stunde über die nahegelegene Autobahn A8. Auch zum Münchener Messegelände und dem Flughafen ist die Verbindung über die A8 und die A99 sehr komfortabel.
In Summe eine optimale Wohn- & Verkehrslage, insbesondere für Familien mit Kindern, berufstätige Pendler, aber auch nach Ruhe suchenden Menschen.
Anbieter
DALEXIS ImmobilienService GmbH
Herr Florian Bauer
Hirtenweg 6
82031 Grünwald
82031 Grünwald
Ansprechpartner
Michael Kneissl
Hirtenweg 6
82031 Grünwald
82031 Grünwald