Angebot 9090 von 17620

Anbieter kontaktieren

AGB, Datenschutz & Verbraucherhinweis wurden gelesen und akzeptiert.

HausHirsch GmbH

Melanie Sweetman
40211 Düsseldorf
  • Mehr erfahren
bellevue.de-ID: 30577787

Einmaliger Meerblick über die gesamte Ostküste - Traumgrundstück mit Projekt in bester Lage!

  • Grundstück
  • · 5 Zimmer
  • · 60.000 m² Grundstücksfläche
  • · 650.000 € Kaufpreis
Anbieter kontaktieren

Objektbeschreibung

Willkommen zu Ihrem Traumgrundstück an der malerischen Ostküste Mallorcas! Dieses einzigartige Grundstück bietet nicht nur einen atemberaubenden Meerblick über die gesamte Ostküste, sondern ist auch nur 5 Minuten von der renommierten Rafa Nadal ...mehr lesen
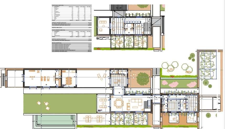
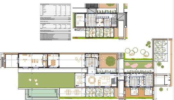
Willkommen zu Ihrem Traumgrundstück an der malerischen Ostküste Mallorcas! Dieses einzigartige Grundstück bietet nicht nur einen atemberaubenden Meerblick über die gesamte Ostküste, sondern ist auch nur 5 Minuten von der renommierten Rafa Nadal Academy entfernt. Die Lage dieses Grundstücks ist einfach unschlagbar - in nur 5 Minuten erreichen Sie die schönsten Strände im Osten der Insel. Tauchen Sie ein in das mediterrane Lebensgefühl und profitieren Sie von dieser exklusiven Lage für Ihr neues Bauvorhaben oder Investition. Es ist ein exklusives Architekten Projekt erstellt worden und der Antrag für eine Baugenehmigung ist eingereicht und man erwartet eine Baugenehmigung in 2027. Das Projekt beinhaltet 3 sehr geräumige Schlafzimmer mit Ankleiden und Bädern en suite und einem Büro, Fitnessraum und 2 weitere Gästebäder und mehrere Terrassen in alle Himmelsrichtungen, um die Sonne zu genießen. Ein Keller mit Tiefgarage für 2 Fahrzeuge ist auch vorgesehen sowie weitere Außenstellplätze. Ein Traum!

Immobiliendetails

  • Nutzungsart
    Wohnen
  • Objektart
    Wohngrundstück
  • Hauptobjektart
    Grundstück
  • Vertragsart
    Kauf
  • Zimmer (gesamt)
    5
  • Anzahl Schlafzimmer
    3
  • Wohnfläche (ca.)
    264 m²
  • Grundstücksfläche (ca.)
    60.000 m²
  • Nutzfläche (ca.)
    552,64 m²
  • Küche
    Einbauküche (EBK)
  • Balkon
    1
  • Bad
    Duschbad, Bad mit Dusche und Badewanne
  • Anzahl Loggien
    1
  • Anzahl Etagen
    2
  • Erschließung
    Nicht erschlossen
  • Anbieter-Objektnummer
    HM252479

Preise & Kosten

  • Kaufpreis pro m²
    10,83 €
  • Courtage
    Die Provision ist im Kaufpreis enthalten. Der Verkäufer trägt die Provisionskosten

Energie

  • Gebäudeart
    Wohngebäude

Ausstattung

  • Gäste-WC
  • Klimanalage
  • Swimmingpool
  • Garten
  • Keller
Die zukünftige Immobilie mit allen Annehmlichkeiten wie 3 Schlafzimmer, 5 Bäder sowie Fitnessraum, Büro und umliegende Terrassen und Balkone, steht auf diesem wunderschönen Grundstück mit leichter Hanglage. Diese lässt Ihren Blick über die gesamte ...mehr lesen
Die zukünftige Immobilie mit allen Annehmlichkeiten wie 3 Schlafzimmer, 5 Bäder sowie Fitnessraum, Büro und umliegende Terrassen und Balkone, steht auf diesem wunderschönen Grundstück mit leichter Hanglage. Diese lässt Ihren Blick über die gesamte Ostküste schweifen. Die atemberaubende Aussicht auf das Meer und die Umgebung versetzt Sie in Staunen. Hier, mitten in der Natur, umgeben von Idylle, fühlen Sie sich wie im Paradies.

Standort & Lage

Willkommen in dem charmanten Stadtteil Land in Manacor! Diese idyllische Gegend bietet eine perfekte Kombination aus Natur, Bergen und Meer und ist nur eine 5-minütige Fahrt von den traumhaften Stränden Cala Romantica und Cala Mendia entfernt. Zudem ...mehr lesen
Willkommen in dem charmanten Stadtteil Land in Manacor! Diese idyllische Gegend bietet eine perfekte Kombination aus Natur, Bergen und Meer und ist nur eine 5-minütige Fahrt von den traumhaften Stränden Cala Romantica und Cala Mendia entfernt. Zudem befindet sich die renommierte Rafa Nadal Academy ebenfalls nur 5 Minuten entfernt.

Für den täglichen Bedarf finden Sie Supermärkte, Ärzte und Apotheken in unmittelbarer Nähe. In Bezug auf Bildungseinrichtungen gibt es Kitas, Grundschulen, weiterführende Schulen in der Umgebung.

Der Flughafen ist in 35 Minuten zu erreichen.

07500 Manacor · Mallorca · Mallorca · ESP

Die genaue Anschrift erfahren Sie vom Anbieter

Ansprechpartner

Melanie Sweetman

Dreischeibenhaus 1
40211 Düsseldorf
Verbraucherhinweis

Widerrufsbelehrung des Anbieters

(Gilt nicht für Wohnraummiete in Deutschland)

Widerrufsrecht für Verbraucher
Sie haben das Recht, binnen vierzehn Tagen ohne Angabe von Gründen diesen Vertrag zu widerrufen. Die Widerrufsfrist beträgt vierzehn Tage ab dem Tag des Vertragsabschlusses.
Um Ihr Widerrufsrecht auszuüben, müssen Sie uns (HausHirsch GmbH, Dreischeibenhaus 1, 40211D Düsseldorf, +49 0 800 000 1244, +49 211 8825025, info@haushirsch.de) mittels einer eindeutigen Erklärung (z. B. ein mit der Post versandter Brief, Telefax oder E-Mail) über Ihren Entschluss, diesen Vertrag zu widerrufen, informieren. Sie können dafür das beigefügte Muster-Widerrufsformular verwenden, das jedoch nicht vorgeschrieben ist. Zur Wahrung der Widerrufsfrist reicht es aus, dass Sie die Mitteilung über die Ausübung des Widerrufsrechts vor Ablauf der Widerrufsfrist absenden.

Folgen des Widerrufs
Wenn Sie diesen Vertrag widerrufen, haben wir Ihnen alle Zahlungen, die wir von Ihnen erhalten haben, einschließlich der Lieferkosten (mit Ausnahme der zusätzlichen Kosten, die sich daraus ergeben, dass Sie eine andere Art der Lieferung als die von uns angebotene, günstigste Standardlieferung gewählt haben), unverzüglich und spätestens binnen vierzehn Tagen ab dem Tag zurückzuzahlen, an dem die Mitteilung über Ihren Widerruf dieses Vertrags bei uns eingegangen ist. Für diese Rückzahlung verwenden wir dasselbe Zahlungsmittel, das Sie bei der ursprünglichen Transaktion eingesetzt haben, es sei denn, mit Ihnen wurde ausdrücklich etwas anderes vereinbart; in keinem Fall werden Ihnen wegen dieser Rückzahlung Entgelte berechnet. Haben Sie verlangt, dass die Dienstleistungen während der Widerrufsfrist beginnen soll, so haben Sie uns einen angemessenen Betrag zu zahlen, der dem Anteil der bis zu dem Zeitpunkt, zu dem Sie uns von der Ausübung des Widerrufsrechts hinsichtlich dieses Vertrags unterrichten, bereits erbrachten Dienstleistungen im Vergleich zum Gesamtumfang der im Vertrag vorgesehenen Dienstleistungen entspricht.

Muster-Widerrufsformular
(Wenn Sie den Vertrag widerrufen wollen, dann füllen Sie dieses Formular aus und senden Sie es zurück.)

An HausHirsch GmbH, Dreischeibenhaus 1, 40211D Düsseldorf, +49 0 800 000 1244, +49 211 8825025, info@haushirsch.de

Hiermit widerrufe ich/wir den von mir/uns abgeschlossenen Vertrag über den Kauf der folgenden Waren /die Erbringung der folgenden Dienstleistung


Bestellt am /erhalten am

Name des/der Verbraucher(s)

Anschrift des/der Verbraucher(s)

Unterschrift des/der Verbraucher(s) (nur bei Mitteilung auf Papier)

Datum


( Unzutreffendes streichen )


Hinweis auf die Möglichkeit eines vorzeitigen Erlöschens des Widerrufsrechts

Ihr Widerrufsrecht erlischt, wenn wir unsere Leistung vollständig erbracht haben und mit der Ausführung der Leistung erst begonnen haben, nachdem Sie Ihre ausdrückliche Zustimmung gegeben haben und gleichzeitig Ihre Kenntnis davon bestätigt haben, dass Sie Ihr Widerrufsrecht bei vollständiger Vertragserfüllung durch uns verlieren.

Impressum HausHirsch GmbH
VERTRETUNGSBERECHTIGTE/R
Marius Wolf


Dreischeibenhaus 1
40211D Düsseldorf
DEU
Tel.: +49 0 800 000 1244
E-Mail: info@haushirsch.de
Fax: +49 211 8825025
Homepage: https://haushirsch.de

ZUSTÄNDIGE AUFSICHTSBEHÖRDE
Die Gewerbeanmeldung nach § 34 c GewO wurde durch Stadt Düsseldorf (www.duesseldorf.de) erteilt.

HANDELSREGISTER-EINTRAG
Amtsgericht Düsseldorf, HRB 99093


UST-ID-NUMMER
DE362155160
Anbieter kontaktieren

AGB, Datenschutz & Verbraucherhinweis wurden gelesen und akzeptiert.