Anbieter kontaktieren
Schmidbauer Immobilien Kreta
Oskar Josef Schmidbauer
84100 Niederaichbach
- Mehr erfahren
bellevue.de-ID: 30567305
MIT DROHNEN-VIDEO! Kreta, Drakona: Neubau-Projekt! Einfamilienhaus mit Pool zu verkaufen
- Haus
- · 3 Zimmer
- · 97 m² Wohnfläche
- · 255 m² Grundstücksfläche
- · 330.000 € Kaufpreis
Objektbeschreibung
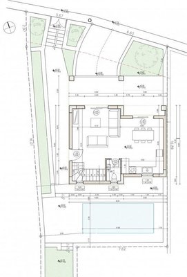
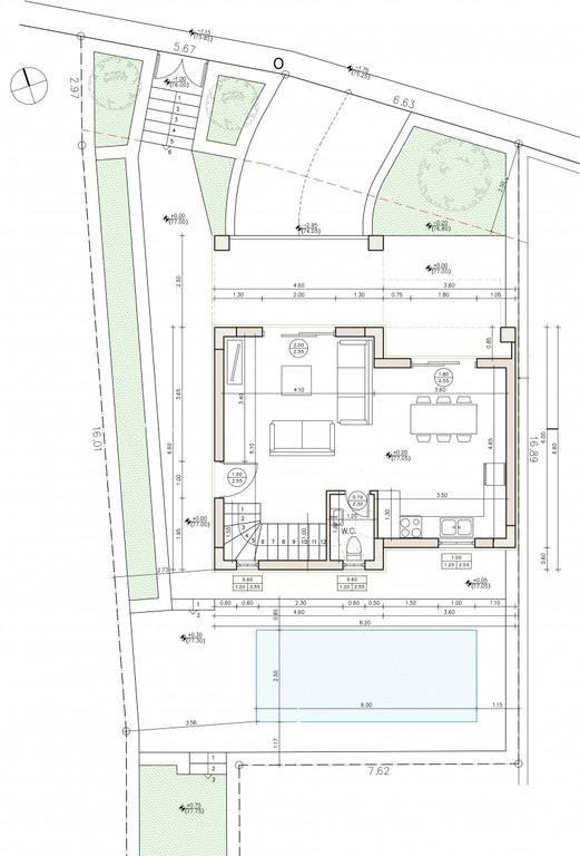
Kolymvari Drakona ZU VERKAUFEN Einfamilienhaus mit 97,44 m² auf einem Grundstück von 254,70 m².
Es besteht aus 3 Ebenen. Im erhöhten Erdgeschoss gibt es einen offenen Wohn-Küchenbereich und ein WC für die Bewohner und Besucher.
Die Innentreppe führt in ...mehr lesen
Es besteht aus 3 Ebenen. Im erhöhten Erdgeschoss gibt es einen offenen Wohn-Küchenbereich und ein WC für die Bewohner und Besucher.
Die Innentreppe führt in ...mehr lesen
Kolymvari Drakona ZU VERKAUFEN Einfamilienhaus mit 97,44 m² auf einem Grundstück von 254,70 m².
Es besteht aus 3 Ebenen. Im erhöhten Erdgeschoss gibt es einen offenen Wohn-Küchenbereich und ein WC für die Bewohner und Besucher.
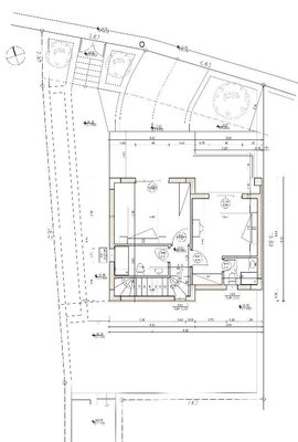
Die Innentreppe führt in die obere Etage, wo es ein Hauptschlafzimmer, ein Schlafzimmer, ein Badezimmer und einen Balkon mit herrlicher Aussicht auf die Weißen Berge, die Landschaft und das Meer geben wird.
Vom Erdgeschoss aus hat man Zugang zur großen überdachten Veranda von 33,28 m², zum 14 m² großen Pool und zum Garten. Im Souterrain gibt es einen Park- und Lagerbereich von 41,86 m².
Der Bau wird spätestens 12 Monate nach der Vereinbarung mit dem potenziellen Käufer abgeschlossen sein, da die Baugenehmigung bereits erteilt wurde.
Es wird der Energieeffizienzklasse A entsprechen, Aluminiumrahmen mit Fliegengittern und Doppelverglasung, geflieste Böden, Einbauschränke und einen 200-Liter-Warmwasserbereiter mit Solarpanelen haben.
Die Klimaanlage wird mit einer Split-Luft-Wärmepumpe in jedem Zimmer ausgestattet.
Das Anwesen ist 4,5 km vom Strand und 4 km von Kolymvari entfernt.
Das Einfamilienhaus befindet sich in einer ausgezeichneten natürlichen Umgebung und bietet Ausblicke auf die ausgedehnten Olivenhaine der Gegend und die Weißen Berge.
Da sich der Bau noch in der Planungsphase befindet, kann der zukünftige Käufer nach Absprache eigene Änderungen vornehmen.
Hier eine virtuelle Besichtigung:
https://panorama.homestyler.com/v2?m=np&id=oZhW4jH9te4qw5JASxo2m&locale=en_US
LINK ZUM VIDEO:
https://youtu.be/lXE9Y3du1zk
Es besteht aus 3 Ebenen. Im erhöhten Erdgeschoss gibt es einen offenen Wohn-Küchenbereich und ein WC für die Bewohner und Besucher.
Die Innentreppe führt in die obere Etage, wo es ein Hauptschlafzimmer, ein Schlafzimmer, ein Badezimmer und einen Balkon mit herrlicher Aussicht auf die Weißen Berge, die Landschaft und das Meer geben wird.
Vom Erdgeschoss aus hat man Zugang zur großen überdachten Veranda von 33,28 m², zum 14 m² großen Pool und zum Garten. Im Souterrain gibt es einen Park- und Lagerbereich von 41,86 m².
Der Bau wird spätestens 12 Monate nach der Vereinbarung mit dem potenziellen Käufer abgeschlossen sein, da die Baugenehmigung bereits erteilt wurde.
Es wird der Energieeffizienzklasse A entsprechen, Aluminiumrahmen mit Fliegengittern und Doppelverglasung, geflieste Böden, Einbauschränke und einen 200-Liter-Warmwasserbereiter mit Solarpanelen haben.
Die Klimaanlage wird mit einer Split-Luft-Wärmepumpe in jedem Zimmer ausgestattet.
Das Anwesen ist 4,5 km vom Strand und 4 km von Kolymvari entfernt.
Das Einfamilienhaus befindet sich in einer ausgezeichneten natürlichen Umgebung und bietet Ausblicke auf die ausgedehnten Olivenhaine der Gegend und die Weißen Berge.
Da sich der Bau noch in der Planungsphase befindet, kann der zukünftige Käufer nach Absprache eigene Änderungen vornehmen.
Hier eine virtuelle Besichtigung:
https://panorama.homestyler.com/v2?m=np&id=oZhW4jH9te4qw5JASxo2m&locale=en_US
LINK ZUM VIDEO:
https://youtu.be/lXE9Y3du1zk
Immobiliendetails
-
NutzungsartWohnen
-
HauptobjektartHaus
-
VertragsartKauf
-
ObjektzustandErstbezug
-
Zimmer (gesamt)3
-
Anzahl Schlafzimmer2
-
Anzahl Badezimmer2
-
Wohnfläche (ca.)97,44 m²
-
Grundstücksfläche (ca.)254,7 m²
-
KücheEinbauküche (EBK), 1
-
StellplatzartGarage
-
Anzahl Etagen2
-
AusblickFerne
-
FußbodenFliesen
-
Anbieter-ObjektnummerAP-2845h
Preise & Kosten
-
Courtage2,48 % inklusive der gesetzlichen Mehrwertsteuer
Energie
-
BefeuerungsartStrom
-
EnergieausweisEnergiebedarfsausweis
-
EnergieeffizienzklasseA
-
Ausgestelltohne / nicht vorhanden
Ausstattung
- Gäste-WC
- Klimanalage
- Swimmingpool
- Garten
- Außenwände mit einer Dicke von 25 cm und wärmeisolierte Innenwand mit einer Dicke von 12 cm
- Der Innen- und Außenputz besteht aus drei Schichten: Die erste Schicht besteht aus Zementmörtel, die zweite besteht aus Zementmörtel mit Kalziumzusatz und ...mehr lesen
- Der Innen- und Außenputz besteht aus drei Schichten: Die erste Schicht besteht aus Zementmörtel, die zweite besteht aus Zementmörtel mit Kalziumzusatz und ...mehr lesen
- Außenwände mit einer Dicke von 25 cm und wärmeisolierte Innenwand mit einer Dicke von 12 cm
- Der Innen- und Außenputz besteht aus drei Schichten: Die erste Schicht besteht aus Zementmörtel, die zweite besteht aus Zementmörtel mit Kalziumzusatz und die dritte feine Schicht wird mit Kalkmörtel eingerieben, um eine glatte und haltbare Oberfläche zu gewährleisten.
- Innen: Für alle Innenwände werden drei Schichten Kunststofffarbe verwendet. Außen: Alle Außenflächen werden mit drei Schichten wasserfester Acrylfarbe gestrichen.
- Die Böden sind gefliest, was bereits im Baupreis enthalten ist
- Fenster und Außentüren sind aus weißem PVC, alle Innentüren aus Laminat. Doppelt verglaste Fenster, Klimaschutzrollläden und Moskitonetze. Der Hauseingang verfügt über eine Sicherheitstür. Alle Innentüren sind massive MDF-Türen. Die Farbe kann der Kunde frei wählen.
- Bäder und Toiletten werden gefliest. Die Badezimmerwände werden bis zu einer Höhe von 2,20 m gefliest - mit bodengleicher Dusche.
- Sanitärinstallationen nach europäischem Standard mit zentraler Wasserverteilung
- Warmwasserversorgung über Solar und 200 Liter Boiler
- Elektroinstallationen nach europäischen Elektronormen. Anschluss für Herd, Waschmaschine, Kühlschrank. Vorinstallation für Telefon, Internet und Satellitenanschluss
- Die Klimatisierung erfolgt über ein Split-System, Luft-Wärmepumpe in jedem Raum. (Wohnraum und Schlafzimmer)
- Einbauküche mit Edelstahlspüle ohne Elektrogeräte. Raumhohe Schlafzimmerschränke
- Der Innen- und Außenputz besteht aus drei Schichten: Die erste Schicht besteht aus Zementmörtel, die zweite besteht aus Zementmörtel mit Kalziumzusatz und die dritte feine Schicht wird mit Kalkmörtel eingerieben, um eine glatte und haltbare Oberfläche zu gewährleisten.
- Innen: Für alle Innenwände werden drei Schichten Kunststofffarbe verwendet. Außen: Alle Außenflächen werden mit drei Schichten wasserfester Acrylfarbe gestrichen.
- Die Böden sind gefliest, was bereits im Baupreis enthalten ist
- Fenster und Außentüren sind aus weißem PVC, alle Innentüren aus Laminat. Doppelt verglaste Fenster, Klimaschutzrollläden und Moskitonetze. Der Hauseingang verfügt über eine Sicherheitstür. Alle Innentüren sind massive MDF-Türen. Die Farbe kann der Kunde frei wählen.
- Bäder und Toiletten werden gefliest. Die Badezimmerwände werden bis zu einer Höhe von 2,20 m gefliest - mit bodengleicher Dusche.
- Sanitärinstallationen nach europäischem Standard mit zentraler Wasserverteilung
- Warmwasserversorgung über Solar und 200 Liter Boiler
- Elektroinstallationen nach europäischen Elektronormen. Anschluss für Herd, Waschmaschine, Kühlschrank. Vorinstallation für Telefon, Internet und Satellitenanschluss
- Die Klimatisierung erfolgt über ein Split-System, Luft-Wärmepumpe in jedem Raum. (Wohnraum und Schlafzimmer)
- Einbauküche mit Edelstahlspüle ohne Elektrogeräte. Raumhohe Schlafzimmerschränke
Standort & Lage
Drakona ist ein ruhiges, traditionelles Dorf in der Provinz Kissamos. Es liegt 27 km westlich von Chania auf einer Höhe von 70 m. Die Dorfbewohner sind hauptsächlich in der Landwirtschaft tätig und ihre Produkte sind Öl, Trauben, Wein und
...mehr lesen
Drakona ist ein ruhiges, traditionelles Dorf in der Provinz Kissamos. Es liegt 27 km westlich von Chania auf einer Höhe von 70 m. Die Dorfbewohner sind hauptsächlich in der Landwirtschaft tätig und ihre Produkte sind Öl, Trauben, Wein und Zitrusfrüchte. Das Gebiet hat ein ausgezeichnetes Mikroklima, da die Temperatur das ganze Jahr über hoch ist (15-30 Grad). Die Luftfeuchtigkeit ist aufgrund der geringen Höhe des Gebiets niedrig und in Kombination mit der absoluten Ruhe der natürlichen Umgebung ist dieses Dorf das ganze Jahr über ein ausgezeichneter Wohnort. Außerdem befindet sich 3 km vom Dorf Drakona entfernt die Kreuzung der BOAK (der Nationalstraße), die die Möglichkeit eines sofortigen und schnellen Zugangs zur gesamten Präfektur Chania, zum Flughafen, zum Hafen und ganz Kreta bietet. Das nächste Dorf von Drakona (1.000 Meter) ist Spilia, das eine Taverne, eine Apotheke und einen Supermarkt hat. In einer Entfernung von 8 km befindet sich eine Schlucht von außergewöhnlicher natürlicher Schönheit, die Deliana-Schlucht. Ein Spaziergang durch die Schlucht ist auch für kleine Kinder zu empfehlen, da er über eine unbefestigte Straße führt und nur eine Stunde dauert. Die Schlucht zeichnet sich durch dichte Vegetation mit Platanen und Kastanien aus. Die beste Jahreszeit für einen Besuch ist der Frühling, wenn die Vegetation ihren Höhepunkt erreicht und der Fluss noch fließt.
Sonstiges
Wir sind deutsche Immobilienmakler und haben uns spezialisiert auf Immobilien aus Kreta. Neben der Suche nach geeigneten Immobilien auf Kreta für Sie, gehört auch das Organisieren von Besichtigungsterminen auf Kreta zu unserem Portfolio.
Zu jeder ...mehr lesen
Zu jeder ...mehr lesen
Wir sind deutsche Immobilienmakler und haben uns spezialisiert auf Immobilien aus Kreta. Neben der Suche nach geeigneten Immobilien auf Kreta für Sie, gehört auch das Organisieren von Besichtigungsterminen auf Kreta zu unserem Portfolio.
Zu jeder Phase Ihres Immobilienerwerbs auf Kreta stehen wir Ihnen zur Seite und begleiten Sie vom ersten Gespräch bis über den Notarvertrag hinaus.
Uns sind Ihre Vorstellungen wichtig, wie zum Beispiel die Lage auf Kreta in Verbindung mit Meerblick, Strandnähe, Sandstrand, Steinhaus oder Swimmingpool. Zusätzlich gibt es wichtige Punkte zu beachten wie die Maße der Zimmer einer Immobilie. In Griechenland und somit auch auf Kreta werden die Wände miteingerechnet, also Außenwand zur Außenwand. Im Gegensatz zu deutschen Immobilien, hier wird von Innenwand zur Innenwand gemessen.
Wir empfehlen Ihnen unbedingt bei der Besichtigung auf Kreta die angegebene Wohnfläche zu überprüfen, da diese stark von deutschen Angaben abweichen kann (Berechnungs-, Wohnflächenverordnung, DIN-Normen) und Nutzflächen eventuell miteingerechnet wurden (Keller, Technikraum, Balkon, Terrasse etc.).
Bitte beachten Sie auch bei Standortangaben zu Immobilienangeboten auf Kreta, dass dies ungefähre Werte sind.
Der griechische Energieausweis (falls erforderlich) liegt bei der Besichtigung vor.
Zum angegebenen Kaufpreis kommen noch Nebenkosten wie Provision, Grunderwerbsteuer, Notargebühren und Anwaltskosten hinzu. Genaueres finden Sie auf unserer Homepage bei INFOS.
Alle über unser Portal angebotenen Immobilien aus Kreta wurden sorgfältig geprüft und übersetzt. Dennoch können sich Fehler einschleichen, so dass wir keine Gewähr auf Richtigkeit der Angaben übernehmen.
Für alle Fragen rund um das Thema - Kauf einer Immobilie oder Grundstück auf Kreta - stehen wir Ihnen gerne zur Verfügung und können weitere Details im Gespräch klären.
Es gelten unsere AGB, die Sie auf unserer Homepage bei AGB und Widerrufsrecht finden.
Zu jeder Phase Ihres Immobilienerwerbs auf Kreta stehen wir Ihnen zur Seite und begleiten Sie vom ersten Gespräch bis über den Notarvertrag hinaus.
Uns sind Ihre Vorstellungen wichtig, wie zum Beispiel die Lage auf Kreta in Verbindung mit Meerblick, Strandnähe, Sandstrand, Steinhaus oder Swimmingpool. Zusätzlich gibt es wichtige Punkte zu beachten wie die Maße der Zimmer einer Immobilie. In Griechenland und somit auch auf Kreta werden die Wände miteingerechnet, also Außenwand zur Außenwand. Im Gegensatz zu deutschen Immobilien, hier wird von Innenwand zur Innenwand gemessen.
Wir empfehlen Ihnen unbedingt bei der Besichtigung auf Kreta die angegebene Wohnfläche zu überprüfen, da diese stark von deutschen Angaben abweichen kann (Berechnungs-, Wohnflächenverordnung, DIN-Normen) und Nutzflächen eventuell miteingerechnet wurden (Keller, Technikraum, Balkon, Terrasse etc.).
Bitte beachten Sie auch bei Standortangaben zu Immobilienangeboten auf Kreta, dass dies ungefähre Werte sind.
Der griechische Energieausweis (falls erforderlich) liegt bei der Besichtigung vor.
Zum angegebenen Kaufpreis kommen noch Nebenkosten wie Provision, Grunderwerbsteuer, Notargebühren und Anwaltskosten hinzu. Genaueres finden Sie auf unserer Homepage bei INFOS.
Alle über unser Portal angebotenen Immobilien aus Kreta wurden sorgfältig geprüft und übersetzt. Dennoch können sich Fehler einschleichen, so dass wir keine Gewähr auf Richtigkeit der Angaben übernehmen.
Für alle Fragen rund um das Thema - Kauf einer Immobilie oder Grundstück auf Kreta - stehen wir Ihnen gerne zur Verfügung und können weitere Details im Gespräch klären.
Es gelten unsere AGB, die Sie auf unserer Homepage bei AGB und Widerrufsrecht finden.
Anbieter
Schmidbauer Immobilien Kreta
Herr Oskar Josef Schmidbauer
Kokkino Chorio 1
730 08 Kokkino Chorio
730 08 Kokkino Chorio
Ansprechpartner
Oskar Josef Schmidbauer
Adlerstrasse 2
84100 Niederaichbach
84100 Niederaichbach