Anbieter kontaktieren

AGB, Datenschutz & Verbraucherhinweis wurden gelesen und akzeptiert.

KITZIMMO - Real Estate - OG

Franz Gobec RR Bgm.a.D.
6370 Kitzbühel
  • Mehr erfahren
bellevue.de-ID: 30561511

Grundstück in Toplage mit Baugenehmigung für 2 Luxusvillen

  • Haus
  • · 13 Zimmer
  • · 549 m² Wohnfläche
  • · 861 m² Grundstücksfläche
  • · 3.200.000 € Kaufpreis
Anbieter kontaktieren

Objektbeschreibung

Zum Verkauf steht ein Baugrundstück mit Altbestand in leicht erhöhter Lage mit traumhaftem Ausblick auf den Wilden Kaiser in Ellmau.

Es liegt bereits eine rechtskräftige Baugenehmigung für zwei Luxusvillen und ein Abbruchbescheid für den Altbestand ...mehr lesen
Zum Verkauf steht ein Baugrundstück mit Altbestand in leicht erhöhter Lage mit traumhaftem Ausblick auf den Wilden Kaiser in Ellmau.

Es liegt bereits eine rechtskräftige Baugenehmigung für zwei Luxusvillen und ein Abbruchbescheid für den Altbestand vor.

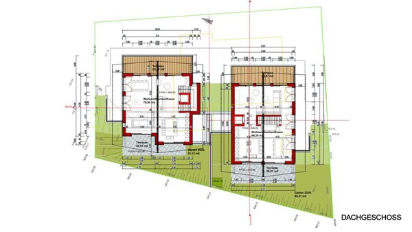
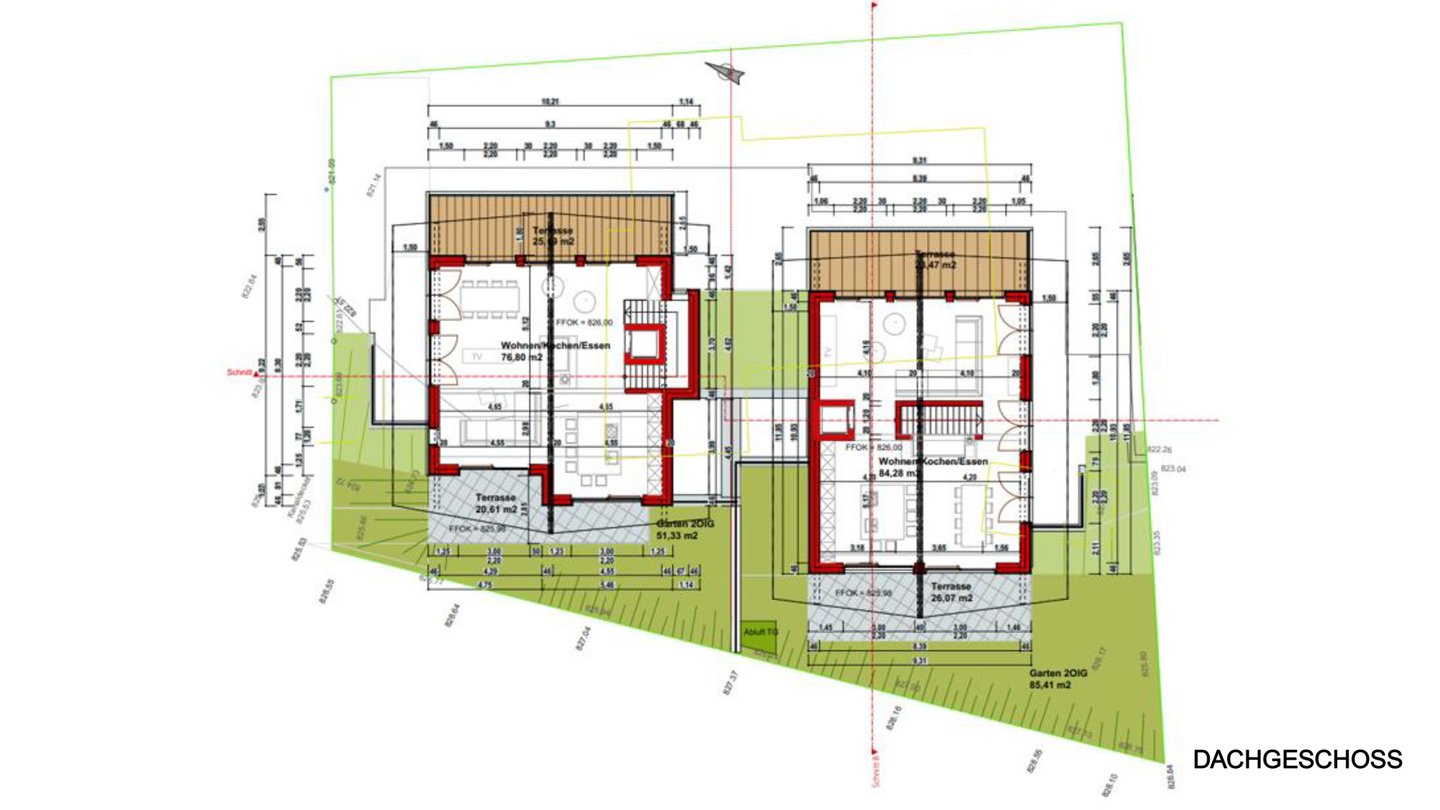
Villa 1 bietet auf 3 Etagen, verbunden über einen Lift, eine Wohn-/Nutzfläche von 314,87 m².
Drei Schlafzimmer, drei Bäder, ein Büro, einen großen Wellnessbereich mit Sauna sowie einen ca. 85 m² großen Wohn-Essbereich im Dachgeschoss.

Villa 2 bietet auf 3 Etagen, verbunden über einen Lift eine Wohn-/Nutzfläche von 311,41 m².
Drei Schlafzimmer, drei Bäder, einen großen Wellnessbereich mit Sauna sowie einen ca. 85 m² großen Wohn-Essbereich im Dachgeschoss.

Beide Villen verfügen über mehrere großzügige Terrassen und Balkone sowie Gartenflächen. Aufgrund der Hanglage hat man selbst in der unteren Etage Tageslicht und einen schönen Ausblick sowie im Dachgeschoss nach hinten einen Garten und nach vorne eine große Terrasse.

Beiden Villen stehen in der 179,07 m² großen Garage jeweils 3 Parkplätze zur Verfügung sowie ein Außenstellplatz pro Haus.
Mehrere Keller und Lagerräume sind ebenfalls vorhanden.

Verkauft wird das Baugrundstück mit Altbestand inklusive Baugenehmigung für den Neubau.
Dem neuen Eigentümer steht es frei, die Raumaufteilung bei Bedarf noch abzuändern.
Folgendes ist ebenfalls bereits erledigt:
• Oberflächenwasserprojekt
• Bodengutachten / Baugrubensicherung
• Baustelleneinrichtungsplan
• Nachbarvereinbarung wegen Hangsicherung / Hangverbau.

Der Erwerb wäre über einen Sharedeal als auch über einen Assetdeal möglich. Der Kaufpreis bei einem Sharedeal beläuft sich auf € 3,2 Mio. und bei einem Assetdeal auf € 3,6 Mio.

Der Skilift befindet sich nur ca. 400 Meter entfernt.
Das Ortszentrum sowie der Golfplatz von Ellmau ist bequem in ca. 10 bis 15 Fußminuten erreichbar.
Zahlreiche Wander- und Radwege beginnen ebenfalls in unmittelbarer Nähe.

Alles in allem ein sehr interessantes Projekt, sowohl für einen Bauträger als auch für eine Privatperson oder für einen Investor.

Immobiliendetails

  • Nutzungsart
    Wohnen
  • Objektart
    Villa
  • Hauptobjektart
    Haus
  • Vertragsart
    Kauf
  • Objektzustand
    Erstbezug
  • Zimmer (gesamt)
    13
  • Anzahl Schlafzimmer
    8
  • Anzahl Badezimmer
    8
  • Anzahl separate WC
    3
  • Anzahl Parkflächen
    8
  • Wohnfläche (ca.)
    548,58 m²
  • Gesamtfläche (ca.)
    805,35 m²
  • Grundstücksfläche (ca.)
    861 m²
  • Küche
    Einbauküche (EBK)
  • Balkon/Terrasse (ca.)
    199,64 m²
  • Gartenfläche (ca.)
    238,63 m²
  • Bad
    Duschbad, Bad mit Dusche und Badewanne, Bad mit Fenster
  • Freier Stellplatz
    2
  • Tiefgaragenstellplätze
    6
  • Anzahl Etagen
    3
  • Ausrichtung
    Nord, Ost, Süd, West
  • Ausstattungskategorie
    Luxus
  • Fußboden
    Fliesen, Stein, Holz/Dielen
  • Verfügbarkeit
    ab sofort
  • Anbieter-Objektnummer
    MG-0002062

Preise & Kosten

  • Courtage
    3,0 %

Energie

  • Heizungsart
    Fussbodenheizung
  • Befeuerungsart
    Luft-/Wasserwärme

Ausstattung

  • Keller

Standort & Lage

6352 Ellmau · Tirol · AUT

Die genaue Anschrift erfahren Sie vom Anbieter

Anbieter

Logo von KITZIMMO - Real Estate - OG
2026 Best Property Agents

Ansprechpartner

Verbraucherhinweis

Widerrufsbelehrung des Anbieters

(Gilt nicht für Wohnraummiete in Deutschland)

Widerrufsrecht für Verbraucher
Sie haben das Recht, binnen vierzehn Tagen ohne Angabe von Gründen diesen Vertrag zu widerrufen. Die Widerrufsfrist beträgt vierzehn Tage ab dem Tag des Vertragsabschlusses.
Um Ihr Widerrufsrecht auszuüben, müssen Sie uns (KITZIMMO - Real Estate - OG, Im Gries 27, 6370 Kitzbühel, 0043-676-7047120, 0043-5356-67677, office@kitzimmo.at) mittels einer eindeutigen Erklärung (z. B. ein mit der Post versandter Brief, Telefax oder E-Mail) über Ihren Entschluss, diesen Vertrag zu widerrufen, informieren. Sie können dafür das beigefügte Muster-Widerrufsformular verwenden, das jedoch nicht vorgeschrieben ist. Zur Wahrung der Widerrufsfrist reicht es aus, dass Sie die Mitteilung über die Ausübung des Widerrufsrechts vor Ablauf der Widerrufsfrist absenden.

Folgen des Widerrufs
Wenn Sie diesen Vertrag widerrufen, haben wir Ihnen alle Zahlungen, die wir von Ihnen erhalten haben, einschließlich der Lieferkosten (mit Ausnahme der zusätzlichen Kosten, die sich daraus ergeben, dass Sie eine andere Art der Lieferung als die von uns angebotene, günstigste Standardlieferung gewählt haben), unverzüglich und spätestens binnen vierzehn Tagen ab dem Tag zurückzuzahlen, an dem die Mitteilung über Ihren Widerruf dieses Vertrags bei uns eingegangen ist. Für diese Rückzahlung verwenden wir dasselbe Zahlungsmittel, das Sie bei der ursprünglichen Transaktion eingesetzt haben, es sei denn, mit Ihnen wurde ausdrücklich etwas anderes vereinbart; in keinem Fall werden Ihnen wegen dieser Rückzahlung Entgelte berechnet. Haben Sie verlangt, dass die Dienstleistungen während der Widerrufsfrist beginnen soll, so haben Sie uns einen angemessenen Betrag zu zahlen, der dem Anteil der bis zu dem Zeitpunkt, zu dem Sie uns von der Ausübung des Widerrufsrechts hinsichtlich dieses Vertrags unterrichten, bereits erbrachten Dienstleistungen im Vergleich zum Gesamtumfang der im Vertrag vorgesehenen Dienstleistungen entspricht.

Muster-Widerrufsformular
(Wenn Sie den Vertrag widerrufen wollen, dann füllen Sie dieses Formular aus und senden Sie es zurück.)

An KITZIMMO - Real Estate - OG, Im Gries 27, 6370 Kitzbühel, 0043-676-7047120, 0043-5356-67677, office@kitzimmo.at

Hiermit widerrufe ich/wir den von mir/uns abgeschlossenen Vertrag über den Kauf der folgenden Waren /die Erbringung der folgenden Dienstleistung


Bestellt am /erhalten am

Name des/der Verbraucher(s)

Anschrift des/der Verbraucher(s)

Unterschrift des/der Verbraucher(s) (nur bei Mitteilung auf Papier)

Datum


( Unzutreffendes streichen )


Hinweis auf die Möglichkeit eines vorzeitigen Erlöschens des Widerrufsrechts

Ihr Widerrufsrecht erlischt, wenn wir unsere Leistung vollständig erbracht haben und mit der Ausführung der Leistung erst begonnen haben, nachdem Sie Ihre ausdrückliche Zustimmung gegeben haben und gleichzeitig Ihre Kenntnis davon bestätigt haben, dass Sie Ihr Widerrufsrecht bei vollständiger Vertragserfüllung durch uns verlieren.

Impressum KITZIMMO - Real Estate - OG
VERTRETUNGSBERECHTIGTE/R
Franz Gobec RR Bgm.a.D.


Im Gries 27
6370 Kitzbühel
AUT
Tel.: 0043-676-7047120
E-Mail: office@kitzimmo.at
Fax: 0043-5356-67677
Homepage: https://www.kitzimmo.at/

ZUSTÄNDIGE AUFSICHTSBEHÖRDE
Bezirkshauptmannschaft Kitzbühel

UST-ID-NUMMER
ATU76179109

ZUSÄTZLICHER TEXT
staatl. gepr. und konzess. Immobilientreuhänder, Immobilienmakler, Immobilienverwalter und Bauträger, Mitglied des Ehrenschiedsgerichtes Tirol
Anbieter kontaktieren

AGB, Datenschutz & Verbraucherhinweis wurden gelesen und akzeptiert.